ちとせマンション 402号室(4階/2K)の賃貸物件(賃貸マンション)
東京都大田区にあるちとせマンション 402号室は和室あり、最上階、都市ガス、オンライン相談可、オンライン内見可などが特徴です。最寄り駅の京浜東北・根岸線大森駅から徒歩13分です。ちとせマンション 402号室の詳細はハウスコム 大森店までお気軽にお問い合わせください!
情報更新日:
次回更新予定日:
※次回更新予定日について:お店側では順次空室確認を行っていますが、次回更新予定日までに空室確認が行えない場合には、この物件情報は自動的に削除されます。
ちとせマンション 402号室の賃貸物件部屋概要
家賃 |
8.5万円
初期費用を |
|---|---|
共益費 |
3,000円
入居可能時期 |
敷金/礼金 |
1ヶ月 / 1ヶ月 |
保証金/ |
- / - |
最寄駅 |
|
所在地 |
東京都大田区大森北 |
部屋番号 |
402号室 |
間取り |
2K(和6・和6) |
専有面積 |
34.00㎡ |
築年数 |
2010年12月(築16年) |
階数 |
4階部分(地上4階建) |
方位・位置 |
南 / 角部屋 |
物件種別 |
賃貸マンション |
構造 |
ALC |
駐車場 |
- |
小学校学区 |
入新井第一小学校 |
中学校学区 |
大森第二中学校 |
他の空き部屋 |
ー |
- 学区データについて
- ※学区データは必ずしも正確とは限りません。詳細に関しては最寄店舗または各自治体の教育委員会に必ずご確認ください。
ちとせマンション 402号室の特徴
契約条件
ご契約時に保証人は不要です。
居室状況
居室には、和室の居室もあり、子育てやリラックススペースとしての利用もできます。 収納スペースとして、玄関にはシューズボックスがあります。
建物設備共用部分
居室外の専有スペースとして、洗濯物を干すなどの用途として利用できるバルコニーがあります。
周辺施設
この物件の学区は、入新井第一小学校区・大森第二中学校区です。
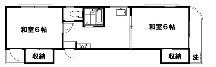
ちとせマンション 402号室の間取り
間取り:2K
間取詳細:2K(和6・和6)
専有面積:34.00㎡
方位:南
部屋位置:角部屋
ちとせマンション 402号室の設備
バス・トイレ
バス・トイレ別
収納
シューズボックス
バルコニー
バルコニー
ルーフバルコニー
室内設備
和室あり
位置・立地
2階以上
最上階
角部屋
南向き
インフラ
都市ガス
入居条件
オンライン相談可
オンライン内見可
保証人不要
ライフステージ
一人暮らしに人気の設備
カップルに人気の設備
家族に人気の設備
夫婦に人気の設備
三世代で人気の設備
こだわり
日当たり重視
外で子どもと遊びたい
趣味
ガーデニングが好き
ちとせマンション 402号室の賃貸契約情報
毎月支払う |
家賃8.5万円/月共益費3,000円/月 |
|---|---|
初期費用 |
敷金1ヶ月 (8.5万円)礼金1ヶ月 (8.5万円)保証金-敷引き償却金- |
更新料 |
85,000円 |
鍵交換費用 |
27,500円 |
室内清掃費用 |
- |
あんしんコール24 |
16,500円 |
駐車場料金 |
- |
損保・ |
借家賠付きの火災保険にご加入いただきます。 |
保証会社 |
加入要 保証会社利用料:初回50%・年額10000円 |
契約期間 |
2年 |
入居可能日 |
2026年01月中旬 |
フリーレント期間 |
- |
取引形態 |
一般媒介 |
備考 |
- |
ちとせマンション 402号室の建物情報
建物名称 |
ちとせマンション |
|---|---|
最寄駅 |
|
所在地 |
東京都大田区大森北 |
階層 |
4階部分(地上4階建) |
構造 |
ALC |
築年数 |
2010年12月(築16年) |
駐車場 |
- |
小学校学区 |
入新井第一小学校 |
中学校学区 |
大森第二中学校 |
1/10 外観
- 学区データについて
- ※学区データは必ずしも正確とは限りません。詳細に関しては最寄店舗または各自治体の教育委員会に必ずご確認ください。
無料この物件に問い合わせ
- ちとせマンション 402号室

-
8.5万円
(共益費
3,000円)
- 敷
- 1ヶ月
- 礼
- 1ヶ月
- 保
- -
- 償
- -
ちとせマンション 402号室の物件のお問い合わせ先・取り扱い店舗
ハウスコム 大森店
土日営業
- アクセス
-
京浜東北・根岸線「大森駅」徒歩1分
- 住所
- 〒143-0023 東京都大田区山王2丁目2−4
- 営業時間
- 10:00~18:00
- 定休日
- 水曜日
- 営業エリア
- 大田区、品川区、港区
- 取引態様
- 賃貸仲介業
お問い合わせNo. HC2-5292086-402-0220





























