千里丘東の完工年月(1996年4月)築の賃貸マンション ***号室(5階/3LDK)の賃貸物件(賃貸マンション)
大阪府摂津市にある千里丘東の完工年月(1996年4月)築の賃貸マンション ***号室はシャワー付洗面化粧台、フローリング、角部屋、BS、エレベーターなどが特徴です。最寄り駅の阪急京都線摂津市駅から徒歩12分です。千里丘東の完工年月(1996年4月)築の賃貸マンション ***号室の詳細はクラスモ FCJR吹田駅前店までお気軽にお問い合わせください!
情報更新日:
次回更新予定日:
※次回更新予定日について:お店側では順次空室確認を行っていますが、次回更新予定日までに空室確認が行えない場合には、この物件情報は自動的に削除されます。
千里丘東の完工年月(1996年4月)築の賃貸マンション ***号室の賃貸物件部屋概要
家賃 |
10.5万円
初期費用を |
|---|---|
共益費 |
10,000円
入居可能時期 |
敷金/礼金 |
- / 1ヶ月 |
保証金/ |
- / - |
最寄駅 |
|
所在地 |
大阪府摂津市千里丘東 |
部屋番号 |
***号室 |
間取り |
3LDK(LDK13・洋6・洋6・和6) |
専有面積 |
66.10㎡ |
築年数 |
1996年4月(築30年) |
階数 |
5階部分(地上5階建) |
方位・位置 |
南西 / 角部屋 |
物件種別 |
賃貸マンション |
構造 |
RC |
駐車場 |
12,100円 |
小学校学区 |
摂津小学校 |
中学校学区 |
第一中学校 |
他の空き部屋 |
***号室 |
- 学区データについて
- ※学区データは必ずしも正確とは限りません。詳細に関しては最寄店舗または各自治体の教育委員会に必ずご確認ください。
千里丘東の完工年月(1996年4月)築の賃貸マンション ***号室の特徴
契約条件
この物件は、2人入居もご契約できます。 敷金が無料なため、初期費用が比較的安くなる傾向にあります。
セキュリティ
この物件の建物には、防犯カメラや宅配ボックスが設置されており、来客時には居室内のテレビモニターにて訪問者の顔を確認することができます。
室内設備
トイレは、温水洗浄便座機能付きになります。 女性に嬉しい設備のシャワーの付いている洗面化粧台があります。 洗濯に便利な設備として、室内洗濯機置場があります。
居室状況
居室には、和室の居室もあり、子育てやリラックススペースとしての利用もできます。 お部屋の床は、フローリングとなっています。インターネットも無料で入居後すぐ生活が始められます。 収納スペースとして、基本的な居室にクローゼットがあります。
建物設備共用部分
居室外の専有スペースとして、洗濯物を干すなどの用途として利用できるバルコニーがあります。 建物の共用スペースに、日々の出入に便利なエレベーターや、いざという時の防犯カメラや、急な外出や不在がちのご家庭の荷物受け取りに便利な宅配ボックスが設置されています。 駐輪場、バイク置き場が利用できます。
周辺施設
この物件の学区は、摂津小学校区・第一中学校区です。近くには、徒歩10分(749m)で銀行があります。
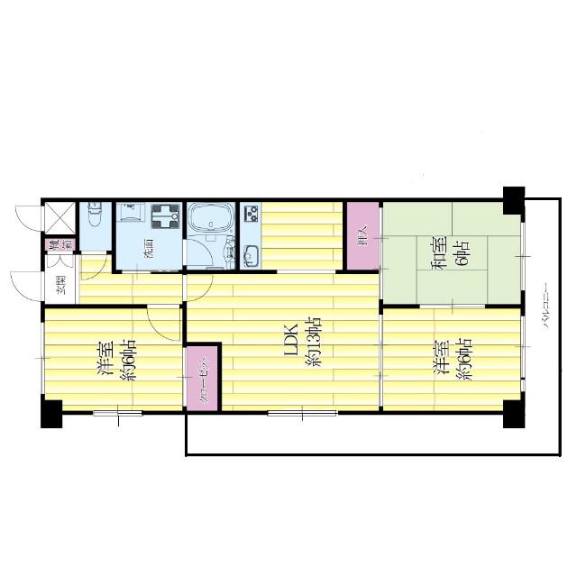
千里丘東の完工年月(1996年4月)築の賃貸マンション ***号室の間取り
間取り:3LDK
間取詳細:3LDK(LDK13・洋6・洋6・和6)
専有面積:66.10㎡
方位:南西
部屋位置:角部屋
千里丘東の完工年月(1996年4月)築の賃貸マンション ***号室の設備
バス・トイレ
バス・トイレ別
温水洗浄便座
独立洗面台
シャワー付洗面化粧台
玄関
TVモニタ付インターホン
宅配ボックス
収納
クローゼット
バルコニー
バルコニー
室内設備
フローリング
室内洗濯機置場
和室あり
位置・立地
2階以上
最上階
角部屋
インフラ
インターネット可
CATV
BS
都市ガス
建物設備
エレベーター
防犯カメラ
駐輪場
バイク置き場
入居条件
2人入居可
ライフステージ
一人暮らしに人気の設備
カップルに人気の設備
家族に人気の設備
夫婦に人気の設備
三世代で人気の設備
こだわり
雨の日でも洗濯したい
洋室で暮らしたい
趣味
オークション・通販が好き
お得な条件
インターネット無料
千里丘東の完工年月(1996年4月)築の賃貸マンション ***号室の賃貸契約情報
毎月支払う |
家賃10.5万円/月共益費10,000円/月 |
|---|---|
初期費用 |
敷金-礼金1ヶ月 (10.5万円)保証金-敷引き償却金- |
更新料 |
- |
鍵交換費用 |
16,500円 |
室内清掃費用 |
55,000円 |
フェニックスプライム |
2,200円 |
駐車場料金 |
12,100円 |
損保・ |
借家賠付きの火災保険にご加入いただきます。 |
保証会社 |
加入要 保証会社:その他 保証会社利用料:初回月額総賃料の50%~1年毎に10,000円 |
契約期間 |
2年 |
入居可能日 |
2026年01月下旬 |
フリーレント期間 |
- |
取引形態 |
仲介 |
備考 |
新婚様・カップル様 大歓迎・応援中医療従事者様 大歓迎・応援中新社会人様 大歓迎・応援中 |
千里丘東の完工年月(1996年4月)築の賃貸マンション ***号室の建物情報
建物名称 |
千里丘東の完工年月(1996年4月)築の賃貸マンション |
|---|---|
最寄駅 |
|
所在地 |
大阪府摂津市千里丘東 |
階層 |
5階部分(地上5階建) |
構造 |
RC |
築年数 |
1996年4月(築30年) |
駐車場 |
12,100円 |
小学校学区 |
摂津小学校 |
中学校学区 |
第一中学校 |
- 学区データについて
- ※学区データは必ずしも正確とは限りません。詳細に関しては最寄店舗または各自治体の教育委員会に必ずご確認ください。
無料この物件に問い合わせ
- 千里丘東の完工年月(1996年4月)築の賃貸マンション ***号室

-
10.5万円
(共益費
10,000円)
- 敷
- -
- 礼
- 1ヶ月
- 保
- -
- 償
- -
千里丘東の完工年月(1996年4月)築の賃貸マンション ***号室の物件のお問い合わせ先・取り扱い店舗
クラスモ FCJR吹田駅前店
- アクセス
-
東海道本線(JR西日本)「吹田駅」徒歩2分
阪急千里線「吹田駅」徒歩13分
阪急千里線「豊津駅」徒歩23分
- 住所
- 〒564-0027 大阪府吹田市朝日町2番 さんくす2番館138号室
- 営業時間
- 10:00~19:00
- 定休日
- 水曜日
- 営業エリア
- 吹田市・摂津市・茨木市 ・東淀川区・淀川区・西淀川区・北区・福島区・中央区
- 取引態様
- 賃貸仲介業・物件売買業・FC店





































