ソフィアコート南荻窪 ***号室(3階/2LDK)の賃貸物件(賃貸マンション)
東京都杉並区にあるソフィアコート南荻窪 ***号室はバス・トイレ別、シャワー付洗面化粧台、TVモニタ付インターホン、クローゼット、ルーフバルコニーなどが特徴です。最寄り駅の中央本線(JR東日本)西荻窪駅から徒歩11分です。ソフィアコート南荻窪 ***号室の詳細はハウスコム 荻窪店までお気軽にお問い合わせください!
情報更新日:
次回更新予定日:
※次回更新予定日について:お店側では順次空室確認を行っていますが、次回更新予定日までに空室確認が行えない場合には、この物件情報は自動的に削除されます。
ソフィアコート南荻窪 ***号室の賃貸物件部屋概要
家賃 |
16.9万円
初期費用を |
|---|---|
共益費 |
-
入居可能時期 |
敷金/礼金 |
2ヶ月 / 1ヶ月 |
保証金/ |
- / - |
最寄駅 |
|
所在地 |
東京都杉並区南荻窪 |
部屋番号 |
***号室 |
間取り |
2LDK(洋6.7・洋6・LDK7.3・K3.4) |
専有面積 |
55.60㎡ |
築年数 |
1987年12月(築38年) |
階数 |
3階部分(地上3階建) |
方位・位置 |
東 / 角部屋 |
物件種別 |
賃貸マンション |
構造 |
RC |
駐車場 |
- |
小学校学区 |
荻窪小学校 |
中学校学区 |
神明中学校 |
他の空き部屋 |
***号室 |
- 学区データについて
- ※学区データは必ずしも正確とは限りません。詳細に関しては最寄店舗または各自治体の教育委員会に必ずご確認ください。
ソフィアコート南荻窪 ***号室の特徴
契約条件
この物件は、2人入居もご契約できます。 また、ご契約時に保証人は不要です。
セキュリティ
この物件の建物には、オートロックや宅配ボックスが設置されており、来客時には居室内のテレビモニターにて訪問者の顔を確認することができます。
室内設備
システムキッチンには、ガスコンロが備え付けられています。 お風呂とトイレは別です。お風呂には、追い焚き機能が備わっています。 トイレは、温水洗浄便座機能付きになります。 女性に嬉しい設備のシャワーの付いている洗面化粧台があります。 洗濯に便利な設備として、室内洗濯機置場があります。浴室乾燥機も設置されているので、梅雨時の生乾き臭も比較的防ぐことができます。
居室状況
お部屋の床は、フローリングとなっており、エアコンが設置されています。 収納スペースとして、基本的な居室にクローゼットを設置、玄関にはシューズボックスがあります。
建物設備共用部分
居室外の専有スペースとして、洗濯物を干すなどの用途として利用できるバルコニーがあります。 建物の共用スペースに、急な外出や不在がちのご家庭の荷物受け取りに便利な宅配ボックスが設置されています。 駐輪場が利用できます。
周辺施設
この物件の学区は、荻窪小学校区・神明中学校区です。
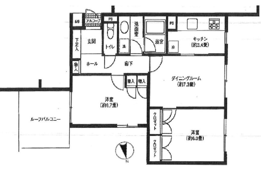
ソフィアコート南荻窪 ***号室の間取り
間取り:2LDK
間取詳細:2LDK(洋6.7・洋6・LDK7.3・K3.4)
専有面積:55.60㎡
方位:東
部屋位置:角部屋
ソフィアコート南荻窪 ***号室の設備
キッチン
システムキッチン
ガスコンロ
バス・トイレ
バス・トイレ別
追い焚き
浴室乾燥機
温水洗浄便座
独立洗面台
シャワー付洗面化粧台
玄関
TVモニタ付インターホン
オートロック
宅配ボックス
収納
クローゼット
シューズボックス
バルコニー
バルコニー
ルーフバルコニー
室内設備
エアコン
フローリング
室内洗濯機置場
位置・立地
2階以上
最上階
角部屋
インフラ
インターネット可
CATV
BS
都市ガス
建物設備
駐輪場
入居条件
2人入居可
保証人不要
ライフステージ
一人暮らしに人気の設備
カップルに人気の設備
家族に人気の設備
夫婦に人気の設備
三世代で人気の設備
こだわり
外で子どもと遊びたい
雨の日でも洗濯したい
洋室で暮らしたい
趣味
ガーデニングが好き
ソフィアコート南荻窪 ***号室の賃貸契約情報
毎月支払う |
家賃16.9万円/月共益費- |
|---|---|
初期費用 |
敷金2ヶ月 (33.8万円)礼金1ヶ月 (16.9万円)保証金-敷引き償却金- |
更新料 |
169,000円 |
鍵交換費用 |
- |
室内清掃費用 |
- |
駐車場料金 |
- |
損保・ |
借家賠付きの火災保険にご加入いただきます。 |
保証会社 |
加入要 保証会社利用料:初回保証料50% 月1.5% |
契約期間 |
2年 |
入居可能日 |
2026年01月下旬 |
フリーレント期間 |
- |
取引形態 |
一般媒介 |
備考 |
- |
ソフィアコート南荻窪 ***号室の建物情報
建物名称 |
ソフィアコート南荻窪 |
|---|---|
最寄駅 |
|
所在地 |
東京都杉並区南荻窪 |
階層 |
3階部分(地上3階建) |
構造 |
RC |
築年数 |
1987年12月(築38年) |
駐車場 |
- |
小学校学区 |
荻窪小学校 |
中学校学区 |
神明中学校 |
- 学区データについて
- ※学区データは必ずしも正確とは限りません。詳細に関しては最寄店舗または各自治体の教育委員会に必ずご確認ください。
無料この物件に問い合わせ
- ソフィアコート南荻窪 ***号室

-
16.9万円
(共益費
-)
- 敷
- 2ヶ月
- 礼
- 1ヶ月
- 保
- -
- 償
- -
ソフィアコート南荻窪 ***号室の物件のお問い合わせ先・取り扱い店舗
ハウスコム 荻窪店
- アクセス
-
中央本線(JR東日本)「荻窪駅」徒歩1分
- 住所
- 〒167-0051 東京都杉並区荻窪5-28-12 サカエビル8階
- 営業時間
- 10:00~18:00
- 定休日
- 水曜日
- 営業エリア
- 杉並区,中野区、練馬区、武蔵野市
- 取引態様
- 賃貸仲介業
















