ソルナクレイシア荻窪Ⅲ 202号室(2階/1DK)の賃貸物件(賃貸マンション)
東京都杉並区にあるソルナクレイシア荻窪Ⅲ 202号室はIHコンロ、追い焚き、フローリング、2階以上、BSなどが特徴です。最寄り駅の中央本線(JR東日本)荻窪駅から徒歩4分です。ソルナクレイシア荻窪Ⅲ 202号室の詳細はハウスコム 荻窪店までお気軽にお問い合わせください!
情報更新日:
次回更新予定日:
※次回更新予定日について:お店側では順次空室確認を行っていますが、次回更新予定日までに空室確認が行えない場合には、この物件情報は自動的に削除されます。
ソルナクレイシア荻窪Ⅲ 202号室の賃貸物件部屋概要
家賃 |
13.5万円
初期費用を |
|---|---|
共益費 |
15,000円
入居可能時期 |
敷金/礼金 |
- / 1ヶ月 |
保証金/ |
- / - |
最寄駅 |
|
所在地 |
東京都杉並区天沼 |
部屋番号 |
202号室 |
間取り |
1DK |
専有面積 |
32.73㎡ |
築年数 |
新築 |
階数 |
2階部分(地上3階建) |
方位・位置 |
北 / その他 |
物件種別 |
賃貸マンション |
構造 |
鉄骨造 |
駐車場 |
- |
小学校学区 |
天沼小学校 |
中学校学区 |
天沼中学校 |
他の空き部屋 |
101号室 102号室 103号室 104号室 201号室 203号室 204号室 |
- 学区データについて
- ※学区データは必ずしも正確とは限りません。詳細に関しては最寄店舗または各自治体の教育委員会に必ずご確認ください。
ソルナクレイシア荻窪Ⅲ 202号室の特徴
契約条件
ご契約時に保証人は不要です。 敷金が無料なため、初期費用が比較的安くなる傾向にあります。
セキュリティ
来客時には居室内のテレビモニターにて訪問者の顔を確認することができます。
室内設備
システムキッチンには、IHコンロが備え付けられています。 お風呂とトイレは別です。お風呂には、追い焚き機能が備わっています。 トイレは、温水洗浄便座機能付きになります。 女性に嬉しい設備の独立した洗面化粧台があります。 洗濯に便利な設備として、室内洗濯機置場があります。浴室乾燥機も設置されているので、梅雨時の生乾き臭も比較的防ぐことができます。
居室状況
お部屋の床は、フローリングとなっており、エアコンが設置されています。 インターネットも無料で入居後すぐ生活が始められます。 収納スペースとして、基本的な居室にクローゼットを設置、玄関にはシューズボックスがあります。
周辺施設
この物件の学区は、天沼小学校区・天沼中学校区です。
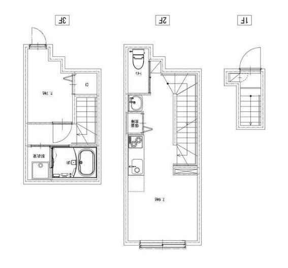
ソルナクレイシア荻窪Ⅲ 202号室の間取り
間取り:1DK
間取詳細:1DK
専有面積:32.73㎡
方位:北
部屋位置:その他
ソルナクレイシア荻窪Ⅲ 202号室の設備
キッチン
システムキッチン
IHコンロ
バス・トイレ
バス・トイレ別
追い焚き
浴室乾燥機
温水洗浄便座
独立洗面台
玄関
TVモニタ付インターホン
収納
クローゼット
シューズボックス
室内設備
エアコン
フローリング
室内洗濯機置場
位置・立地
2階以上
インフラ
インターネット可
BS
CS
都市ガス
入居条件
保証人不要
ライフステージ
一人暮らしに人気の設備
カップルに人気の設備
家族に人気の設備
夫婦に人気の設備
三世代で人気の設備
こだわり
雨の日でも洗濯したい
洋室で暮らしたい
お得な条件
インターネット無料
ソルナクレイシア荻窪Ⅲ 202号室の賃貸契約情報
毎月支払う |
家賃13.5万円/月共益費15,000円/月 |
|---|---|
初期費用 |
敷金-礼金1ヶ月 (13.5万円)保証金-敷引き償却金- |
更新料 |
135,000円 |
鍵交換費用 |
- |
室内清掃費用 |
- |
駐車場料金 |
- |
損保・ |
借家賠付きの火災保険にご加入いただきます。 |
保証会社 |
加入要 保証会社利用料:初回保証料60% |
契約期間 |
2年 |
入居可能日 |
即入居可 |
フリーレント期間 |
- |
取引形態 |
一般媒介 |
備考 |
- |
ソルナクレイシア荻窪Ⅲ 202号室の建物情報
建物名称 |
ソルナクレイシア荻窪Ⅲ |
|---|---|
最寄駅 |
|
所在地 |
東京都杉並区天沼 |
階層 |
2階部分(地上3階建) |
構造 |
鉄骨造 |
築年数 |
新築 |
駐車場 |
- |
小学校学区 |
天沼小学校 |
中学校学区 |
天沼中学校 |
- 学区データについて
- ※学区データは必ずしも正確とは限りません。詳細に関しては最寄店舗または各自治体の教育委員会に必ずご確認ください。
無料この物件に問い合わせ
- ソルナクレイシア荻窪Ⅲ 202号室

-
13.5万円
(共益費
15,000円)
- 敷
- -
- 礼
- 1ヶ月
- 保
- -
- 償
- -
ソルナクレイシア荻窪Ⅲ 202号室の物件のお問い合わせ先・取り扱い店舗
ハウスコム 荻窪店
- アクセス
-
中央本線(JR東日本)「荻窪駅」徒歩1分
- 住所
- 〒167-0051 東京都杉並区荻窪5-28-12 サカエビル8階
- 営業時間
- 10:00~18:00
- 定休日
- 水曜日
- 営業エリア
- 杉並区,中野区、練馬区、武蔵野市
- 取引態様
- 賃貸仲介業




































