レジオス世田谷尾山台 404号室(4階/1K)の賃貸物件(賃貸マンション)
東京都世田谷区にあるレジオス世田谷尾山台 404号室はTVモニタ付インターホン、オートロック、宅配ボックス、フローリング、分譲賃貸などが特徴です。最寄り駅の東急大井町線尾山台駅から徒歩12分です。レジオス世田谷尾山台 404号室の詳細はハウスコム 祖師ヶ谷大蔵店までお気軽にお問い合わせください!
情報更新日:
次回更新予定日:
※次回更新予定日について:お店側では順次空室確認を行っていますが、次回更新予定日までに空室確認が行えない場合には、この物件情報は自動的に削除されます。
レジオス世田谷尾山台 404号室の賃貸物件部屋概要
家賃 |
8.95万円
初期費用を |
|---|---|
共益費 |
10,000円
入居可能時期 |
敷金/礼金 |
- / 89,500円 |
保証金/ |
99,500円 / - |
最寄駅 |
|
所在地 |
東京都世田谷区玉堤 |
部屋番号 |
404号室 |
間取り |
1K |
専有面積 |
27.83㎡ |
築年数 |
2007年2月(築19年) |
階数 |
4階部分(地上5階建) |
方位・位置 |
南 / 角部屋 |
物件種別 |
賃貸マンション |
構造 |
RC |
駐車場 |
- |
小学校学区 |
玉堤小学校 |
中学校学区 |
尾山台中学校 |
他の空き部屋 |
306号室 |
- 学区データについて
- ※学区データは必ずしも正確とは限りません。詳細に関しては最寄店舗または各自治体の教育委員会に必ずご確認ください。
レジオス世田谷尾山台 404号室の特徴
-
一人暮らしに人気の設備

-
カップルに人気の設備

-
家族に人気の設備

-
夫婦に人気の設備

-
三世代で人気の設備

-
セキュリティ対策重視

-
外で子どもと遊びたい

-
雨の日でも洗濯したい

-
洋室で暮らしたい

-
ガーデニングが好き

契約条件
敷金が無料なため、初期費用が比較的安くなる傾向にあります。
セキュリティ
この物件の建物には、オートロックや防犯カメラや宅配ボックスが設置されており、来客時には居室内のテレビモニターにて訪問者の顔を確認することができます。
室内設備
システムキッチンには、2つ以上のガスコンロが備え付けられています。 トイレは、温水洗浄便座機能付きになります。 洗濯に便利な設備として、室内洗濯機置場があります。浴室乾燥機も設置されているので、梅雨時の生乾き臭も比較的防ぐことができます。
居室状況
お部屋の床は、フローリングとなっており、エアコンが設置されています。 収納スペースとして、玄関にはシューズボックスがあります。
建物設備共用部分
居室外の専有スペースとして、洗濯物を干すなどの用途として利用できるバルコニーがあります。 建物の共用スペースに、日々の出入に便利なエレベーターや、いざという時の防犯カメラや、急な外出や不在がちのご家庭の荷物受け取りに便利な宅配ボックスが設置されています。 駐輪場、バイク置き場が利用できます。
周辺施設
この物件の学区は、玉堤小学校区・尾山台中学校区です。
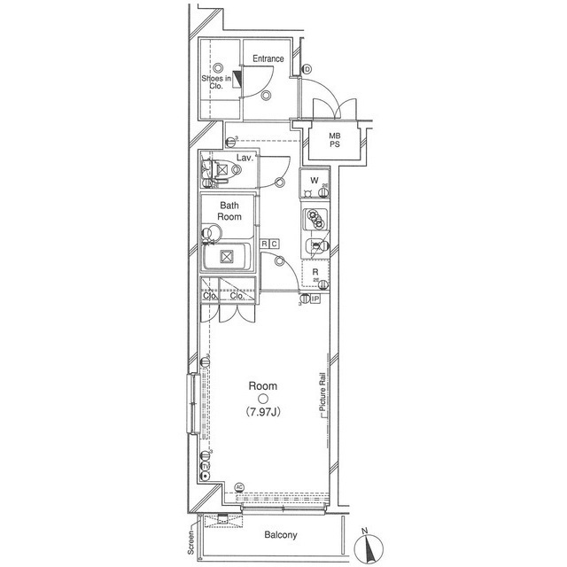
レジオス世田谷尾山台 404号室の間取り
間取り:1K
間取詳細:1K
専有面積:27.83㎡
方位:南
部屋位置:角部屋
レジオス世田谷尾山台 404号室の設備
キッチン
システムキッチン
ガスコンロ
ガスコンロ二口以上
バス・トイレ
バス・トイレ別
浴室乾燥機
温水洗浄便座
玄関
TVモニタ付インターホン
オートロック
宅配ボックス
収納
シューズボックス
バルコニー
バルコニー
ルーフバルコニー
室内設備
エアコン
フローリング
室内洗濯機置場
位置・立地
2階以上
角部屋
南向き
インフラ
インターネット可
都市ガス
建物設備
エレベーター
防犯カメラ
駐輪場
バイク置き場
分譲賃貸
ライフステージ
一人暮らしに人気の設備
カップルに人気の設備
家族に人気の設備
夫婦に人気の設備
三世代で人気の設備
こだわり
セキュリティ対策重視
外で子どもと遊びたい
雨の日でも洗濯したい
洋室で暮らしたい
趣味
ガーデニングが好き
レジオス世田谷尾山台 404号室の賃貸契約情報
毎月支払う |
家賃8.95万円/月共益費10,000円/月 |
|---|---|
初期費用 |
敷金-礼金89,500円保証金99,500円敷引き償却金- |
更新料 |
- |
鍵交換費用 |
- |
室内清掃費用 |
- |
駐車場料金 |
- |
損保・ |
借家賠付きの火災保険にご加入いただきます。 |
保証会社 |
加入要 保証会社利用料:初回保証料:賃料総額の50% 月額700円 |
契約期間 |
- |
入居可能日 |
2026年03月上旬 |
フリーレント期間 |
- |
取引形態 |
一般媒介 |
備考 |
鍵交換費用27500円 24時間サポート月額800円 |
レジオス世田谷尾山台 404号室の建物情報
建物名称 |
レジオス世田谷尾山台 |
|---|---|
最寄駅 |
|
所在地 |
東京都世田谷区玉堤 |
階層 |
4階部分(地上5階建) |
構造 |
RC |
築年数 |
2007年2月(築19年) |
駐車場 |
- |
小学校学区 |
玉堤小学校 |
中学校学区 |
尾山台中学校 |
- 学区データについて
- ※学区データは必ずしも正確とは限りません。詳細に関しては最寄店舗または各自治体の教育委員会に必ずご確認ください。
無料この物件に問い合わせ
- レジオス世田谷尾山台 404号室

-
8.95万円
(共益費
10,000円)
- 敷
- -
- 礼
- 89,500円
- 保
- 99,500円
- 償
- -
レジオス世田谷尾山台 404号室の物件のお問い合わせ先・取り扱い店舗
ハウスコム 祖師ヶ谷大蔵店
- アクセス
-
小田急小田原線「祖師ヶ谷大蔵駅」徒歩1分
- 住所
- 〒157-0073 東京都世田谷区砧6丁目37−5 振興会館 2階
- 営業時間
- 10:00~18:00
- 定休日
- 水曜日
- 営業エリア
- 世田谷区 狛江市 調布市
- 取引態様
- 賃貸仲介業













