グランドール・ラシン ***号室(5階/3LDK)の賃貸物件(賃貸マンション)
埼玉県さいたま市北区にあるグランドール・ラシン ***号室は独立洗面台、CATV、駐車場、バイク置き場、オンライン相談可などが特徴です。最寄り駅の京浜東北・根岸線大宮駅からバスで15分、道場前から徒歩1分です。グランドール・ラシン ***号室の詳細はハウスコム 大宮店までお気軽にお問い合わせください!
情報更新日:
次回更新予定日:
※次回更新予定日について:お店側では順次空室確認を行っていますが、次回更新予定日までに空室確認が行えない場合には、この物件情報は自動的に削除されます。
グランドール・ラシン ***号室の賃貸物件部屋概要
家賃 |
9.2万円
初期費用を |
|---|---|
共益費 |
12,000円
入居可能時期 |
敷金/礼金 |
- / - |
保証金/ |
- / - |
最寄駅 |
|
所在地 |
埼玉県さいたま市北区日進町 |
部屋番号 |
***号室 |
間取り |
3LDK(和6・洋6・洋6・LDK14) |
専有面積 |
71.40㎡ |
築年数 |
1992年3月(築34年) |
階数 |
5階部分(地上6階建) |
方位・位置 |
南 / その他 |
物件種別 |
賃貸マンション |
構造 |
RC |
駐車場 |
8,800円 |
小学校学区 |
宮前小学校 |
中学校学区 |
日進中学校 |
他の空き部屋 |
***号室 303号室 ***号室 |
- 学区データについて
- ※学区データは必ずしも正確とは限りません。詳細に関しては最寄店舗または各自治体の教育委員会に必ずご確認ください。
グランドール・ラシン ***号室の特徴
-
一人暮らしに人気の設備

-
カップルに人気の設備

-
家族に人気の設備

-
夫婦に人気の設備

-
三世代で人気の設備

-
収納重視

-
外で子どもと遊びたい

-
雨の日でも洗濯したい

-
洋室で暮らしたい

-
持ち物をスッキリ隠す収納部屋

-
推し活グッズを飾りたい

-
オークション・通販が好き

-
ガーデニングが好き

契約条件
この物件は、2人入居もご契約できます。 また、ご契約時に保証人は不要です。 敷金と礼金が無料なため、初期費用が比較的安くなる傾向にあります。
セキュリティ
この物件の建物には、防犯カメラや宅配ボックスが設置されております。
室内設備
カウンターキッチンには、ガスコンロが備え付けられています。 お風呂とトイレは別です。お風呂には、追い焚き機能が備わっています。 トイレは、温水洗浄便座機能付きになります。 女性に嬉しい設備のシャワーの付いている洗面化粧台があります。 洗濯に便利な設備として、室内洗濯機置場があります。
居室状況
居室には、和室の居室もあり、子育てやリラックススペースとしての利用もできます。 お部屋の床は、フローリングとなっており、エアコンが設置されています。 照明器具が備え付けられており、インターネットも無料で入居後すぐ生活が始められます。 収納スペースとして、基本的な居室にクローゼットを設置、玄関にはシューズボックスがあります。
建物設備共用部分
居室外の専有スペースとして、洗濯物を干すなどの用途として利用できるバルコニーがあります。 建物の共用スペースに、日々の出入に便利なエレベーターや、いざという時の防犯カメラや、急な外出や不在がちのご家庭の荷物受け取りに便利な宅配ボックスが設置されています。 平面駐車場があります。駐輪場、バイク置き場が利用できます。
周辺施設
この物件の学区は、宮前小学校区・日進中学校区です。近くには、徒歩13分(1000m)でベルクがあります。
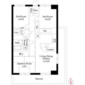
グランドール・ラシン ***号室の間取り
間取り:3LDK
間取詳細:3LDK(和6・洋6・洋6・LDK14)
専有面積:71.40㎡
方位:南
部屋位置:その他
グランドール・ラシン ***号室の設備
キッチン
カウンターキッチン
ガスコンロ
バス・トイレ
バス・トイレ別
追い焚き
温水洗浄便座
独立洗面台
シャワー付洗面化粧台
玄関
宅配ボックス
収納
クローゼット
シューズボックス
全居室収納
バルコニー
バルコニー
ルーフバルコニー
室内設備
エアコン
フローリング
室内洗濯機置場
照明器具付
和室あり
位置・立地
2階以上
南向き
インフラ
インターネット可
CATV
BS
CS
建物設備
エレベーター
防犯カメラ
駐車場
平面駐車場
駐輪場
バイク置き場
入居条件
2人入居可
オンライン相談可
オンライン内見可
保証人不要
ライフステージ
一人暮らしに人気の設備
カップルに人気の設備
家族に人気の設備
夫婦に人気の設備
三世代で人気の設備
こだわり
収納重視
外で子どもと遊びたい
雨の日でも洗濯したい
洋室で暮らしたい
持ち物をスッキリ隠す収納部屋
趣味
推し活グッズを飾りたい
オークション・通販が好き
ガーデニングが好き
お得な条件
インターネット無料
グランドール・ラシン ***号室の賃貸契約情報
毎月支払う |
家賃9.2万円/月共益費12,000円/月 |
|---|---|
初期費用 |
敷金-礼金-保証金-敷引き償却金- |
更新料 |
138,000円 |
鍵交換費用 |
- |
室内清掃費用 |
- |
ネット登録 |
3,300円 |
駐車場料金 |
8,800円 |
損保・ |
借家賠付きの火災保険にご加入いただきます。 |
保証会社 |
加入要 保証会社利用料:初回:総賃料の55% |
契約期間 |
2年 |
入居可能日 |
2026年01月上旬 |
フリーレント期間 |
- |
取引形態 |
一般媒介 |
備考 |
1年未満 違約金:2ヵ月、駐輪場登録:5500円 |
グランドール・ラシン ***号室の建物情報
建物名称 |
グランドール・ラシン |
|---|---|
最寄駅 |
|
所在地 |
埼玉県さいたま市北区日進町 |
階層 |
5階部分(地上6階建) |
構造 |
RC |
築年数 |
1992年3月(築34年) |
駐車場 |
8,800円 |
小学校学区 |
宮前小学校 |
中学校学区 |
日進中学校 |
- 学区データについて
- ※学区データは必ずしも正確とは限りません。詳細に関しては最寄店舗または各自治体の教育委員会に必ずご確認ください。
無料この物件に問い合わせ
- グランドール・ラシン ***号室

-
9.2万円
(共益費
12,000円)
- 敷
- -
- 礼
- -
- 保
- -
- 償
- -
グランドール・ラシン ***号室の物件のお問い合わせ先・取り扱い店舗
ハウスコム 大宮店
- アクセス
-
京浜東北・根岸線「大宮駅」西口徒歩1分
- 住所
- 〒330-0854 埼玉県さいたま市大宮区桜木町1丁目1−4 TS-114ビル 1階
- 営業時間
- 10:00~18:00
- 定休日
- なし
- 営業エリア
- さいたま市中央区,さいたま市北区,さいたま市大宮区,さいたま市桜区,さいたま市西区,さいたま市見沼区,岩槻区,上尾市,北足立郡伊奈町
- 取引態様
- 賃貸仲介業


























