ウィンベルコーラス大宮 ***号室(6階/3LDK)の賃貸物件(賃貸マンション)
埼玉県さいたま市北区にあるウィンベルコーラス大宮 ***号室はシャワー付洗面化粧台、クローゼット、角部屋、BS、外国人可・相談などが特徴です。最寄り駅のニューシャトル(埼玉新都市交通伊奈線)鉄道博物館(大成)駅から徒歩11分です。ウィンベルコーラス大宮 ***号室の詳細はハウスコム 大宮東口店までお気軽にお問い合わせください!
情報更新日:
次回更新予定日:
※次回更新予定日について:お店側では順次空室確認を行っていますが、次回更新予定日までに空室確認が行えない場合には、この物件情報は自動的に削除されます。
ウィンベルコーラス大宮 ***号室の賃貸物件部屋概要
家賃 |
11.5万円
初期費用を |
|---|---|
共益費 |
10,000円
入居可能時期 |
敷金/礼金 |
1ヶ月 / 1ヶ月 |
保証金/ |
- / - |
最寄駅 |
|
所在地 |
埼玉県さいたま市北区大成町 |
部屋番号 |
***号室 |
間取り |
3LDK(和6・洋6.5・洋5・LDK16) |
専有面積 |
79.74㎡ |
築年数 |
1991年9月(築35年) |
階数 |
6階部分(地上11階建) |
方位・位置 |
南 / 角部屋 |
物件種別 |
賃貸マンション |
構造 |
RC |
駐車場 |
13,200円 |
小学校学区 |
日進小学校 |
中学校学区 |
日進中学校 |
他の空き部屋 |
ー |
- 学区データについて
- ※学区データは必ずしも正確とは限りません。詳細に関しては最寄店舗または各自治体の教育委員会に必ずご確認ください。
ウィンベルコーラス大宮 ***号室の特徴
-
一人暮らしに人気の設備

-
カップルに人気の設備

-
家族に人気の設備

-
夫婦に人気の設備

-
三世代で人気の設備

-
収納重視

-
外で子どもと遊びたい

-
雨の日でも洗濯したい

-
洋室で暮らしたい

-
持ち物をスッキリ隠す収納部屋

-
料理が好き

-
推し活グッズを飾りたい

-
ガーデニングが好き

契約条件
この物件は、外国籍の方もご相談の上、2人入居もご契約できます。 また、ご契約時に保証人は不要です。
セキュリティ
この物件の建物には、オートロックが設置されており、来客時には居室内のテレビモニターにて訪問者の顔を確認することができます。
室内設備
システムキッチンには、ガスコンロが備え付けられています。 女性に嬉しい設備のシャワーの付いている洗面化粧台があります。 洗濯に便利な設備として、室内洗濯機置場があります。浴室乾燥機も設置されているので、梅雨時の生乾き臭も比較的防ぐことができます。
居室状況
居室には、和室の居室もあり、子育てやリラックススペースとしての利用もできます。 お部屋の床は、フローリングとなっています。収納スペースとして、基本的な居室にクローゼットを設置、玄関にはシューズボックスがあります。
建物設備共用部分
居室外の専有スペースとして、洗濯物を干すなどの用途として利用できるバルコニーがあります。 建物の共用スペースに、日々の出入に便利なエレベーターが設置されています。
周辺施設
この物件の学区は、日進小学校区・日進中学校区です。
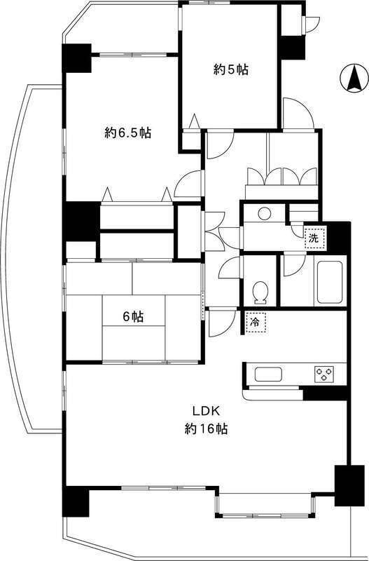
ウィンベルコーラス大宮 ***号室の間取り
間取り:3LDK
間取詳細:3LDK(和6・洋6.5・洋5・LDK16)
専有面積:79.74㎡
方位:南
部屋位置:角部屋
ウィンベルコーラス大宮 ***号室の設備
キッチン
システムキッチン
カウンターキッチン
ガスコンロ
バス・トイレ
バス・トイレ別
浴室乾燥機
独立洗面台
シャワー付洗面化粧台
玄関
TVモニタ付インターホン
オートロック
収納
クローゼット
シューズボックス
全居室収納
バルコニー
バルコニー
ルーフバルコニー
室内設備
フローリング
室内洗濯機置場
和室あり
位置・立地
2階以上
角部屋
南向き
インフラ
インターネット可
CATV
BS
CS
都市ガス
建物設備
エレベーター
入居条件
2人入居可
外国人可・相談
オンライン相談可
オンライン内見可
保証人不要
ライフステージ
一人暮らしに人気の設備
カップルに人気の設備
家族に人気の設備
夫婦に人気の設備
三世代で人気の設備
こだわり
収納重視
外で子どもと遊びたい
雨の日でも洗濯したい
洋室で暮らしたい
持ち物をスッキリ隠す収納部屋
趣味
料理が好き
推し活グッズを飾りたい
ガーデニングが好き
ウィンベルコーラス大宮 ***号室の賃貸契約情報
毎月支払う |
家賃11.5万円/月共益費10,000円/月 |
|---|---|
初期費用 |
敷金1ヶ月 (11.5万円)礼金1ヶ月 (11.5万円)保証金-敷引き償却金- |
更新料 |
115,000円 |
鍵交換費用 |
25,300円 |
室内清掃費用 |
- |
駐車場料金 |
13,200円 |
損保・ |
借家賠付きの火災保険にご加入いただきます。 |
保証会社 |
加入要 保証会社利用料:初回保証委託料は賃料等の1ヶ月分、1年毎に14,000円の保証委託料 |
契約期間 |
2年 |
入居可能日 |
相談 |
フリーレント期間 |
- |
取引形態 |
一般媒介 |
備考 |
原則1年未満の短期解約は違約金が発生します |
ウィンベルコーラス大宮 ***号室の建物情報
建物名称 |
ウィンベルコーラス大宮 |
|---|---|
最寄駅 |
|
所在地 |
埼玉県さいたま市北区大成町 |
階層 |
6階部分(地上11階建) |
構造 |
RC |
築年数 |
1991年9月(築35年) |
駐車場 |
13,200円 |
小学校学区 |
日進小学校 |
中学校学区 |
日進中学校 |
- 学区データについて
- ※学区データは必ずしも正確とは限りません。詳細に関しては最寄店舗または各自治体の教育委員会に必ずご確認ください。
無料この物件に問い合わせ
- ウィンベルコーラス大宮 ***号室

-
11.5万円
(共益費
10,000円)
- 敷
- 1ヶ月
- 礼
- 1ヶ月
- 保
- -
- 償
- -
ウィンベルコーラス大宮 ***号室の物件のお問い合わせ先・取り扱い店舗
ハウスコム 大宮東口店
- アクセス
-
京浜東北・根岸線「大宮駅」東口(北)徒歩1分
- 住所
- 〒330-0846 埼玉県さいたま市大宮区大門町1丁目92−7 ハイカラ堂ビル 2階
- 営業時間
- 10:00~18:00
- 定休日
- 水曜日
- 営業エリア
- さいたま市大宮区、中央区、北区、西区、見沼区、西区、浦和区、岩槻区、上尾市、蓮田市、白岡市、伊奈町 etc.
- 取引態様
- 賃貸仲介業



















