PASEO下北沢代沢Ⅱ 101号室(1階/2LDK)の賃貸物件(賃貸マンション)
東京都世田谷区にあるPASEO下北沢代沢Ⅱ 101号室はTVモニタ付インターホン、オートロック、クローゼット、室内洗濯機置場、1階などが特徴です。最寄り駅の京王井の頭線池ノ上駅から徒歩7分です。PASEO下北沢代沢Ⅱ 101号室の詳細はハウスコム 祖師ヶ谷大蔵店までお気軽にお問い合わせください!
情報更新日:
次回更新予定日:
※次回更新予定日について:お店側では順次空室確認を行っていますが、次回更新予定日までに空室確認が行えない場合には、この物件情報は自動的に削除されます。
PASEO下北沢代沢Ⅱ 101号室の賃貸物件部屋概要
家賃 |
24.3万円
初期費用を |
|---|---|
共益費 |
15,000円
入居可能時期 |
敷金/礼金 |
- / - |
保証金/ |
- / - |
最寄駅 |
|
所在地 |
東京都世田谷区代沢 |
部屋番号 |
101号室 |
間取り |
2LDK(LDK14.2・洋5.2・洋5) |
専有面積 |
61.11㎡ |
築年数 |
2025年3月 |
階数 |
1階部分(地上4階地下1階建) |
方位・位置 |
西 / その他 |
物件種別 |
賃貸マンション |
構造 |
RC |
駐車場 |
無 |
小学校学区 |
代沢小学校 |
中学校学区 |
富士中学校 |
他の空き部屋 |
***号室 301号室 |
- 学区データについて
- ※学区データは必ずしも正確とは限りません。詳細に関しては最寄店舗または各自治体の教育委員会に必ずご確認ください。
PASEO下北沢代沢Ⅱ 101号室の特徴
契約条件
この物件は、2人入居もご契約できます。 敷金と礼金が無料なため、初期費用が比較的安くなる傾向にあります。
セキュリティ
この物件の建物には、オートロックや防犯カメラや宅配ボックスが設置されており、来客時には居室内のテレビモニターにて訪問者の顔を確認することができます。
室内設備
システムキッチンが備え付けられています。 トイレは、温水洗浄便座機能付きになります。 女性に嬉しい設備の独立した洗面化粧台があります。 洗濯に便利な設備として、室内洗濯機置場があります。浴室乾燥機も設置されているので、梅雨時の生乾き臭も比較的防ぐことができます。
居室状況
エアコンが設置されています。 インターネットも無料で入居後すぐ生活が始められます。 収納スペースとして、基本的な居室にクローゼットを設置、玄関にはシューズボックスがあります。
建物設備共用部分
建物の共用スペースに、いざという時の防犯カメラや、急な外出や不在がちのご家庭の荷物受け取りに便利な宅配ボックスが設置されています。 駐輪場が利用できます。
周辺施設
この物件の学区は、代沢小学校区・富士中学校区です。
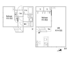
PASEO下北沢代沢Ⅱ 101号室の間取り
間取り:2LDK
間取詳細:2LDK(LDK14.2・洋5.2・洋5)
専有面積:61.11㎡
方位:西
部屋位置:その他
PASEO下北沢代沢Ⅱ 101号室の設備
キッチン
システムキッチン
バス・トイレ
バス・トイレ別
浴室乾燥機
温水洗浄便座
独立洗面台
玄関
TVモニタ付インターホン
オートロック
宅配ボックス
収納
クローゼット
シューズボックス
室内設備
エアコン
室内洗濯機置場
位置・立地
1階
建物設備
防犯カメラ
駐輪場
入居条件
2人入居可
即入居可
ライフステージ
一人暮らしに人気の設備
カップルに人気の設備
家族に人気の設備
夫婦に人気の設備
三世代で人気の設備
こだわり
雨の日でも洗濯したい
趣味
オークション・通販が好き
お得な条件
インターネット無料
PASEO下北沢代沢Ⅱ 101号室の賃貸契約情報
毎月支払う |
家賃24.3万円/月共益費15,000円/月 |
|---|---|
初期費用 |
敷金-礼金-保証金-敷引き償却金- |
更新料 |
243,000円 |
鍵交換費用 |
- |
室内清掃費用 |
- |
駐車場料金 |
無 |
損保・ |
借家賠付きの火災保険にご加入いただきます。 |
保証会社 |
加入要 保証会社利用料:初回保証料:総賃料の50% 月額保証料:1千円 |
契約期間 |
2年 |
入居可能日 |
即入居可 |
フリーレント期間 |
- |
取引形態 |
一般媒介 |
備考 |
- |
PASEO下北沢代沢Ⅱ 101号室の建物情報
建物名称 |
PASEO下北沢代沢Ⅱ |
|---|---|
最寄駅 |
|
所在地 |
東京都世田谷区代沢 |
階層 |
1階部分(地上4階地下1階建) |
構造 |
RC |
築年数 |
2025年3月 |
駐車場 |
無 |
小学校学区 |
代沢小学校 |
中学校学区 |
富士中学校 |
- 学区データについて
- ※学区データは必ずしも正確とは限りません。詳細に関しては最寄店舗または各自治体の教育委員会に必ずご確認ください。
無料この物件に問い合わせ
- PASEO下北沢代沢Ⅱ 101号室

-
24.3万円
(共益費
15,000円)
- 敷
- -
- 礼
- -
- 保
- -
- 償
- -
PASEO下北沢代沢Ⅱ 101号室の物件のお問い合わせ先・取り扱い店舗
ハウスコム 祖師ヶ谷大蔵店
- アクセス
-
小田急小田原線「祖師ヶ谷大蔵駅」徒歩1分
- 住所
- 〒157-0073 東京都世田谷区砧6丁目37−5 振興会館 2階
- 営業時間
- 10:00~18:00
- 定休日
- 水曜日
- 営業エリア
- 世田谷区 狛江市 調布市
- 取引態様
- 賃貸仲介業






















