ソルナクレイシア西荻窪2 203号室(1階/1K)の賃貸物件(賃貸アパート)
東京都杉並区にあるソルナクレイシア西荻窪2 203号室はシステムキッチン、バス・トイレ別、浴室乾燥機、独立洗面台、エアコンなどが特徴です。最寄り駅の中央本線(JR東日本)西荻窪駅から徒歩8分です。ソルナクレイシア西荻窪2 203号室の詳細はハウスコム 荻窪店までお気軽にお問い合わせください!
情報更新日:
次回更新予定日:
※次回更新予定日について:お店側では順次空室確認を行っていますが、次回更新予定日までに空室確認が行えない場合には、この物件情報は自動的に削除されます。
ソルナクレイシア西荻窪2 203号室の賃貸物件部屋概要
家賃 |
7.9万円
初期費用を |
|---|---|
共益費 |
10,000円
入居可能時期 |
敷金/礼金 |
- / - |
保証金/ |
- / - |
最寄駅 |
|
所在地 |
東京都杉並区西荻南 |
部屋番号 |
203号室 |
間取り |
1K |
専有面積 |
20.97㎡ |
築年数 |
2021年2月(築5年) |
階数 |
1階部分(地上2階建) |
方位・位置 |
南西 / その他 |
物件種別 |
賃貸アパート |
構造 |
鉄骨造 |
駐車場 |
無 |
小学校学区 |
高井戸第四小学校 |
中学校学区 |
神明中学校 |
他の空き部屋 |
102号室 |
- 学区データについて
- ※学区データは必ずしも正確とは限りません。詳細に関しては最寄店舗または各自治体の教育委員会に必ずご確認ください。
ソルナクレイシア西荻窪2 203号室の特徴
契約条件
敷金と礼金が無料なため、初期費用が比較的安くなる傾向にあります。
セキュリティ
来客時には居室内のテレビモニターにて訪問者の顔を確認することができます。
室内設備
システムキッチンには、IHコンロが備え付けられています。 トイレは、温水洗浄便座機能付きになります。 女性に嬉しい設備の独立した洗面化粧台があります。 洗濯に便利な設備として、室内洗濯機置場があります。浴室乾燥機も設置されているので、梅雨時の生乾き臭も比較的防ぐことができます。
居室状況
お部屋の床は、フローリングとなっており、エアコンが設置されています。 インターネットも無料で入居後すぐ生活が始められます。 収納スペースとして、基本的な居室にクローゼットを設置、玄関にはシューズボックスがあります。
建物設備共用部分
駐輪場が利用できます。
周辺施設
この物件の学区は、高井戸第四小学校区・神明中学校区です。
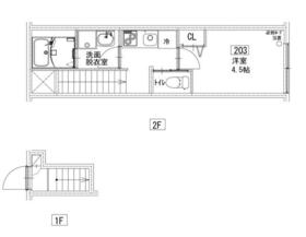
ソルナクレイシア西荻窪2 203号室の間取り
間取り:1K
間取詳細:1K
専有面積:20.97㎡
方位:南西
部屋位置:その他
ソルナクレイシア西荻窪2 203号室の設備
キッチン
システムキッチン
IHコンロ
バス・トイレ
バス・トイレ別
浴室乾燥機
温水洗浄便座
独立洗面台
玄関
TVモニタ付インターホン
収納
クローゼット
シューズボックス
室内設備
エアコン
フローリング
室内洗濯機置場
位置・立地
1階
インフラ
インターネット可
BS
CS
都市ガス
建物設備
駐輪場
メゾネット
ライフステージ
一人暮らしに人気の設備
カップルに人気の設備
家族に人気の設備
夫婦に人気の設備
三世代で人気の設備
こだわり
雨の日でも洗濯したい
洋室で暮らしたい
お得な条件
インターネット無料
ソルナクレイシア西荻窪2 203号室の賃貸契約情報
毎月支払う |
家賃7.9万円/月共益費10,000円/月 |
|---|---|
初期費用 |
敷金-礼金-保証金-敷引き償却金- |
更新料 |
79,000円 |
鍵交換費用 |
22,000円 |
室内清掃費用 |
- |
24時間メンテナンスサービス(2年毎・加入必須) |
16,500円 |
退去時クリーニング費用(契約時) |
33,000円 |
駐車場料金 |
無 |
損保・ |
借家賠付きの火災保険にご加入いただきます。 |
保証会社 |
加入要 保証会社利用料:全保連 初回保証料:賃料総額の60%~ 年間保証料:13,000円 口座振替手数料330円/月 |
契約期間 |
2年 |
入居可能日 |
2026年02月下旬 |
フリーレント期間 |
- |
取引形態 |
一般媒介 |
備考 |
- |
ソルナクレイシア西荻窪2 203号室の建物情報
建物名称 |
ソルナクレイシア西荻窪2 |
|---|---|
最寄駅 |
|
所在地 |
東京都杉並区西荻南 |
階層 |
1階部分(地上2階建) |
構造 |
鉄骨造 |
築年数 |
2021年2月(築5年) |
駐車場 |
無 |
小学校学区 |
高井戸第四小学校 |
中学校学区 |
神明中学校 |
- 学区データについて
- ※学区データは必ずしも正確とは限りません。詳細に関しては最寄店舗または各自治体の教育委員会に必ずご確認ください。
無料この物件に問い合わせ
- ソルナクレイシア西荻窪2 203号室

-
7.9万円
(共益費
10,000円)
- 敷
- -
- 礼
- -
- 保
- -
- 償
- -
ソルナクレイシア西荻窪2 203号室の物件のお問い合わせ先・取り扱い店舗
ハウスコム 荻窪店
- アクセス
-
中央本線(JR東日本)「荻窪駅」徒歩1分
- 住所
- 〒167-0051 東京都杉並区荻窪5-28-12 サカエビル8階
- 営業時間
- 10:00~18:00
- 定休日
- 水曜日
- 営業エリア
- 杉並区,中野区、練馬区、武蔵野市
- 取引態様
- 賃貸仲介業



















