ムーンロータス 203号室(2階/1K)の賃貸物件(賃貸アパート)
東京都板橋区にあるムーンロータス 203号室はバス・トイレ別、クローゼット、エアコン、最上階、インターネット可などが特徴です。最寄り駅の都営三田線本蓮沼駅から徒歩5分です。ムーンロータス 203号室の詳細はハウスコム 練馬店までお気軽にお問い合わせください!
情報更新日:
次回更新予定日:
※次回更新予定日について:お店側では順次空室確認を行っていますが、次回更新予定日までに空室確認が行えない場合には、この物件情報は自動的に削除されます。
ムーンロータス 203号室の賃貸物件部屋概要
家賃 |
6.5万円
初期費用を |
|---|---|
共益費 |
10,000円
入居可能時期 |
敷金/礼金 |
1ヶ月 / 1ヶ月 |
保証金/ |
- / - |
最寄駅 |
|
所在地 |
東京都板橋区蓮沼町 |
部屋番号 |
203号室 |
間取り |
1K(K2) |
専有面積 |
23.18㎡ |
築年数 |
2000年1月(築26年) |
階数 |
2階部分(地上2階建) |
方位・位置 |
南 / 角部屋 |
物件種別 |
賃貸アパート |
構造 |
木造 |
駐車場 |
無 |
小学校学区 |
志村第三小学校 |
中学校学区 |
志村第二中学校 |
他の空き部屋 |
ー |
- 学区データについて
- ※学区データは必ずしも正確とは限りません。詳細に関しては最寄店舗または各自治体の教育委員会に必ずご確認ください。
ムーンロータス 203号室の特徴
室内設備
ガスコンロが備え付けられています。
居室状況
居室には、ロフトが設置されており大規模な収納スペースやセパレートされた寝室として活用できます。 お部屋の床は、フローリングとなっており、エアコンが設置されています。 収納スペースとして、基本的な居室にクローゼットがあります。
建物設備共用部分
居室外の専有スペースとして、洗濯物を干すなどの用途として利用できるバルコニーがあります。
周辺施設
この物件の学区は、志村第三小学校区・志村第二中学校区です。
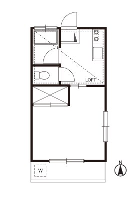
ムーンロータス 203号室の間取り
間取り:1K
間取詳細:1K(K2)
専有面積:23.18㎡
方位:南
部屋位置:角部屋
ムーンロータス 203号室の設備
キッチン
ガスコンロ
バス・トイレ
バス・トイレ別
収納
クローゼット
バルコニー
バルコニー
ルーフバルコニー
室内設備
エアコン
フローリング
ロフト付
位置・立地
2階以上
最上階
角部屋
南向き
インフラ
インターネット可
都市ガス
ライフステージ
一人暮らしに人気の設備
カップルに人気の設備
家族に人気の設備
夫婦に人気の設備
三世代で人気の設備
こだわり
日当たり重視
外で子どもと遊びたい
洋室で暮らしたい
趣味
ガーデニングが好き
ムーンロータス 203号室の賃貸契約情報
毎月支払う |
家賃6.5万円/月共益費10,000円/月 |
|---|---|
初期費用 |
敷金1ヶ月 (6.5万円)礼金1ヶ月 (6.5万円)保証金-敷引き償却金- |
更新料 |
97,500円 |
鍵交換費用 |
22,000円 |
室内清掃費用 |
- |
プレミアデスク(税込/2年) |
22,000円 |
駐車場料金 |
無 |
損保・ |
借家賠付きの火災保険にご加入いただきます。 |
保証会社 |
加入要 保証会社:Casa 保証会社利用料:※エポス ルームIDからの審査になります。 【ルームID】月額総賃料の50%/月次保証料、月額総賃料の1.5%/1年毎10,000円 【アーク賃貸保証】月額総賃料の40%/次年度以降10,000円 |
契約期間 |
2年 |
入居可能日 |
相談 |
フリーレント期間 |
- |
取引形態 |
一般媒介 |
備考 |
- |
ムーンロータス 203号室の建物情報
建物名称 |
ムーンロータス |
|---|---|
最寄駅 |
|
所在地 |
東京都板橋区蓮沼町 |
階層 |
2階部分(地上2階建) |
構造 |
木造 |
築年数 |
2000年1月(築26年) |
駐車場 |
無 |
小学校学区 |
志村第三小学校 |
中学校学区 |
志村第二中学校 |
- 学区データについて
- ※学区データは必ずしも正確とは限りません。詳細に関しては最寄店舗または各自治体の教育委員会に必ずご確認ください。
無料この物件に問い合わせ
- ムーンロータス 203号室

-
6.5万円
(共益費
10,000円)
- 敷
- 1ヶ月
- 礼
- 1ヶ月
- 保
- -
- 償
- -
ムーンロータス 203号室の物件のお問い合わせ先・取り扱い店舗
ハウスコム 練馬店
- アクセス
-
西武池袋線・豊島線「練馬駅」南口徒歩1分
都営大江戸線「練馬駅」A2出口徒歩1分
- 住所
- 〒176-0001 東京都練馬区練馬1丁目2−9 K&Iビル 1階
- 営業時間
- 10:00~18:00
- 定休日
- なし(年末年始休業(12月25日~1月3日))
- 営業エリア
- 練馬区、中野区、杉並区、板橋区、豊島区、西東京市、和光市、朝霞市、新座市お探しとあればどこでもお探し致します。
- 取引態様
- 賃貸仲介業






















