パティーナ武蔵関 101号室(1階/1K)の賃貸物件(賃貸マンション)
東京都練馬区にあるパティーナ武蔵関 101号室はバス・トイレ別、1階、インターネット可、外国人可・相談、オンライン内見可などが特徴です。最寄り駅の西武新宿線武蔵関駅から徒歩5分です。パティーナ武蔵関 101号室の詳細はハウスコム 吉祥寺店までお気軽にお問い合わせください!
情報更新日:
次回更新予定日:
※次回更新予定日について:お店側では順次空室確認を行っていますが、次回更新予定日までに空室確認が行えない場合には、この物件情報は自動的に削除されます。
パティーナ武蔵関 101号室の賃貸物件部屋概要
家賃 |
8.75万円
初期費用を |
|---|---|
共益費 |
15,000円
入居可能時期 |
敷金/礼金 |
1ヶ月 / 1ヶ月 |
保証金/ |
- / 1ヶ月 |
最寄駅 |
|
所在地 |
東京都練馬区関町北 |
部屋番号 |
101号室 |
間取り |
1K(洋7.8) |
専有面積 |
25.50㎡ |
築年数 |
2016年8月(築10年) |
階数 |
1階部分(地上10階建) |
方位・位置 |
南 / その他 |
物件種別 |
賃貸マンション |
構造 |
RC |
駐車場 |
- |
小学校学区 |
関町小学校 |
中学校学区 |
石神井西中学校 |
他の空き部屋 |
102号室 303号室 902号室 |
- 学区データについて
- ※学区データは必ずしも正確とは限りません。詳細に関しては最寄店舗または各自治体の教育委員会に必ずご確認ください。
パティーナ武蔵関 101号室の特徴
-
一人暮らしに人気の設備

-
カップルに人気の設備

-
家族に人気の設備

-
夫婦に人気の設備

-
三世代で人気の設備

-
外で子どもと遊びたい

-
雨の日でも洗濯したい

-
洋室で暮らしたい

-
推し活グッズを飾りたい

-
ガーデニングが好き

契約条件
この物件は、外国籍の方もご相談の上、2人入居もご契約できます。 ペットの飼育もご相談ください。 また、ご契約時に保証人は不要です。
セキュリティ
この物件の建物には、オートロックや宅配ボックスが設置されており、来客時には居室内のテレビモニターにて訪問者の顔を確認することができます。
室内設備
システムキッチンには、2つ以上のガスコンロが備え付けられています。 トイレは、温水洗浄便座機能付きになります。 女性に嬉しい設備のシャワーの付いている洗面化粧台があります。 洗濯に便利な設備として、室内洗濯機置場があります。浴室乾燥機も設置されているので、梅雨時の生乾き臭も比較的防ぐことができます。
居室状況
お部屋の床は、フローリングとなっており、エアコンが設置されています。 収納スペースとして、基本的な居室にクローゼットを設置、玄関にはシューズボックスがあります。
建物設備共用部分
居室外の専有スペースとして、洗濯物を干すなどの用途として利用できるバルコニーがあります。 建物の共用スペースに、日々の出入に便利なエレベーターや、急な外出や不在がちのご家庭の荷物受け取りに便利な宅配ボックスが設置されています。 駐輪場が利用できます。
周辺施設
この物件の学区は、関町小学校区・石神井西中学校区です。
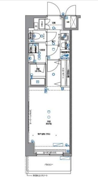
パティーナ武蔵関 101号室の間取り
間取り:1K
間取詳細:1K(洋7.8)
専有面積:25.50㎡
方位:南
部屋位置:その他
パティーナ武蔵関 101号室の設備
キッチン
システムキッチン
カウンターキッチン
ガスコンロ
ガスコンロ二口以上
バス・トイレ
バス・トイレ別
浴室乾燥機
温水洗浄便座
独立洗面台
シャワー付洗面化粧台
玄関
TVモニタ付インターホン
オートロック
宅配ボックス
収納
クローゼット
シューズボックス
バルコニー
バルコニー
ルーフバルコニー
室内設備
エアコン
フローリング
室内洗濯機置場
位置・立地
1階
南向き
インフラ
インターネット可
BS
CS
建物設備
エレベーター
駐輪場
入居条件
ペット可・相談
2人入居可
外国人可・相談
オンライン相談可
オンライン内見可
保証人不要
ライフステージ
一人暮らしに人気の設備
カップルに人気の設備
家族に人気の設備
夫婦に人気の設備
三世代で人気の設備
こだわり
外で子どもと遊びたい
雨の日でも洗濯したい
洋室で暮らしたい
趣味
推し活グッズを飾りたい
ガーデニングが好き
パティーナ武蔵関 101号室の賃貸契約情報
毎月支払う |
家賃8.75万円/月共益費15,000円/月 |
|---|---|
初期費用 |
敷金1ヶ月 (8.75万円)礼金1ヶ月 (8.75万円)保証金-敷引き償却金1ヶ月 |
更新料 |
131,250円 |
鍵交換費用 |
- |
室内清掃費用 |
- |
駐車場料金 |
- |
損保・ |
借家賠付きの火災保険にご加入いただきます。 |
保証会社 |
加入要 保証会社利用料:初回保証料賃料総額50% |
契約期間 |
2年 |
入居可能日 |
2026年03月 |
フリーレント期間 |
- |
取引形態 |
一般媒介 |
備考 |
初期:24Hコールセンター 21450円 更新代 16500円 保証会社利用必須 初回保証料賃料総額50% |
パティーナ武蔵関 101号室の建物情報
建物名称 |
パティーナ武蔵関 |
|---|---|
最寄駅 |
|
所在地 |
東京都練馬区関町北 |
階層 |
1階部分(地上10階建) |
構造 |
RC |
築年数 |
2016年8月(築10年) |
駐車場 |
- |
小学校学区 |
関町小学校 |
中学校学区 |
石神井西中学校 |
- 学区データについて
- ※学区データは必ずしも正確とは限りません。詳細に関しては最寄店舗または各自治体の教育委員会に必ずご確認ください。
無料この物件に問い合わせ
- パティーナ武蔵関 101号室

-
8.75万円
(共益費
15,000円)
- 敷
- 1ヶ月
- 礼
- 1ヶ月
- 保
- -
- 償
- 1ヶ月
パティーナ武蔵関 101号室の物件のお問い合わせ先・取り扱い店舗
ハウスコム 吉祥寺店
- アクセス
-
中央本線(JR東日本)「吉祥寺駅」公園口徒歩1分
- 住所
- 〒180-0003 東京都武蔵野市吉祥寺南町1丁目3−1 吉祥寺駅前井口ビル 2F
- 営業時間
- 10:00~18:00
- 定休日
- なし
- 営業エリア
- 武蔵野市・三鷹市・杉並区・練馬区・小金井市・調布市
- 取引態様
- 賃貸仲介業



















