センチュリー八王子ルミエール 302号室(3階/2LDK)の賃貸物件(賃貸マンション)
東京都八王子市にあるセンチュリー八王子ルミエール 302号室は追い焚き、独立洗面台、TVモニタ付インターホン、クローゼット、バイク置き場などが特徴です。最寄り駅の中央本線(JR東日本)八王子駅から徒歩7分です。センチュリー八王子ルミエール 302号室の詳細はハウスコム 八王子駅前店までお気軽にお問い合わせください!
情報更新日:
次回更新予定日:
※次回更新予定日について:お店側では順次空室確認を行っていますが、次回更新予定日までに空室確認が行えない場合には、この物件情報は自動的に削除されます。
センチュリー八王子ルミエール 302号室の賃貸物件部屋概要
家賃 |
21.1万円
初期費用を |
|---|---|
共益費 |
15,000円
入居可能時期 |
敷金/礼金 |
1ヶ月 / - |
保証金/ |
- / - |
最寄駅 |
|
所在地 |
東京都八王子市明神町 |
部屋番号 |
302号室 |
間取り |
2LDK(洋6×2・LDK16) |
専有面積 |
55.00㎡ |
築年数 |
新築 |
階数 |
3階部分(地上11階建) |
方位・位置 |
南 / その他 |
物件種別 |
賃貸マンション |
構造 |
RC |
駐車場 |
20,900円 |
小学校学区 |
第四小学校 |
中学校学区 |
第五中学校 |
他の空き部屋 |
101号室 102号室 103号室 104号室 105号室 106号室 202号室 206号室 207号室 209号室 210号室 301号室 306号室 310号室 604号室 607号室 608号室 609号室 707号室 708号室 |
- 学区データについて
- ※学区データは必ずしも正確とは限りません。詳細に関しては最寄店舗または各自治体の教育委員会に必ずご確認ください。
センチュリー八王子ルミエール 302号室の特徴
-
一人暮らしに人気の設備

-
カップルに人気の設備

-
家族に人気の設備

-
夫婦に人気の設備

-
三世代で人気の設備

-
セキュリティ対策重視

-
収納重視

-
キッチン重視

-
外で子どもと遊びたい

-
雨の日でも洗濯したい

-
洋室で暮らしたい

-
持ち物をスッキリ隠す収納部屋

-
自炊が多めなあなたに

-
料理が好き

-
推し活グッズを飾りたい

-
オークション・通販が好き

-
ガーデニングが好き

契約条件
この物件は、入居者が学生限定もしくは歓迎で2人入居もご契約できます。 ペットの飼育もご相談ください。 また、ご契約時に保証人は不要です。 礼金が無料なため、初期費用が比較的安くなる傾向にあります。
セキュリティ
この物件の建物には、オートロックや防犯カメラや宅配ボックスが設置されており、来客時には居室内のテレビモニターにて訪問者の顔を確認することができます。
室内設備
システムキッチンには、ガスコンロが設置されており、キッチン設備として食洗機が備え付けられています。 お風呂とトイレは別です。お風呂には、追い焚き機能が備わっています。 トイレは、温水洗浄便座機能付きになります。 女性に嬉しい設備のシャワーの付いている洗面化粧台があります。 洗濯に便利な設備として、室内洗濯機置場があります。浴室乾燥機も設置されているので、梅雨時の生乾き臭も比較的防ぐことができます。
居室状況
お部屋の床は、フローリングとなっており、エアコンが設置されています。 照明器具が備え付けられており、インターネットも無料で入居後すぐ生活が始められます。 収納スペースとして、基本的な居室にクローゼットを設置、玄関にはシューズボックスがあります。
建物設備共用部分
居室外の専有スペースとして、洗濯物を干すなどの用途として利用できるバルコニーがあります。 建物の共用スペースに、日々の出入に便利なエレベーターや、いざという時の防犯カメラや、急な外出や不在がちのご家庭の荷物受け取りに便利な宅配ボックスが設置されています。 平面駐車場があります。駐輪場、バイク置き場が利用できます。
周辺施設
この物件の学区は、第四小学校区・第五中学校区です。
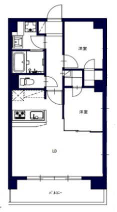
センチュリー八王子ルミエール 302号室の間取り
間取り:2LDK
間取詳細:2LDK(洋6×2・LDK16)
専有面積:55.00㎡
方位:南
部屋位置:その他
センチュリー八王子ルミエール 302号室の設備
キッチン
システムキッチン
カウンターキッチン
ガスコンロ
食洗機
バス・トイレ
バス・トイレ別
追い焚き
浴室乾燥機
温水洗浄便座
独立洗面台
シャワー付洗面化粧台
玄関
TVモニタ付インターホン
オートロック
宅配ボックス
収納
クローゼット
シューズボックス
全居室収納
バルコニー
バルコニー
ルーフバルコニー
室内設備
エアコン
フローリング
室内洗濯機置場
照明器具付
位置・立地
2階以上
南向き
インフラ
インターネット可
都市ガス
建物設備
エレベーター
防犯カメラ
駐車場
平面駐車場
駐輪場
バイク置き場
入居条件
ペット可・相談
2人入居可
学生限定・歓迎
オンライン相談可
オンライン内見可
保証人不要
ライフステージ
一人暮らしに人気の設備
カップルに人気の設備
家族に人気の設備
夫婦に人気の設備
三世代で人気の設備
こだわり
セキュリティ対策重視
収納重視
キッチン重視
外で子どもと遊びたい
雨の日でも洗濯したい
洋室で暮らしたい
持ち物をスッキリ隠す収納部屋
自炊が多めなあなたに
趣味
料理が好き
推し活グッズを飾りたい
オークション・通販が好き
ガーデニングが好き
お得な条件
インターネット無料
センチュリー八王子ルミエール 302号室の賃貸契約情報
毎月支払う |
家賃21.1万円/月共益費15,000円/月 |
|---|---|
初期費用 |
敷金1ヶ月 (21.1万円)礼金-保証金-敷引き償却金- |
更新料 |
211,000円 |
鍵交換費用 |
- |
室内清掃費用 |
- |
駐車場料金 |
20,900円 |
損保・ |
借家賠付きの火災保険にご加入いただきます。 |
保証会社 |
加入要 保証会社利用料:初回50% 月次1200円 |
契約期間 |
- |
入居可能日 |
即入居可 |
フリーレント期間 |
- |
取引形態 |
一般媒介 |
備考 |
1年以内短期違約金家賃等1か月分 24時間サポート16500円 火災保険要 ペット飼育時敷金積み増し料金(償却)有り |
センチュリー八王子ルミエール 302号室の建物情報
建物名称 |
センチュリー八王子ルミエール |
|---|---|
最寄駅 |
|
所在地 |
東京都八王子市明神町 |
階層 |
3階部分(地上11階建) |
構造 |
RC |
築年数 |
新築 |
駐車場 |
20,900円 |
小学校学区 |
第四小学校 |
中学校学区 |
第五中学校 |
- 学区データについて
- ※学区データは必ずしも正確とは限りません。詳細に関しては最寄店舗または各自治体の教育委員会に必ずご確認ください。
無料この物件に問い合わせ
- センチュリー八王子ルミエール 302号室

-
21.1万円
(共益費
15,000円)
- 敷
- 1ヶ月
- 礼
- -
- 保
- -
- 償
- -
センチュリー八王子ルミエール 302号室の物件のお問い合わせ先・取り扱い店舗
ハウスコム 八王子駅前店
- アクセス
-
中央本線(JR東日本)「八王子駅」北口徒歩1分
- 住所
- 〒192-0083 東京都八王子市旭町2-12 サンドラッグ八王子駅前ビル6階
- 営業時間
- 10:00~18:00
- 定休日
- なし
- 営業エリア
- 【八王子市】【日野市】【相模原市】【あきる野市】【昭島市】【福生市】【青梅市】【羽村市】【瑞穂町】【町田市】【多摩市】
- 取引態様
- 賃貸仲介業























