SHOKEN Residence八王子 207号室(2階/1K)の賃貸物件(賃貸マンション)
東京都八王子市にあるSHOKEN Residence八王子 207号室はシャワー付洗面化粧台、TVモニタ付インターホン、シューズボックス、バルコニー、照明器具付などが特徴です。最寄り駅の京王線京王八王子駅から徒歩7分です。SHOKEN Residence八王子 207号室の詳細はハウスコム 八王子駅前店までお気軽にお問い合わせください!
情報更新日:
次回更新予定日:
※次回更新予定日について:お店側では順次空室確認を行っていますが、次回更新予定日までに空室確認が行えない場合には、この物件情報は自動的に削除されます。
SHOKEN Residence八王子 207号室の賃貸物件部屋概要
家賃 |
8.3万円
初期費用を |
|---|---|
共益費 |
10,000円
入居可能時期 |
敷金/礼金 |
- / - |
保証金/ |
- / - |
最寄駅 |
|
所在地 |
東京都八王子市明神町 |
部屋番号 |
207号室 |
間取り |
1K(洋8.3・K2) |
専有面積 |
25.59㎡ |
築年数 |
新築 |
階数 |
2階部分(地上10階建) |
方位・位置 |
北東 / その他 |
物件種別 |
賃貸マンション |
構造 |
RC |
駐車場 |
近隣 16,500円 |
小学校学区 |
第四小学校 |
中学校学区 |
第五中学校 |
他の空き部屋 |
1003号室 1004号室 1009号室 201号室 202号室 203号室 204号室 205号室 206号室 208号室 302号室 303号室 304号室 305号室 306号室 307号室 308号室 309号室 311号室 312号室 401号室 402号室 403号室 404号室 406号室 407号室 408号室 409号室 410号室 411号室 412号室 413号室 501号室 502号室 503号室 504号室 505号室 506号室 508号室 509号室 510号室 511号室 512号室 513号室 601号室 602号室 603号室 604号室 605号室 608号室 609号室 610号室 611号室 613号室 701号室 702号室 703号室 704号室 705号室 706号室 709号室 710号室 711号室 712号室 714号室 802号室 803号室 804号室 805号室 806号室 810号室 811号室 901号室 902号室 903号室 904号室 905号室 906号室 909号室 910号室 912号室 913号室 |
- 学区データについて
- ※学区データは必ずしも正確とは限りません。詳細に関しては最寄店舗または各自治体の教育委員会に必ずご確認ください。
SHOKEN Residence八王子 207号室の特徴
-
一人暮らしに人気の設備

-
カップルに人気の設備

-
家族に人気の設備

-
夫婦に人気の設備

-
三世代で人気の設備

-
セキュリティ対策重視

-
収納重視

-
外で子どもと遊びたい

-
身だしなみに気をつかいたい

-
雨の日でも洗濯したい

-
洋室で暮らしたい

-
持ち物をスッキリ隠す収納部屋

-
オークション・通販が好き

-
ガーデニングが好き

契約条件
この物件は、入居者が学生限定もしくは歓迎でご契約できます。 また、ご契約時に保証人は不要です。 敷金と礼金が無料なため、初期費用が比較的安くなる傾向にあります。
セキュリティ
この物件の建物には、オートロックや防犯カメラや宅配ボックスが設置されており、来客時には居室内のテレビモニターにて訪問者の顔を確認することができます。
室内設備
システムキッチンには、2つ以上のガスコンロが備え付けられています。 お風呂とトイレは別です。お風呂には、追い焚き機能が備わっています。 トイレは、温水洗浄便座機能付きになります。 女性に嬉しい設備のシャワーの付いている洗面化粧台があります。 洗濯に便利な設備として、室内洗濯機置場があります。浴室乾燥機も設置されているので、梅雨時の生乾き臭も比較的防ぐことができます。
居室状況
お部屋の床は、フローリングとなっており、エアコンが設置されています。 照明器具が備え付けられており、インターネットも無料で入居後すぐ生活が始められます。 収納スペースとして、基本的な居室にクローゼットを設置、玄関にはシューズボックスがあります。
建物設備共用部分
居室外の専有スペースとして、洗濯物を干すなどの用途として利用できるバルコニーがあります。 建物の共用スペースに、日々の出入に便利なエレベーターや、いざという時の防犯カメラや、急な外出や不在がちのご家庭の荷物受け取りに便利な宅配ボックスが設置されています。 駐輪場が利用できます。
周辺施設
この物件の学区は、第四小学校区・第五中学校区です。
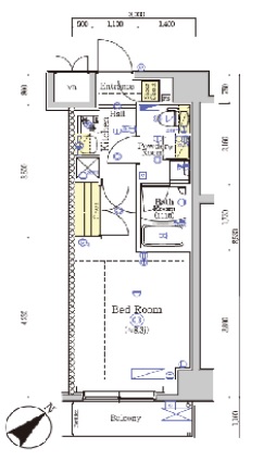
SHOKEN Residence八王子 207号室の間取り
間取り:1K
間取詳細:1K(洋8.3・K2)
専有面積:25.59㎡
方位:北東
部屋位置:その他
SHOKEN Residence八王子 207号室の設備
キッチン
システムキッチン
ガスコンロ
ガスコンロ二口以上
バス・トイレ
バス・トイレ別
追い焚き
浴室乾燥機
温水洗浄便座
独立洗面台
シャワー付洗面化粧台
玄関
TVモニタ付インターホン
オートロック
宅配ボックス
収納
クローゼット
シューズボックス
全居室収納
バルコニー
バルコニー
ルーフバルコニー
室内設備
エアコン
フローリング
室内洗濯機置場
照明器具付
位置・立地
2階以上
インフラ
インターネット可
都市ガス
建物設備
エレベーター
防犯カメラ
駐輪場
分譲賃貸
入居条件
学生限定・歓迎
オンライン相談可
オンライン内見可
保証人不要
ライフステージ
一人暮らしに人気の設備
カップルに人気の設備
家族に人気の設備
夫婦に人気の設備
三世代で人気の設備
こだわり
セキュリティ対策重視
収納重視
外で子どもと遊びたい
身だしなみに気をつかいたい
雨の日でも洗濯したい
洋室で暮らしたい
持ち物をスッキリ隠す収納部屋
趣味
オークション・通販が好き
ガーデニングが好き
お得な条件
インターネット無料
SHOKEN Residence八王子 207号室の賃貸契約情報
毎月支払う |
家賃8.3万円/月共益費10,000円/月 |
|---|---|
初期費用 |
敷金-礼金-保証金-敷引き償却金- |
更新料 |
128,650円 |
鍵交換費用 |
- |
室内清掃費用 |
- |
駐車場料金 |
近隣 16,500円 |
損保・ |
借家賠付きの火災保険にご加入いただきます。 |
保証会社 |
加入要 保証会社利用料:初回40パーセント 年1万円 法人50パーセント |
契約期間 |
- |
入居可能日 |
即入居可 |
フリーレント期間 |
- |
取引形態 |
一般媒介 |
備考 |
スマートロック利用料23000円 月額1500円 退去時清掃代49500円 エアコン清掃16500円 24時間駆けつけサービス38400円 1年以内短期違約金家賃等1か月分 |
SHOKEN Residence八王子 207号室の建物情報
建物名称 |
SHOKEN Residence八王子 |
|---|---|
最寄駅 |
|
所在地 |
東京都八王子市明神町 |
階層 |
2階部分(地上10階建) |
構造 |
RC |
築年数 |
新築 |
駐車場 |
近隣 16,500円 |
小学校学区 |
第四小学校 |
中学校学区 |
第五中学校 |
- 学区データについて
- ※学区データは必ずしも正確とは限りません。詳細に関しては最寄店舗または各自治体の教育委員会に必ずご確認ください。
無料この物件に問い合わせ
- SHOKEN Residence八王子 207号室

-
8.3万円
(共益費
10,000円)
- 敷
- -
- 礼
- -
- 保
- -
- 償
- -
SHOKEN Residence八王子 207号室の物件のお問い合わせ先・取り扱い店舗
ハウスコム 八王子駅前店
- アクセス
-
中央本線(JR東日本)「八王子駅」北口徒歩1分
- 住所
- 〒192-0083 東京都八王子市旭町2-12 サンドラッグ八王子駅前ビル6階
- 営業時間
- 10:00~18:00
- 定休日
- なし
- 営業エリア
- 【八王子市】【日野市】【相模原市】【あきる野市】【昭島市】【福生市】【青梅市】【羽村市】【瑞穂町】【町田市】【多摩市】
- 取引態様
- 賃貸仲介業





























