ソルナクレイシア学芸大学 105号室(1階/1DK)の賃貸物件(賃貸マンション)
東京都世田谷区にあるソルナクレイシア学芸大学 105号室は独立洗面台、シューズボックス、デザイナーズ、BS、オンライン相談可などが特徴です。最寄り駅の東急東横線学芸大学駅から徒歩8分です。ソルナクレイシア学芸大学 105号室の詳細はハウスコム 三軒茶屋店までお気軽にお問い合わせください!
情報更新日:
次回更新予定日:
※次回更新予定日について:お店側では順次空室確認を行っていますが、次回更新予定日までに空室確認が行えない場合には、この物件情報は自動的に削除されます。
ソルナクレイシア学芸大学 105号室の賃貸物件部屋概要
家賃 |
12.3万円
初期費用を |
|---|---|
共益費 |
15,000円
入居可能時期 |
敷金/礼金 |
- / 1ヶ月 |
保証金/ |
- / - |
最寄駅 |
|
所在地 |
東京都世田谷区下馬 |
部屋番号 |
105号室 |
間取り |
1DK(洋3.5・DK6.9) |
専有面積 |
25.25㎡ |
築年数 |
新築 |
階数 |
1階部分(地上3階建) |
方位・位置 |
南東 / 角部屋 |
物件種別 |
賃貸マンション |
構造 |
鉄骨造 |
駐車場 |
無 |
小学校学区 |
中丸小学校 |
中学校学区 |
駒留中学校 |
他の空き部屋 |
101号室 102号室 103号室 104号室 201号室 202号室 203号室 204号室 |
- 学区データについて
- ※学区データは必ずしも正確とは限りません。詳細に関しては最寄店舗または各自治体の教育委員会に必ずご確認ください。
ソルナクレイシア学芸大学 105号室の特徴
契約条件
ご契約時に保証人は不要です。 敷金が無料なため、初期費用が比較的安くなる傾向にあります。
セキュリティ
来客時には居室内のテレビモニターにて訪問者の顔を確認することができます。
室内設備
システムキッチンには、2つ以上のガスコンロが備え付けられています。 トイレは、温水洗浄便座機能付きになります。 女性に嬉しい設備の独立した洗面化粧台があります。 洗濯に便利な設備として、室内洗濯機置場があります。浴室乾燥機も設置されているので、梅雨時の生乾き臭も比較的防ぐことができます。
居室状況
お部屋の床は、フローリングとなっており、エアコンが設置されています。 照明器具が備え付けられており、インターネットも無料で入居後すぐ生活が始められます。 収納スペースとして、基本的な居室にクローゼットを設置、玄関にはシューズボックスがあります。
周辺施設
この物件の学区は、中丸小学校区・駒留中学校区です。
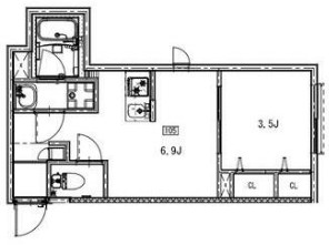
ソルナクレイシア学芸大学 105号室の間取り
間取り:1DK
間取詳細:1DK(洋3.5・DK6.9)
専有面積:25.25㎡
方位:南東
部屋位置:角部屋
ソルナクレイシア学芸大学 105号室の設備
キッチン
システムキッチン
カウンターキッチン
ガスコンロ
ガスコンロ二口以上
バス・トイレ
バス・トイレ別
浴室乾燥機
温水洗浄便座
独立洗面台
玄関
TVモニタ付インターホン
収納
クローゼット
シューズボックス
室内設備
エアコン
フローリング
室内洗濯機置場
照明器具付
デザイナーズ
位置・立地
1階
角部屋
インフラ
インターネット可
BS
都市ガス
入居条件
オンライン相談可
オンライン内見可
保証人不要
即入居可
ライフステージ
一人暮らしに人気の設備
カップルに人気の設備
家族に人気の設備
夫婦に人気の設備
三世代で人気の設備
こだわり
雨の日でも洗濯したい
洋室で暮らしたい
趣味
推し活グッズを飾りたい
お得な条件
インターネット無料
ソルナクレイシア学芸大学 105号室の賃貸契約情報
毎月支払う |
家賃12.3万円/月共益費15,000円/月 |
|---|---|
初期費用 |
敷金-礼金1ヶ月 (12.3万円)保証金-敷引き償却金- |
更新料 |
123,000円 |
鍵交換費用 |
- |
室内清掃費用 |
44,000円 |
駐車場料金 |
無 |
損保・ |
借家賠付きの火災保険にご加入いただきます。 |
保証会社 |
加入要 保証会社利用料:賃料総額の60% 1年毎13000円 月額330円 |
契約期間 |
2年 |
入居可能日 |
即入居可 |
フリーレント期間 |
- |
取引形態 |
一般媒介 |
備考 |
- |
ソルナクレイシア学芸大学 105号室の建物情報
建物名称 |
ソルナクレイシア学芸大学 |
|---|---|
最寄駅 |
|
所在地 |
東京都世田谷区下馬 |
階層 |
1階部分(地上3階建) |
構造 |
鉄骨造 |
築年数 |
新築 |
駐車場 |
無 |
小学校学区 |
中丸小学校 |
中学校学区 |
駒留中学校 |
- 学区データについて
- ※学区データは必ずしも正確とは限りません。詳細に関しては最寄店舗または各自治体の教育委員会に必ずご確認ください。
無料この物件に問い合わせ
- ソルナクレイシア学芸大学 105号室

-
12.3万円
(共益費
15,000円)
- 敷
- -
- 礼
- 1ヶ月
- 保
- -
- 償
- -
ソルナクレイシア学芸大学 105号室の物件のお問い合わせ先・取り扱い店舗
ハウスコム 三軒茶屋店
- アクセス
-
東急田園都市線「三軒茶屋駅」南口徒歩1分
- 住所
- 〒154-0024 東京都世田谷区三軒茶屋1丁目38−7 ワコーレ三軒茶屋 2階
- 営業時間
- 10:00~18:00
- 定休日
- なし(年末年始)
- 営業エリア
- 世田谷区・目黒区・渋谷区
- 取引態様
- 賃貸仲介業


































