ムーンライトコーポ 203号室(2階/2LDK)の賃貸物件(賃貸アパート)
茨城県北茨城市にあるムーンライトコーポ 203号室はBS、プロパンガス、駐車2台以上可、オンライン相談可、保証人不要などが特徴です。最寄り駅の常磐線磯原駅から徒歩15分です。ムーンライトコーポ 203号室の詳細はハウスコム 水戸駅前店までお気軽にお問い合わせください!
情報更新日:
次回更新予定日:
※次回更新予定日について:お店側では順次空室確認を行っていますが、次回更新予定日までに空室確認が行えない場合には、この物件情報は自動的に削除されます。
ムーンライトコーポ 203号室の賃貸物件部屋概要
家賃 |
5.9万円
初期費用を |
|---|---|
共益費 |
3,500円
入居可能時期 |
敷金/礼金 |
- / 1ヶ月 |
保証金/ |
- / - |
最寄駅 |
|
所在地 |
茨城県北茨城市磯原町豊田 |
部屋番号 |
203号室 |
間取り |
2LDK(洋4.8・洋6・LDK10) |
専有面積 |
53.82㎡ |
築年数 |
2011年3月(築15年) |
階数 |
2階部分(地上2階建) |
方位・位置 |
南 / 角部屋 |
物件種別 |
賃貸アパート |
構造 |
軽量鉄骨 |
駐車場 |
空有 賃料に含む |
小学校学区 |
精華小学校 |
中学校学区 |
磯原中学校 |
他の空き部屋 |
ー |
- 学区データについて
- ※学区データは必ずしも正確とは限りません。詳細に関しては最寄店舗または各自治体の教育委員会に必ずご確認ください。
ムーンライトコーポ 203号室の特徴
-
一人暮らしに人気の設備

-
カップルに人気の設備

-
家族に人気の設備

-
夫婦に人気の設備

-
三世代で人気の設備

-
日当たり重視

-
急な来客でも駐車したい

-
雨の日でも洗濯したい

-
洋室で暮らしたい

-
推し活グッズを飾りたい

契約条件
この物件は、2人入居もご契約できます。 また、ご契約時に保証人は不要です。 敷金が無料なため、初期費用が比較的安くなる傾向にあります。
セキュリティ
来客時には居室内のテレビモニターにて訪問者の顔を確認することができます。
室内設備
カウンターキッチンが備え付けられています。 トイレは、温水洗浄便座機能付きになります。 女性に嬉しい設備の独立した洗面化粧台があります。 洗濯に便利な設備として、室内洗濯機置場があります。
居室状況
お部屋の床は、フローリングとなっており、エアコンが設置されています。 収納スペースとして、基本的な居室にクローゼットを設置、玄関にはシューズボックスがあります。
建物設備共用部分
駐車場があり2台以上の車で利用することができます。
周辺施設
この物件の学区は、精華小学校区・磯原中学校区です。
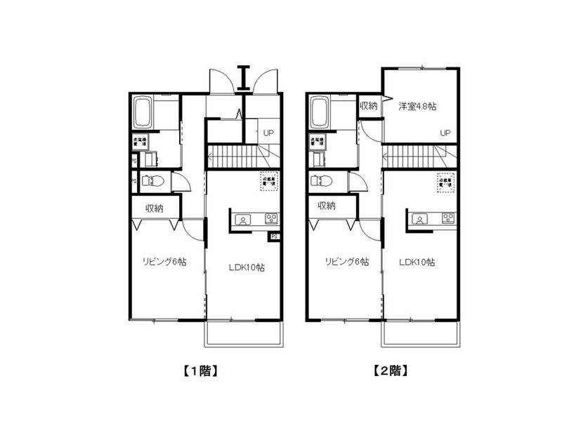
ムーンライトコーポ 203号室の間取り
間取り:2LDK
間取詳細:2LDK(洋4.8・洋6・LDK10)
専有面積:53.82㎡
方位:南
部屋位置:角部屋
ムーンライトコーポ 203号室の設備
キッチン
カウンターキッチン
バス・トイレ
バス・トイレ別
温水洗浄便座
独立洗面台
玄関
TVモニタ付インターホン
収納
クローゼット
シューズボックス
室内設備
エアコン
フローリング
室内洗濯機置場
位置・立地
2階以上
最上階
角部屋
南向き
インフラ
BS
プロパンガス
建物設備
駐車2台以上可
入居条件
2人入居可
オンライン相談可
保証人不要
ライフステージ
一人暮らしに人気の設備
カップルに人気の設備
家族に人気の設備
夫婦に人気の設備
三世代で人気の設備
こだわり
日当たり重視
急な来客でも駐車したい
雨の日でも洗濯したい
洋室で暮らしたい
趣味
推し活グッズを飾りたい
ムーンライトコーポ 203号室の賃貸契約情報
毎月支払う |
家賃5.9万円/月共益費3,500円/月 |
|---|---|
初期費用 |
敷金-礼金1ヶ月 (5.9万円)保証金-敷引き償却金- |
更新料 |
59,000円 |
鍵交換費用 |
28,820円 |
室内清掃費用 |
- |
クリーニング費用 |
74,800円 |
消毒代 |
13,200円 |
駐車場料金 |
空有 賃料に含む |
損保・ |
借家賠付きの火災保険にご加入いただきます。 |
保証会社 |
加入要 保証会社利用料:初回保証料:月額総賃料×50% 事務手数料:月額総賃料×2%(契約時不要:入居後に引落し) |
契約期間 |
2年 |
入居可能日 |
相談 |
フリーレント期間 |
- |
取引形態 |
一般媒介 |
備考 |
法人契約の際は、礼金2ヵ月 |
ムーンライトコーポ 203号室の建物情報
建物名称 |
ムーンライトコーポ |
|---|---|
最寄駅 |
|
所在地 |
茨城県北茨城市磯原町豊田 |
階層 |
2階部分(地上2階建) |
構造 |
軽量鉄骨 |
築年数 |
2011年3月(築15年) |
駐車場 |
空有 賃料に含む |
小学校学区 |
精華小学校 |
中学校学区 |
磯原中学校 |
- 学区データについて
- ※学区データは必ずしも正確とは限りません。詳細に関しては最寄店舗または各自治体の教育委員会に必ずご確認ください。
無料この物件に問い合わせ
- ムーンライトコーポ 203号室

-
5.9万円
(共益費
3,500円)
- 敷
- -
- 礼
- 1ヶ月
- 保
- -
- 償
- -
ムーンライトコーポ 203号室の物件のお問い合わせ先・取り扱い店舗
ハウスコム 水戸駅前店
- アクセス
-
常磐線「水戸駅」徒歩2分
- 住所
- 〒310-0011 茨城県水戸市三の丸1丁目1−3 ステーションフロント水戸 1階
- 営業時間
- 10:00~18:00
- 定休日
- なし
- 営業エリア
- 水戸市 ひたちなか市 那珂市 笠間市 茨城町 大洗町 東海村 日立市 大子町 常陸太田市 常陸大宮市 高萩市 城里町
- 取引態様
- 賃貸仲介業



