LANAI HILLS26 ***号室(1階/2LDK)の賃貸物件(賃貸マンション)
東京都世田谷区にあるLANAI HILLS26 ***号室は浴室乾燥機、クローゼット、1階、CATV、エレベーターなどが特徴です。最寄り駅の東急田園都市線用賀駅から徒歩6分です。LANAI HILLS26 ***号室の詳細はハウスコム 桜新町店までお気軽にお問い合わせください!
情報更新日:
次回更新予定日:
※次回更新予定日について:お店側では順次空室確認を行っていますが、次回更新予定日までに空室確認が行えない場合には、この物件情報は自動的に削除されます。
LANAI HILLS26 ***号室の賃貸物件部屋概要
家賃 |
19.8万円
初期費用を |
|---|---|
共益費 |
17,000円
入居可能時期 |
敷金/礼金 |
2ヶ月 / 1ヶ月 |
保証金/ |
- / - |
最寄駅 |
|
所在地 |
東京都世田谷区用賀 |
部屋番号 |
***号室 |
間取り |
2LDK(洋5.3・洋5.3・LDK13.7) |
専有面積 |
58.08㎡ |
築年数 |
1998年12月(築28年) |
階数 |
1階部分(地上5階建) |
方位・位置 |
東 / その他 |
物件種別 |
賃貸マンション |
構造 |
RC |
駐車場 |
- |
小学校学区 |
京西小学校 |
中学校学区 |
用賀中学校 |
他の空き部屋 |
ー |
- 学区データについて
- ※学区データは必ずしも正確とは限りません。詳細に関しては最寄店舗または各自治体の教育委員会に必ずご確認ください。
LANAI HILLS26 ***号室の特徴
契約条件
この物件は、2人入居もご契約できます。
セキュリティ
この物件の建物には、オートロックや防犯カメラや宅配ボックスが設置されており、来客時には居室内のテレビモニターにて訪問者の顔を確認することができます。
室内設備
システムキッチンには、ガスコンロが備え付けられています。 お風呂とトイレは別です。お風呂には、追い焚き機能が備わっています。 女性に嬉しい設備の独立した洗面化粧台があります。 洗濯に便利な設備として、室内洗濯機置場があります。浴室乾燥機も設置されているので、梅雨時の生乾き臭も比較的防ぐことができます。
居室状況
お部屋の床は、フローリングとなっており、エアコンが設置されています。 照明器具が備え付けられており、入居後すぐ生活が始められます。 収納スペースとして、基本的な居室にクローゼットを設置、玄関にはシューズボックスがあります。
建物設備共用部分
居室外の専有スペースとして、洗濯物を干すなどの用途として利用できるバルコニーがあります。 建物の共用スペースに、日々の出入に便利なエレベーターや、いざという時の防犯カメラや、急な外出や不在がちのご家庭の荷物受け取りに便利な宅配ボックスが設置されています。 駐輪場が利用できます。
周辺施設
この物件の学区は、京西小学校区・用賀中学校区です。
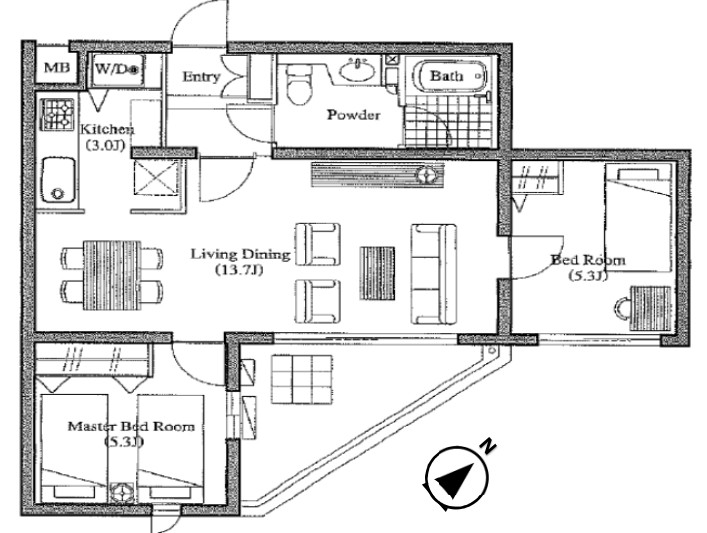
LANAI HILLS26 ***号室の間取り
間取り:2LDK
間取詳細:2LDK(洋5.3・洋5.3・LDK13.7)
専有面積:58.08㎡
方位:東
部屋位置:その他
LANAI HILLS26 ***号室の設備
キッチン
システムキッチン
ガスコンロ
バス・トイレ
バス・トイレ別
追い焚き
浴室乾燥機
独立洗面台
玄関
TVモニタ付インターホン
オートロック
宅配ボックス
収納
クローゼット
シューズボックス
バルコニー
バルコニー
ルーフバルコニー
室内設備
エアコン
フローリング
室内洗濯機置場
照明器具付
位置・立地
1階
インフラ
CATV
BS
都市ガス
建物設備
エレベーター
防犯カメラ
駐輪場
入居条件
2人入居可
オンライン相談可
オンライン内見可
即入居可
ライフステージ
一人暮らしに人気の設備
カップルに人気の設備
家族に人気の設備
夫婦に人気の設備
三世代で人気の設備
こだわり
外で子どもと遊びたい
雨の日でも洗濯したい
洋室で暮らしたい
趣味
ガーデニングが好き
LANAI HILLS26 ***号室の賃貸契約情報
毎月支払う |
家賃19.8万円/月共益費17,000円/月 |
|---|---|
初期費用 |
敷金2ヶ月 (39.6万円)礼金1ヶ月 (19.8万円)保証金-敷引き償却金- |
更新料 |
198,000円 |
鍵交換費用 |
- |
室内清掃費用 |
- |
駐車場料金 |
- |
損保・ |
借家賠付きの火災保険にご加入いただきます。 |
保証会社 |
加入要 保証会社利用料:初回保証料:107,500円 1年毎1万円 |
契約期間 |
2年 |
入居可能日 |
即入居可 |
フリーレント期間 |
- |
取引形態 |
一般媒介 |
備考 |
- |
LANAI HILLS26 ***号室の建物情報
建物名称 |
LANAI HILLS26 |
|---|---|
最寄駅 |
|
所在地 |
東京都世田谷区用賀 |
階層 |
1階部分(地上5階建) |
構造 |
RC |
築年数 |
1998年12月(築28年) |
駐車場 |
- |
小学校学区 |
京西小学校 |
中学校学区 |
用賀中学校 |
- 学区データについて
- ※学区データは必ずしも正確とは限りません。詳細に関しては最寄店舗または各自治体の教育委員会に必ずご確認ください。
無料この物件に問い合わせ
- LANAI HILLS26 ***号室

-
19.8万円
(共益費
17,000円)
- 敷
- 2ヶ月
- 礼
- 1ヶ月
- 保
- -
- 償
- -
LANAI HILLS26 ***号室の物件のお問い合わせ先・取り扱い店舗
ハウスコム 桜新町店
- アクセス
-
東急田園都市線「桜新町駅」徒歩3分
- 住所
- 〒154-0015 東京都世田谷区桜新町1丁目17−13 GBJ桜新町ビル3階
- 営業時間
- 10:00~18:00
- 定休日
- 水曜日
- 営業エリア
- 世田谷区、目黒区、神奈川県
- 取引態様
- 賃貸仲介業













