アデッソ本蓮沼 ***号室(2階/1K)の賃貸物件(賃貸マンション)
東京都板橋区にあるアデッソ本蓮沼 ***号室はオートロック、クローゼット、2階以上、CATV、エレベーターなどが特徴です。最寄り駅の都営三田線本蓮沼駅から徒歩5分です。アデッソ本蓮沼 ***号室の詳細はハウスコム 赤羽店までお気軽にお問い合わせください!
情報更新日:
次回更新予定日:
※次回更新予定日について:お店側では順次空室確認を行っていますが、次回更新予定日までに空室確認が行えない場合には、この物件情報は自動的に削除されます。
アデッソ本蓮沼 ***号室の賃貸物件部屋概要
家賃 |
7.1万円
初期費用を |
|---|---|
共益費 |
8,000円
入居可能時期 |
敷金/礼金 |
- / 1ヶ月 |
保証金/ |
- / - |
最寄駅 |
|
所在地 |
東京都板橋区蓮沼町 |
部屋番号 |
***号室 |
間取り |
1K(洋6.5) |
専有面積 |
21.46㎡ |
築年数 |
2006年8月(築20年) |
階数 |
2階部分(地上6階建) |
方位・位置 |
ー / その他 |
物件種別 |
賃貸マンション |
構造 |
RC |
駐車場 |
- |
小学校学区 |
志村第三小学校 |
中学校学区 |
志村第二中学校 |
他の空き部屋 |
ー |
- 学区データについて
- ※学区データは必ずしも正確とは限りません。詳細に関しては最寄店舗または各自治体の教育委員会に必ずご確認ください。
アデッソ本蓮沼 ***号室の特徴
契約条件
この物件は、2人入居もご契約できます。 ペットの飼育もご相談ください。 また、ご契約時に保証人は不要です。 敷金が無料なため、初期費用が比較的安くなる傾向にあります。
セキュリティ
この物件の建物には、オートロックや宅配ボックスが設置されており、来客時には居室内のテレビモニターにて訪問者の顔を確認することができます。
室内設備
システムキッチンには、2つ以上のガスコンロが備え付けられています。 トイレは、温水洗浄便座機能付きになります。 洗濯に便利な設備として、室内洗濯機置場があります。浴室乾燥機も設置されているので、梅雨時の生乾き臭も比較的防ぐことができます。
居室状況
お部屋の床は、フローリングとなっており、エアコンが設置されています。 収納スペースとして、基本的な居室にクローゼットを設置、玄関にはシューズボックスがあります。
建物設備共用部分
居室外の専有スペースとして、洗濯物を干すなどの用途として利用できるバルコニーがあります。 建物の共用スペースに、日々の出入に便利なエレベーターや、急な外出や不在がちのご家庭の荷物受け取りに便利な宅配ボックスが設置されています。 駐輪場、バイク置き場が利用できます。
周辺施設
この物件の学区は、志村第三小学校区・志村第二中学校区です。
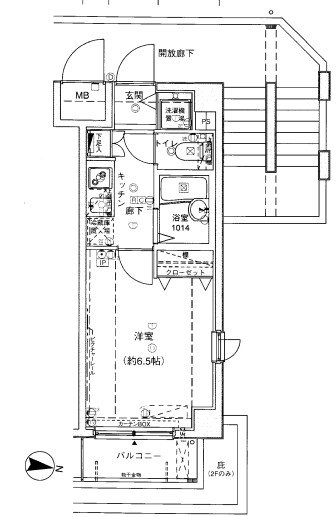
アデッソ本蓮沼 ***号室の間取り
間取り:1K
間取詳細:1K(洋6.5)
専有面積:21.46㎡
方位:ー
部屋位置:その他
アデッソ本蓮沼 ***号室の設備
キッチン
システムキッチン
ガスコンロ
ガスコンロ二口以上
バス・トイレ
バス・トイレ別
浴室乾燥機
温水洗浄便座
玄関
TVモニタ付インターホン
オートロック
宅配ボックス
収納
クローゼット
シューズボックス
バルコニー
バルコニー
ルーフバルコニー
室内設備
エアコン
フローリング
室内洗濯機置場
位置・立地
2階以上
インフラ
インターネット可
CATV
BS
CS
都市ガス
建物設備
エレベーター
駐輪場
バイク置き場
入居条件
ペット可・相談
2人入居可
オンライン相談可
オンライン内見可
保証人不要
ライフステージ
一人暮らしに人気の設備
カップルに人気の設備
家族に人気の設備
夫婦に人気の設備
三世代で人気の設備
こだわり
外で子どもと遊びたい
雨の日でも洗濯したい
洋室で暮らしたい
趣味
ガーデニングが好き
アデッソ本蓮沼 ***号室の賃貸契約情報
毎月支払う |
家賃7.1万円/月共益費8,000円/月 |
|---|---|
初期費用 |
敷金-礼金1ヶ月 (7.1万円)保証金-敷引き償却金- |
更新料 |
106,500円 |
鍵交換費用 |
33,000円 |
室内清掃費用 |
- |
室内抗菌代 |
16,500円 |
駐車場料金 |
- |
損保・ |
借家賠付きの火災保険にご加入いただきます。 |
保証会社 |
加入要 保証会社利用料:初回契約時:50%、[リロ:月1,000円][JRAG:1万円/年(月330円)] [カーサ:月1%][ジャックス:月額保証料1%]※外国籍の方は敷金1ヶ月追加となります |
契約期間 |
2年 |
入居可能日 |
2026年01月下旬 |
フリーレント期間 |
- |
取引形態 |
一般媒介 |
備考 |
- |
アデッソ本蓮沼 ***号室の建物情報
建物名称 |
アデッソ本蓮沼 |
|---|---|
最寄駅 |
|
所在地 |
東京都板橋区蓮沼町 |
階層 |
2階部分(地上6階建) |
構造 |
RC |
築年数 |
2006年8月(築20年) |
駐車場 |
- |
小学校学区 |
志村第三小学校 |
中学校学区 |
志村第二中学校 |
- 学区データについて
- ※学区データは必ずしも正確とは限りません。詳細に関しては最寄店舗または各自治体の教育委員会に必ずご確認ください。
無料この物件に問い合わせ
- アデッソ本蓮沼 ***号室

-
7.1万円
(共益費
8,000円)
- 敷
- -
- 礼
- 1ヶ月
- 保
- -
- 償
- -
アデッソ本蓮沼 ***号室の物件のお問い合わせ先・取り扱い店舗
ハウスコム 赤羽店
- アクセス
-
京浜東北・根岸線「赤羽駅」南口徒歩1分
- 住所
- 〒115-0044 東京都北区赤羽南1丁目7−3 厚生堂ビル1階
- 営業時間
- 10:00~18:00
- 定休日
- なし(12/25~1/3は休業)
- 営業エリア
- 北区,板橋区,足立区,川口市,戸田市
- 取引態様
- 賃貸仲介業




























