ソルナクレイシア下北沢 301号室(1階/1R)の賃貸物件(賃貸アパート)
東京都世田谷区にあるソルナクレイシア下北沢 301号室はIHコンロ、独立洗面台、クローゼット、エアコン、1階などが特徴です。最寄り駅の京王井の頭線下北沢駅から徒歩6分です。ソルナクレイシア下北沢 301号室の詳細はハウスコム 明大前店までお気軽にお問い合わせください!
情報更新日:
次回更新予定日:
※次回更新予定日について:お店側では順次空室確認を行っていますが、次回更新予定日までに空室確認が行えない場合には、この物件情報は自動的に削除されます。
ソルナクレイシア下北沢 301号室の賃貸物件部屋概要
家賃 |
12.5万円
初期費用を |
|---|---|
共益費 |
10,000円
入居可能時期 |
敷金/礼金 |
- / 2ヶ月 |
保証金/ |
- / - |
最寄駅 |
|
所在地 |
東京都世田谷区北沢 |
部屋番号 |
301号室 |
間取り |
1R |
専有面積 |
33.95㎡ |
築年数 |
2026年1月 |
階数 |
1階部分(地上3階建) |
方位・位置 |
北東 / その他 |
物件種別 |
賃貸アパート |
構造 |
鉄骨造 |
駐車場 |
無 |
小学校学区 |
ー |
中学校学区 |
ー |
他の空き部屋 |
102号室 103号室 201号室 202号室 203号室 |
- 学区データについて
- ※学区データは必ずしも正確とは限りません。詳細に関しては最寄店舗または各自治体の教育委員会に必ずご確認ください。
ソルナクレイシア下北沢 301号室の特徴
契約条件
敷金が無料なため、初期費用が比較的安くなる傾向にあります。
セキュリティ
来客時には居室内のテレビモニターにて訪問者の顔を確認することができます。
室内設備
システムキッチンには、IHコンロが備え付けられています。 トイレは、温水洗浄便座機能付きになります。 女性に嬉しい設備の独立した洗面化粧台があります。 洗濯に便利な設備として、浴室乾燥機も設置されているので、梅雨時の生乾き臭も比較的防ぐことができます。
居室状況
エアコンが設置されています。 インターネットも無料で入居後すぐ生活が始められます。 収納スペースとして、基本的な居室にクローゼットを設置、玄関にはシューズボックスがあります。
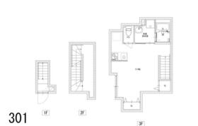
ソルナクレイシア下北沢 301号室の間取り
間取り:1R
間取詳細:1R
専有面積:33.95㎡
方位:北東
部屋位置:その他
ソルナクレイシア下北沢 301号室の設備
キッチン
システムキッチン
IHコンロ
バス・トイレ
バス・トイレ別
浴室乾燥機
温水洗浄便座
独立洗面台
玄関
TVモニタ付インターホン
収納
クローゼット
シューズボックス
室内設備
エアコン
位置・立地
1階
インフラ
BS
都市ガス
建物設備
メゾネット
入居条件
即入居可
ライフステージ
一人暮らしに人気の設備
カップルに人気の設備
家族に人気の設備
夫婦に人気の設備
三世代で人気の設備
こだわり
雨の日でも洗濯したい
お得な条件
インターネット無料
ソルナクレイシア下北沢 301号室の賃貸契約情報
毎月支払う |
家賃12.5万円/月共益費10,000円/月 |
|---|---|
初期費用 |
敷金-礼金2ヶ月 (25万円)保証金-敷引き償却金- |
更新料 |
125,000円 |
鍵交換費用 |
- |
室内清掃費用 |
- |
退去時クリーニング費用 |
66,000円 |
駐車場料金 |
無 |
損保・ |
借家賠付きの火災保険にご加入いただきます。 |
保証会社 |
加入要 保証会社利用料:全保連 初回保証料:総賃料の60%~ 年間保証料:13,000円 口座振替手数料:月額330円 |
契約期間 |
2年 |
入居可能日 |
即入居可 |
フリーレント期間 |
- |
取引形態 |
一般媒介 |
備考 |
- |
ソルナクレイシア下北沢 301号室の建物情報
建物名称 |
ソルナクレイシア下北沢 |
|---|---|
最寄駅 |
|
所在地 |
東京都世田谷区北沢 |
階層 |
1階部分(地上3階建) |
構造 |
鉄骨造 |
築年数 |
2026年1月 |
駐車場 |
無 |
小学校学区 |
ー |
中学校学区 |
ー |
- 学区データについて
- ※学区データは必ずしも正確とは限りません。詳細に関しては最寄店舗または各自治体の教育委員会に必ずご確認ください。
無料この物件に問い合わせ
- ソルナクレイシア下北沢 301号室

-
12.5万円
(共益費
10,000円)
- 敷
- -
- 礼
- 2ヶ月
- 保
- -
- 償
- -
ソルナクレイシア下北沢 301号室の物件のお問い合わせ先・取り扱い店舗
ハウスコム 明大前店
- アクセス
-
京王線「明大前駅」中央口徒歩1分
京王井の頭線「明大前駅」中央口徒歩1分
- 住所
- 〒156-0043 東京都世田谷区松原2丁目44−1 グランシーン明大前 1階
- 営業時間
- 10:00~18:00
- 定休日
- なし
- 営業エリア
- 世田谷区・杉並区・渋谷区・中野区・新宿区・三鷹市・調布市
- 取引態様
- 賃貸仲介業





















