リグランド千歳烏山 501号室(5階/1DK)の賃貸物件(賃貸マンション)
東京都世田谷区にあるリグランド千歳烏山 501号室は独立洗面台、TVモニタ付インターホン、バルコニー、CS、エレベーターなどが特徴です。最寄り駅の京王線千歳烏山駅から徒歩3分です。リグランド千歳烏山 501号室の詳細はハウスコム 千歳烏山店までお気軽にお問い合わせください!
情報更新日:
次回更新予定日:
※次回更新予定日について:お店側では順次空室確認を行っていますが、次回更新予定日までに空室確認が行えない場合には、この物件情報は自動的に削除されます。
リグランド千歳烏山 501号室の賃貸物件部屋概要
家賃 |
13.1万円
初期費用を |
|---|---|
共益費 |
10,000円
入居可能時期 |
敷金/礼金 |
1ヶ月 / 1ヶ月 |
保証金/ |
- / - |
最寄駅 |
|
所在地 |
東京都世田谷区南烏山 |
部屋番号 |
501号室 |
間取り |
1DK(洋6.3・DK7.4) |
専有面積 |
35.42㎡ |
築年数 |
1991年4月(築35年) |
階数 |
5階部分(地上6階建) |
方位・位置 |
南 / 角部屋 |
物件種別 |
賃貸マンション |
構造 |
RC |
駐車場 |
- |
小学校学区 |
烏山北小学校 |
中学校学区 |
烏山中学校 |
他の空き部屋 |
ー |
- 学区データについて
- ※学区データは必ずしも正確とは限りません。詳細に関しては最寄店舗または各自治体の教育委員会に必ずご確認ください。
リグランド千歳烏山 501号室の特徴
-
一人暮らしに人気の設備

-
カップルに人気の設備

-
家族に人気の設備

-
夫婦に人気の設備

-
三世代で人気の設備

-
セキュリティ対策重視

-
外で子どもと遊びたい

-
雨の日でも洗濯したい

-
洋室で暮らしたい

-
オークション・通販が好き

-
ガーデニングが好き

セキュリティ
この物件の建物には、オートロックや防犯カメラや宅配ボックスが設置されており、来客時には居室内のテレビモニターにて訪問者の顔を確認することができます。
室内設備
システムキッチンには、ガスコンロが備え付けられています。 トイレは、温水洗浄便座機能付きになります。 女性に嬉しい設備の独立した洗面化粧台があります。 洗濯に便利な設備として、室内洗濯機置場があります。浴室乾燥機も設置されているので、梅雨時の生乾き臭も比較的防ぐことができます。
居室状況
お部屋の床は、フローリングとなっており、エアコンが設置されています。 インターネットも無料で入居後すぐ生活が始められます。 収納スペースとして、基本的な居室にクローゼットを設置、玄関にはシューズボックスがあります。
建物設備共用部分
居室外の専有スペースとして、洗濯物を干すなどの用途として利用できるバルコニーがあります。 建物の共用スペースに、日々の出入に便利なエレベーターや、いざという時の防犯カメラや、急な外出や不在がちのご家庭の荷物受け取りに便利な宅配ボックスが設置されています。 駐輪場が利用できます。
周辺施設
この物件の学区は、烏山北小学校区・烏山中学校区です。
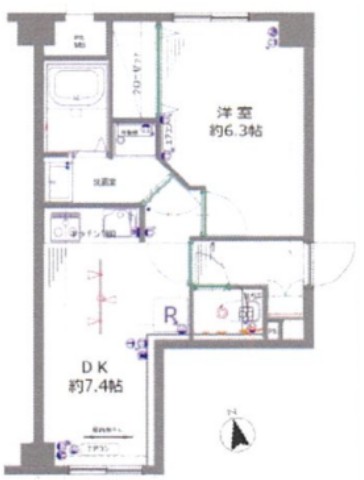
リグランド千歳烏山 501号室の間取り
間取り:1DK
間取詳細:1DK(洋6.3・DK7.4)
専有面積:35.42㎡
方位:南
部屋位置:角部屋
リグランド千歳烏山 501号室の設備
キッチン
システムキッチン
ガスコンロ
バス・トイレ
バス・トイレ別
浴室乾燥機
温水洗浄便座
独立洗面台
玄関
TVモニタ付インターホン
オートロック
宅配ボックス
収納
クローゼット
シューズボックス
バルコニー
バルコニー
ルーフバルコニー
室内設備
エアコン
フローリング
室内洗濯機置場
位置・立地
2階以上
角部屋
南向き
インフラ
BS
CS
都市ガス
建物設備
エレベーター
防犯カメラ
駐輪場
入居条件
オンライン相談可
オンライン内見可
ライフステージ
一人暮らしに人気の設備
カップルに人気の設備
家族に人気の設備
夫婦に人気の設備
三世代で人気の設備
こだわり
セキュリティ対策重視
外で子どもと遊びたい
雨の日でも洗濯したい
洋室で暮らしたい
趣味
オークション・通販が好き
ガーデニングが好き
お得な条件
インターネット無料
リグランド千歳烏山 501号室の賃貸契約情報
毎月支払う |
家賃13.1万円/月共益費10,000円/月 |
|---|---|
初期費用 |
敷金1ヶ月 (13.1万円)礼金1ヶ月 (13.1万円)保証金-敷引き償却金- |
更新料 |
131,000円 |
鍵交換費用 |
44,000円 |
室内清掃費用 |
- |
24時間駆け付けサービス |
19,800円 |
駐車場料金 |
- |
損保・ |
借家賠付きの火災保険にご加入いただきます。 |
保証会社 |
加入要 保証会社:エポスカード 保証会社利用料:初回保証料:賃料+管理費の70%,月1% |
契約期間 |
2年 |
入居可能日 |
2026年01月下旬 |
フリーレント期間 |
- |
取引形態 |
一般媒介 |
備考 |
退去時ルームクリーニング費用71500円(税込)・エアコンクリーニング 16500円(税込)/台は借主負担となります。 鍵交換代 44000円 初期:24時間駆け付けサービス 19800円 火災保険要加入 駐輪場:有料 |
リグランド千歳烏山 501号室の建物情報
建物名称 |
リグランド千歳烏山 |
|---|---|
最寄駅 |
|
所在地 |
東京都世田谷区南烏山 |
階層 |
5階部分(地上6階建) |
構造 |
RC |
築年数 |
1991年4月(築35年) |
駐車場 |
- |
小学校学区 |
烏山北小学校 |
中学校学区 |
烏山中学校 |
- 学区データについて
- ※学区データは必ずしも正確とは限りません。詳細に関しては最寄店舗または各自治体の教育委員会に必ずご確認ください。
無料この物件に問い合わせ
- リグランド千歳烏山 501号室

-
13.1万円
(共益費
10,000円)
- 敷
- 1ヶ月
- 礼
- 1ヶ月
- 保
- -
- 償
- -
リグランド千歳烏山 501号室の物件のお問い合わせ先・取り扱い店舗
ハウスコム 千歳烏山店
- アクセス
-
京王線「千歳烏山駅」北口徒歩1分
- 住所
- 〒157-0062 東京都世田谷区南烏山6丁目2−1 駅前ビル 1F
- 営業時間
- 10:00~18:00
- 定休日
- なし
- 営業エリア
- 世田谷区、杉並区、調布市、三鷹市、狛江市
- 取引態様
- 賃貸仲介業



























