スプリングフィールド 202号室(2階/1LDK)の賃貸物件(賃貸アパート)
愛知県岡崎市にあるスプリングフィールド 202号室はTVモニタ付インターホン、シューズボックス、CATV、平面駐車場、駐輪場などが特徴です。最寄り駅の愛知環状鉄道大門駅から徒歩18分です。スプリングフィールド 202号室の詳細はハウスコム 岡崎店までお気軽にお問い合わせください!
情報更新日:
次回更新予定日:
※次回更新予定日について:お店側では順次空室確認を行っていますが、次回更新予定日までに空室確認が行えない場合には、この物件情報は自動的に削除されます。
スプリングフィールド 202号室の賃貸物件部屋概要
家賃 |
6.5万円
初期費用を |
|---|---|
共益費 |
5,000円
入居可能時期 |
敷金/礼金 |
- / 65,000円 |
保証金/ |
- / - |
最寄駅 |
|
所在地 |
愛知県岡崎市上里 |
部屋番号 |
202号室 |
間取り |
1LDK(洋6・LDK13.5) |
専有面積 |
45.42㎡ |
築年数 |
2004年4月(築22年) |
階数 |
2階部分(地上2階建) |
方位・位置 |
南 / 角部屋 |
物件種別 |
賃貸アパート |
構造 |
鉄骨造 |
駐車場 |
4,400円 |
小学校学区 |
大門小学校 |
中学校学区 |
北中学校 |
他の空き部屋 |
ー |
- 学区データについて
- ※学区データは必ずしも正確とは限りません。詳細に関しては最寄店舗または各自治体の教育委員会に必ずご確認ください。
スプリングフィールド 202号室の特徴
-
一人暮らしに人気の設備

-
カップルに人気の設備

-
家族に人気の設備

-
夫婦に人気の設備

-
三世代で人気の設備

-
日当たり重視

-
外で子どもと遊びたい

-
急な来客でも駐車したい

-
雨の日でも洗濯したい

-
洋室で暮らしたい

-
ガーデニングが好き

契約条件
この物件は、2人入居もご契約できます。 敷金が無料なため、初期費用が比較的安くなる傾向にあります。
セキュリティ
来客時には居室内のテレビモニターにて訪問者の顔を確認することができます。
室内設備
お風呂とトイレは別です。お風呂には、追い焚き機能が備わっています。 女性に嬉しい設備のシャワーの付いている洗面化粧台があります。 洗濯に便利な設備として、室内洗濯機置場があります。
居室状況
お部屋の床は、フローリングとなっており、エアコンが設置されています。 収納スペースとして、玄関にはシューズボックスがあります。
建物設備共用部分
居室外の専有スペースとして、洗濯物を干すなどの用途として利用できるバルコニーがあります。 平面駐車場があり2台以上の車で利用することができます。駐輪場が利用できます。
周辺施設
この物件の学区は、大門小学校区・北中学校区です。
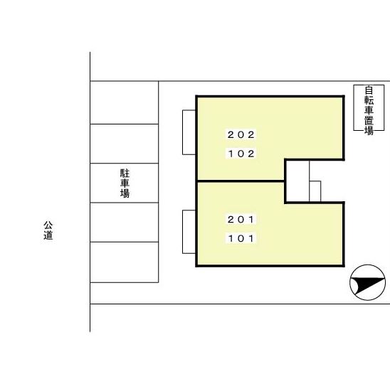
スプリングフィールド 202号室の間取り
間取り:1LDK
間取詳細:1LDK(洋6・LDK13.5)
専有面積:45.42㎡
方位:南
部屋位置:角部屋
スプリングフィールド 202号室の設備
バス・トイレ
バス・トイレ別
追い焚き
独立洗面台
シャワー付洗面化粧台
玄関
TVモニタ付インターホン
収納
シューズボックス
バルコニー
バルコニー
ルーフバルコニー
室内設備
エアコン
フローリング
室内洗濯機置場
位置・立地
2階以上
最上階
角部屋
南向き
インフラ
CATV
プロパンガス
建物設備
駐車場
平面駐車場
駐車2台以上可
駐輪場
入居条件
2人入居可
オンライン相談可
オンライン内見可
ライフステージ
一人暮らしに人気の設備
カップルに人気の設備
家族に人気の設備
夫婦に人気の設備
三世代で人気の設備
こだわり
日当たり重視
外で子どもと遊びたい
急な来客でも駐車したい
雨の日でも洗濯したい
洋室で暮らしたい
趣味
ガーデニングが好き
スプリングフィールド 202号室の賃貸契約情報
毎月支払う |
家賃6.5万円/月共益費5,000円/月 |
|---|---|
初期費用 |
敷金-礼金65,000円保証金-敷引き償却金- |
更新料 |
65,000円 |
鍵交換費用 |
- |
室内清掃費用 |
60,500円 |
ルームクリーニング料金 |
38,500円 |
駐車場料金 |
4,400円 |
損保・ |
借家賠付きの火災保険にご加入いただきます。 |
保証会社 |
加入要 保証会社利用料:総賃料3.4%+800円 |
契約期間 |
- |
入居可能日 |
相談 |
フリーレント期間 |
- |
取引形態 |
一般媒介 |
備考 |
- |
スプリングフィールド 202号室の建物情報
建物名称 |
スプリングフィールド |
|---|---|
最寄駅 |
|
所在地 |
愛知県岡崎市上里 |
階層 |
2階部分(地上2階建) |
構造 |
鉄骨造 |
築年数 |
2004年4月(築22年) |
駐車場 |
4,400円 |
小学校学区 |
大門小学校 |
中学校学区 |
北中学校 |
- 学区データについて
- ※学区データは必ずしも正確とは限りません。詳細に関しては最寄店舗または各自治体の教育委員会に必ずご確認ください。
無料この物件に問い合わせ
- スプリングフィールド 202号室

-
6.5万円
(共益費
5,000円)
- 敷
- -
- 礼
- 65,000円
- 保
- -
- 償
- -
スプリングフィールド 202号室の物件のお問い合わせ先・取り扱い店舗
ハウスコム 岡崎店
- アクセス
-
名鉄名古屋本線「東岡崎駅」北口徒歩8分
- 住所
- 〒444-0044 愛知県岡崎市康生通南2−32 Sビル 1階
- 営業時間
- 10:00~18:00
- 定休日
- なし
- 営業エリア
- 岡崎市、幸田町、豊川市、蒲郡市、安城市、西尾市
- 取引態様
- 賃貸仲介業





























