トーシンフェニックス上野毛 406号室(4階/1K)の賃貸物件(賃貸マンション)
東京都世田谷区にあるトーシンフェニックス上野毛 406号室はオートロック、フローリング、デザイナーズ、BS、都市ガスなどが特徴です。最寄り駅の東急大井町線上野毛駅から徒歩6分です。トーシンフェニックス上野毛 406号室の詳細はハウスコム 溝の口店までお気軽にお問い合わせください!
情報更新日:
次回更新予定日:
※次回更新予定日について:お店側では順次空室確認を行っていますが、次回更新予定日までに空室確認が行えない場合には、この物件情報は自動的に削除されます。
トーシンフェニックス上野毛 406号室の賃貸物件部屋概要
家賃 |
7.65万円
初期費用を |
|---|---|
共益費 |
8,000円
入居可能時期 |
敷金/礼金 |
1ヶ月 / 1ヶ月 |
保証金/ |
- / - |
最寄駅 |
|
所在地 |
東京都世田谷区上野毛 |
部屋番号 |
406号室 |
間取り |
1K |
専有面積 |
22.14㎡ |
築年数 |
2006年9月(築20年) |
階数 |
4階部分(地上6階建) |
方位・位置 |
南西 / その他 |
物件種別 |
賃貸マンション |
構造 |
RC |
駐車場 |
- |
小学校学区 |
玉川小学校 |
中学校学区 |
玉川中学校 |
他の空き部屋 |
ー |
- 学区データについて
- ※学区データは必ずしも正確とは限りません。詳細に関しては最寄店舗または各自治体の教育委員会に必ずご確認ください。
トーシンフェニックス上野毛 406号室の特徴
契約条件
この物件は、入居者が学生限定もしくは歓迎でご契約できます。 また、ご契約時に保証人は不要です。
セキュリティ
この物件の建物には、オートロックや宅配ボックスが設置されております。
室内設備
システムキッチンには、2つ以上のガスコンロが備え付けられています。 洗濯に便利な設備として、室内洗濯機置場があります。浴室乾燥機も設置されているので、梅雨時の生乾き臭も比較的防ぐことができます。
居室状況
お部屋の床は、フローリングとなっており、エアコンが設置されています。 収納スペースとして、基本的な居室にクローゼットを設置、玄関にはシューズボックスがあります。
建物設備共用部分
居室外の専有スペースとして、洗濯物を干すなどの用途として利用できるバルコニーがあります。 建物の共用スペースに、日々の出入に便利なエレベーターや、急な外出や不在がちのご家庭の荷物受け取りに便利な宅配ボックスが設置されています。
周辺施設
この物件の学区は、玉川小学校区・玉川中学校区です。
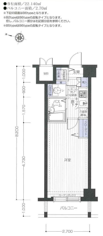
トーシンフェニックス上野毛 406号室の間取り
間取り:1K
間取詳細:1K
専有面積:22.14㎡
方位:南西
部屋位置:その他
トーシンフェニックス上野毛 406号室の設備
キッチン
システムキッチン
ガスコンロ
ガスコンロ二口以上
バス・トイレ
バス・トイレ別
浴室乾燥機
玄関
オートロック
宅配ボックス
収納
クローゼット
シューズボックス
バルコニー
バルコニー
ルーフバルコニー
室内設備
エアコン
フローリング
室内洗濯機置場
デザイナーズ
位置・立地
2階以上
インフラ
インターネット可
BS
CS
都市ガス
建物設備
エレベーター
分譲賃貸
入居条件
学生限定・歓迎
保証人不要
ライフステージ
一人暮らしに人気の設備
カップルに人気の設備
家族に人気の設備
夫婦に人気の設備
三世代で人気の設備
こだわり
外で子どもと遊びたい
雨の日でも洗濯したい
洋室で暮らしたい
趣味
ガーデニングが好き
トーシンフェニックス上野毛 406号室の賃貸契約情報
毎月支払う |
家賃7.65万円/月共益費8,000円/月 |
|---|---|
初期費用 |
敷金1ヶ月 (7.65万円)礼金1ヶ月 (7.65万円)保証金-敷引き償却金- |
更新料 |
76,500円 |
鍵交換費用 |
33,000円 |
室内清掃費用 |
52,800円 |
シーラプレミアムクラブ |
24,200円 |
駐車場料金 |
- |
損保・ |
借家賠付きの火災保険にご加入いただきます。 |
保証会社 |
加入要 保証会社:エルズサポート 保証会社利用料:初回40%、以降10,000円/年(総賃料15万円以上:14,000円/年)~ 外国籍の方:GTNを利用。初回保証料100%(最低保証料40,000円)、月額保証料1,000円 |
契約期間 |
2年 |
入居可能日 |
2026年03月下旬 |
フリーレント期間 |
- |
取引形態 |
一般媒介 |
備考 |
- |
トーシンフェニックス上野毛 406号室の建物情報
建物名称 |
トーシンフェニックス上野毛 |
|---|---|
最寄駅 |
|
所在地 |
東京都世田谷区上野毛 |
階層 |
4階部分(地上6階建) |
構造 |
RC |
築年数 |
2006年9月(築20年) |
駐車場 |
- |
小学校学区 |
玉川小学校 |
中学校学区 |
玉川中学校 |
- 学区データについて
- ※学区データは必ずしも正確とは限りません。詳細に関しては最寄店舗または各自治体の教育委員会に必ずご確認ください。
無料この物件に問い合わせ
- トーシンフェニックス上野毛 406号室

-
7.65万円
(共益費
8,000円)
- 敷
- 1ヶ月
- 礼
- 1ヶ月
- 保
- -
- 償
- -
トーシンフェニックス上野毛 406号室の物件のお問い合わせ先・取り扱い店舗
ハウスコム 溝の口店
- アクセス
-
東急田園都市線「溝の口駅」北口徒歩2分
- 住所
- 〒213-0001 神奈川県川崎市高津区溝口1丁目8−1 溝ノ口丸広ビル1階
- 営業時間
- 10:00~18:00
- 定休日
- なし
- 営業エリア
- 川崎市中原区,川崎市多摩区,川崎市宮前区,川崎市高津区,稲城市
- 取引態様
- 賃貸仲介業














