メインステージ若松河田 1301号室(13階/1LDK)の賃貸物件(賃貸マンション)
東京都新宿区にあるメインステージ若松河田 1301号室はガスコンロ、独立洗面台、シューズボックス、CS、防犯カメラなどが特徴です。最寄り駅の都営大江戸線若松河田駅から徒歩4分です。メインステージ若松河田 1301号室の詳細はハウスコム 明大前店までお気軽にお問い合わせください!
情報更新日:
次回更新予定日:
※次回更新予定日について:お店側では順次空室確認を行っていますが、次回更新予定日までに空室確認が行えない場合には、この物件情報は自動的に削除されます。
メインステージ若松河田 1301号室の賃貸物件部屋概要
家賃 |
21万円
初期費用を |
|---|---|
共益費 |
20,000円
入居可能時期 |
敷金/礼金 |
- / 1ヶ月 |
保証金/ |
- / - |
最寄駅 |
|
所在地 |
東京都新宿区若松町 |
部屋番号 |
1301号室 |
間取り |
1LDK(洋5.5・LD8.5・K2.8) |
専有面積 |
41.11㎡ |
築年数 |
2017年4月(築9年) |
階数 |
13階部分(地上13階建) |
方位・位置 |
南 / 角部屋 |
物件種別 |
賃貸マンション |
構造 |
RC |
駐車場 |
無 |
小学校学区 |
早稲田小学校 |
中学校学区 |
新宿中学校 |
他の空き部屋 |
701号室 903号室 |
- 学区データについて
- ※学区データは必ずしも正確とは限りません。詳細に関しては最寄店舗または各自治体の教育委員会に必ずご確認ください。
メインステージ若松河田 1301号室の特徴
-
一人暮らしに人気の設備

-
カップルに人気の設備

-
家族に人気の設備

-
夫婦に人気の設備

-
三世代で人気の設備

-
日当たり重視

-
セキュリティ対策重視

-
タイパ重視

-
外で子どもと遊びたい

-
雨の日でも洗濯したい

-
オークション・通販が好き

-
ガーデニングが好き

契約条件
この物件は、2人入居やルームシェアもご契約できます。 ペットの飼育もご相談ください。 敷金が無料なため、初期費用が比較的安くなる傾向にあります。
セキュリティ
この物件の建物には、オートロックや防犯カメラや宅配ボックスが設置されており、来客時には居室内のテレビモニターにて訪問者の顔を確認することができます。
室内設備
システムキッチンには、ガスコンロが備え付けられています。 トイレは、温水洗浄便座機能付きになります。 女性に嬉しい設備の独立した洗面化粧台があります。 洗濯に便利な設備として、浴室乾燥機も設置されているので、梅雨時の生乾き臭も比較的防ぐことができます。
居室状況
エアコンが設置されています。 照明器具が備え付けられており、インターネットも無料で入居後すぐ生活が始められます。 収納スペースとして、玄関にはシューズボックスがあります。
建物設備共用部分
居室外の専有スペースとして、洗濯物を干すなどの用途として利用できるバルコニーがあります。 建物の共用スペースに、日々の出入に便利なエレベーターや、いざという時の防犯カメラや、急な外出や不在がちのご家庭の荷物受け取りに便利な宅配ボックスや、居室内を常に清潔に保てる24時間利用可能なゴミ捨て置き場が設置されています。 駐輪場、バイク置き場が利用できます。
周辺施設
この物件の学区は、早稲田小学校区・新宿中学校区です。
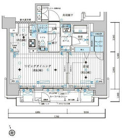
メインステージ若松河田 1301号室の間取り
間取り:1LDK
間取詳細:1LDK(洋5.5・LD8.5・K2.8)
専有面積:41.11㎡
方位:南
部屋位置:角部屋
メインステージ若松河田 1301号室の設備
キッチン
システムキッチン
ガスコンロ
バス・トイレ
バス・トイレ別
浴室乾燥機
温水洗浄便座
独立洗面台
玄関
TVモニタ付インターホン
オートロック
宅配ボックス
収納
シューズボックス
バルコニー
バルコニー
ルーフバルコニー
室内設備
エアコン
照明器具付
位置・立地
2階以上
最上階
角部屋
南向き
インフラ
BS
CS
都市ガス
建物設備
エレベーター
防犯カメラ
24時間ゴミ出しOK
駐輪場
バイク置き場
入居条件
ペット可・相談
2人入居可
ルームシェア可・相談
ライフステージ
一人暮らしに人気の設備
カップルに人気の設備
家族に人気の設備
夫婦に人気の設備
三世代で人気の設備
こだわり
日当たり重視
セキュリティ対策重視
タイパ重視
外で子どもと遊びたい
雨の日でも洗濯したい
趣味
オークション・通販が好き
ガーデニングが好き
お得な条件
インターネット無料
メインステージ若松河田 1301号室の賃貸契約情報
毎月支払う |
家賃21万円/月共益費20,000円/月 |
|---|---|
初期費用 |
敷金-礼金1ヶ月 (21万円)保証金-敷引き償却金- |
更新料 |
315,000円 |
鍵交換費用 |
- |
室内清掃費用 |
- |
ハウスクリーニング費用(退去時請求) |
55,000円 |
退去時鍵交換費用(契約時請求) |
29,700円 |
AMLクラブサポート費用(契約時請求) |
16,500円 |
駐車場料金 |
無 |
損保・ |
借家賠付きの火災保険にご加入いただきます。 |
保証会社 |
加入要 保証会社利用料:家賃総額より50%~ |
契約期間 |
2年 |
入居可能日 |
2026年03月上旬 |
フリーレント期間 |
- |
取引形態 |
一般媒介 |
備考 |
- |
メインステージ若松河田 1301号室の建物情報
建物名称 |
メインステージ若松河田 |
|---|---|
最寄駅 |
|
所在地 |
東京都新宿区若松町 |
階層 |
13階部分(地上13階建) |
構造 |
RC |
築年数 |
2017年4月(築9年) |
駐車場 |
無 |
小学校学区 |
早稲田小学校 |
中学校学区 |
新宿中学校 |
- 学区データについて
- ※学区データは必ずしも正確とは限りません。詳細に関しては最寄店舗または各自治体の教育委員会に必ずご確認ください。
無料この物件に問い合わせ
- メインステージ若松河田 1301号室

-
21万円
(共益費
20,000円)
- 敷
- -
- 礼
- 1ヶ月
- 保
- -
- 償
- -
メインステージ若松河田 1301号室の物件のお問い合わせ先・取り扱い店舗
ハウスコム 明大前店
- アクセス
-
京王線「明大前駅」中央口徒歩1分
京王井の頭線「明大前駅」中央口徒歩1分
- 住所
- 〒156-0043 東京都世田谷区松原2丁目44−1 グランシーン明大前 1階
- 営業時間
- 10:00~18:00
- 定休日
- なし
- 営業エリア
- 世田谷区・杉並区・渋谷区・中野区・新宿区・三鷹市・調布市
- 取引態様
- 賃貸仲介業













