ライオンズマンション八王子シティ壱番館 ***号室(4階/1LDK)の賃貸物件(賃貸マンション)
東京都八王子市にあるライオンズマンション八王子シティ壱番館 ***号室は温水洗浄便座、全居室収納、バルコニー、床下暖房、駐輪場などが特徴です。最寄り駅の中央本線(JR東日本)八王子駅から徒歩7分です。ライオンズマンション八王子シティ壱番館 ***号室の詳細はハウスコム 八王子店までお気軽にお問い合わせください!
情報更新日:
次回更新予定日:
※次回更新予定日について:お店側では順次空室確認を行っていますが、次回更新予定日までに空室確認が行えない場合には、この物件情報は自動的に削除されます。
ライオンズマンション八王子シティ壱番館 ***号室の賃貸物件部屋概要
家賃 |
11.5万円
初期費用を |
|---|---|
共益費 |
-
入居可能時期 |
敷金/礼金 |
1ヶ月 / 1ヶ月 |
保証金/ |
- / 1ヶ月 |
最寄駅 |
|
所在地 |
東京都八王子市横山町 |
部屋番号 |
***号室 |
間取り |
1LDK(洋7.4・LDK13.8) |
専有面積 |
53.84㎡ |
築年数 |
2002年3月(築24年) |
階数 |
4階部分(地上14階建) |
方位・位置 |
北 / 角部屋 |
物件種別 |
賃貸マンション |
構造 |
RC |
駐車場 |
- |
小学校学区 |
第一小学校 |
中学校学区 |
第五中学校 |
他の空き部屋 |
ー |
- 学区データについて
- ※学区データは必ずしも正確とは限りません。詳細に関しては最寄店舗または各自治体の教育委員会に必ずご確認ください。
ライオンズマンション八王子シティ壱番館 ***号室の特徴
-
一人暮らしに人気の設備

-
カップルに人気の設備

-
家族に人気の設備

-
夫婦に人気の設備

-
三世代で人気の設備

-
収納重視

-
外で子どもと遊びたい

-
身だしなみに気をつかいたい

-
雨の日でも洗濯したい

-
洋室で暮らしたい

-
持ち物をスッキリ隠す収納部屋

-
料理が好き

-
推し活グッズを飾りたい

-
ガーデニングが好き

契約条件
この物件は、入居者が学生限定もしくは歓迎で2人入居もご契約できます。 また、ご契約時に保証人は不要です。
セキュリティ
この物件の建物には、オートロックや宅配ボックスが設置されており、来客時には居室内のテレビモニターにて訪問者の顔を確認することができます。
室内設備
システムキッチンには、ガスコンロが備え付けられています。 お風呂とトイレは別です。お風呂には、追い焚き機能が備わっています。 トイレは、温水洗浄便座機能付きになります。 女性に嬉しい設備のシャワーの付いている洗面化粧台があります。 洗濯に便利な設備として、室内洗濯機置場があります。浴室乾燥機も設置されているので、梅雨時の生乾き臭も比較的防ぐことができます。
居室状況
お部屋の床は、フローリングとなっており、エアコンと一部床下暖房が設置されています。 照明器具が備え付けられており、入居後すぐ生活が始められます。 収納スペースとして、基本的な居室にクローゼットを設置、玄関にはシューズボックスがあります。
建物設備共用部分
居室外の専有スペースとして、洗濯物を干すなどの用途として利用できるバルコニーがあります。 建物の共用スペースに、日々の出入に便利なエレベーターや、急な外出や不在がちのご家庭の荷物受け取りに便利な宅配ボックスが設置されています。 駐輪場が利用できます。
周辺施設
この物件の学区は、第一小学校区・第五中学校区です。
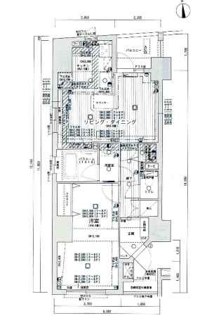
ライオンズマンション八王子シティ壱番館 ***号室の間取り
間取り:1LDK
間取詳細:1LDK(洋7.4・LDK13.8)
専有面積:53.84㎡
方位:北
部屋位置:角部屋
ライオンズマンション八王子シティ壱番館 ***号室の設備
キッチン
システムキッチン
カウンターキッチン
ガスコンロ
バス・トイレ
バス・トイレ別
追い焚き
浴室乾燥機
温水洗浄便座
独立洗面台
シャワー付洗面化粧台
玄関
TVモニタ付インターホン
オートロック
宅配ボックス
収納
クローゼット
シューズボックス
全居室収納
バルコニー
バルコニー
ルーフバルコニー
室内設備
エアコン
フローリング
床下暖房
室内洗濯機置場
照明器具付
位置・立地
2階以上
角部屋
インフラ
インターネット可
都市ガス
建物設備
エレベーター
駐輪場
分譲賃貸
入居条件
2人入居可
学生限定・歓迎
オンライン相談可
オンライン内見可
保証人不要
ライフステージ
一人暮らしに人気の設備
カップルに人気の設備
家族に人気の設備
夫婦に人気の設備
三世代で人気の設備
こだわり
収納重視
外で子どもと遊びたい
身だしなみに気をつかいたい
雨の日でも洗濯したい
洋室で暮らしたい
持ち物をスッキリ隠す収納部屋
趣味
料理が好き
推し活グッズを飾りたい
ガーデニングが好き
ライオンズマンション八王子シティ壱番館 ***号室の賃貸契約情報
毎月支払う |
家賃11.5万円/月共益費- |
|---|---|
初期費用 |
敷金1ヶ月 (11.5万円)礼金1ヶ月 (11.5万円)保証金-敷引き償却金1ヶ月 |
更新料 |
115,000円 |
鍵交換費用 |
- |
室内清掃費用 |
- |
駐車場料金 |
- |
損保・ |
借家賠付きの火災保険にご加入いただきます。 |
保証会社 |
加入要 保証会社利用料:初回100% 月次1.5% |
契約期間 |
- |
入居可能日 |
2026年03月上旬 |
フリーレント期間 |
- |
取引形態 |
一般媒介 |
備考 |
火災保険24000円 |
ライオンズマンション八王子シティ壱番館 ***号室の建物情報
建物名称 |
ライオンズマンション八王子シティ壱番館 |
|---|---|
最寄駅 |
|
所在地 |
東京都八王子市横山町 |
階層 |
4階部分(地上14階建) |
構造 |
RC |
築年数 |
2002年3月(築24年) |
駐車場 |
- |
小学校学区 |
第一小学校 |
中学校学区 |
第五中学校 |
- 学区データについて
- ※学区データは必ずしも正確とは限りません。詳細に関しては最寄店舗または各自治体の教育委員会に必ずご確認ください。
無料この物件に問い合わせ
- ライオンズマンション八王子シティ壱番館 ***号室

-
11.5万円
(共益費
-)
- 敷
- 1ヶ月
- 礼
- 1ヶ月
- 保
- -
- 償
- 1ヶ月
ライオンズマンション八王子シティ壱番館 ***号室の物件のお問い合わせ先・取り扱い店舗
ハウスコム 八王子店
- アクセス
-
中央本線(JR東日本)「八王子駅」北口徒歩3分
- 住所
- 〒192-0085 東京都八王子市中町1−12 Def・Aビル 1階
- 営業時間
- 10:00~18:00
- 定休日
- 水曜日
- 営業エリア
- 八王子市,日野市、福生市、青梅市、あきる野市、昭島市
- 取引態様
- 賃貸仲介業





















