千里丘東の完工年月(2013年8月)築の賃貸アパート ***号室(1階/1LDK)の賃貸物件(賃貸アパート)
大阪府摂津市にある千里丘東の完工年月(2013年8月)築の賃貸アパート ***号室はガスコンロ二口以上、追い焚き、室内洗濯機置場、1階、都市ガスなどが特徴です。最寄り駅の阪急京都線摂津市駅から徒歩12分です。千里丘東の完工年月(2013年8月)築の賃貸アパート ***号室の詳細はクラスモ FCJR吹田駅前店までお気軽にお問い合わせください!
情報更新日:
次回更新予定日:
※次回更新予定日について:お店側では順次空室確認を行っていますが、次回更新予定日までに空室確認が行えない場合には、この物件情報は自動的に削除されます。
千里丘東の完工年月(2013年8月)築の賃貸アパート ***号室の賃貸物件部屋概要
家賃 |
10.5万円
初期費用を |
|---|---|
共益費 |
7,500円
入居可能時期 |
敷金/礼金 |
- / 180,000円 |
保証金/ |
- / - |
最寄駅 |
|
所在地 |
大阪府摂津市千里丘東 |
部屋番号 |
***号室 |
間取り |
1LDK(LDK13.5・洋6) |
専有面積 |
54.59㎡ |
築年数 |
2013年8月(築13年) |
階数 |
1階部分(地上2階建) |
方位・位置 |
北東 / その他 |
物件種別 |
賃貸アパート |
構造 |
軽量鉄骨 |
駐車場 |
12,100円 |
小学校学区 |
摂津小学校 |
中学校学区 |
第一中学校 |
他の空き部屋 |
ー |
- 学区データについて
- ※学区データは必ずしも正確とは限りません。詳細に関しては最寄店舗または各自治体の教育委員会に必ずご確認ください。
千里丘東の完工年月(2013年8月)築の賃貸アパート ***号室の特徴
契約条件
敷金が無料なため、初期費用が比較的安くなる傾向にあります。
セキュリティ
この物件の建物には、オートロックが設置されており、来客時には居室内のテレビモニターにて訪問者の顔を確認することができます。
室内設備
システムキッチンには、2つ以上のガスコンロが備え付けられています。 お風呂とトイレは別です。お風呂には、追い焚き機能が備わっています。 トイレは、温水洗浄便座機能付きになります。 女性に嬉しい設備のシャワーの付いている洗面化粧台があります。 洗濯に便利な設備として、室内洗濯機置場があります。
居室状況
お部屋の床は、フローリングとなっており、エアコンが設置されています。 収納スペースとして、基本的な居室にクローゼットを設置、玄関にはシューズボックスがあります。
建物設備共用部分
居室外の専有スペースとして、洗濯物を干すなどの用途として利用できるバルコニーがあります。 駐輪場が利用できます。
周辺施設
この物件の学区は、摂津小学校区・第一中学校区です。近くには、徒歩10分(762m)でドラッグストアが、徒歩13分(1002m)で銀行があります。
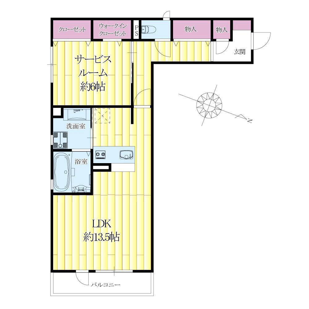
千里丘東の完工年月(2013年8月)築の賃貸アパート ***号室の間取り
間取り:1LDK
間取詳細:1LDK(LDK13.5・洋6)
専有面積:54.59㎡
方位:北東
部屋位置:その他
千里丘東の完工年月(2013年8月)築の賃貸アパート ***号室の設備
キッチン
システムキッチン
カウンターキッチン
ガスコンロ
ガスコンロ二口以上
バス・トイレ
バス・トイレ別
追い焚き
温水洗浄便座
独立洗面台
シャワー付洗面化粧台
玄関
TVモニタ付インターホン
オートロック
収納
クローゼット
シューズボックス
バルコニー
バルコニー
室内設備
エアコン
フローリング
室内洗濯機置場
位置・立地
1階
インフラ
都市ガス
建物設備
24時間換気システム
駐輪場
ライフステージ
一人暮らしに人気の設備
カップルに人気の設備
家族に人気の設備
夫婦に人気の設備
三世代で人気の設備
こだわり
雨の日でも洗濯したい
洋室で暮らしたい
趣味
推し活グッズを飾りたい
千里丘東の完工年月(2013年8月)築の賃貸アパート ***号室の賃貸契約情報
毎月支払う |
家賃10.5万円/月共益費7,500円/月 |
|---|---|
初期費用 |
敷金-礼金180,000円保証金-敷引き償却金- |
更新料 |
1ヶ月 |
鍵交換費用 |
16,500円 |
室内清掃費用 |
71,500円 |
駐車場料金 |
12,100円 |
損保・ |
借家賠付きの火災保険にご加入いただきます。 |
保証会社 |
加入要 保証会社:イントラスト 保証会社利用料:初回保証料:35,000円 総賃料の1%+800円/月 |
契約期間 |
2年 |
入居可能日 |
2026年02月下旬 |
フリーレント期間 |
- |
取引形態 |
仲介 |
備考 |
お部屋探しはクラスモJR吹田駅前店で新婚様・カップル様 大歓迎・応援中医療従事者様 大歓迎・応援中新社会人様 大歓迎・応援中 |
千里丘東の完工年月(2013年8月)築の賃貸アパート ***号室の建物情報
建物名称 |
千里丘東の完工年月(2013年8月)築の賃貸アパート |
|---|---|
最寄駅 |
|
所在地 |
大阪府摂津市千里丘東 |
階層 |
1階部分(地上2階建) |
構造 |
軽量鉄骨 |
築年数 |
2013年8月(築13年) |
駐車場 |
12,100円 |
小学校学区 |
摂津小学校 |
中学校学区 |
第一中学校 |
- 学区データについて
- ※学区データは必ずしも正確とは限りません。詳細に関しては最寄店舗または各自治体の教育委員会に必ずご確認ください。
無料この物件に問い合わせ
- 千里丘東の完工年月(2013年8月)築の賃貸アパート ***号室

-
10.5万円
(共益費
7,500円)
- 敷
- -
- 礼
- 180,000円
- 保
- -
- 償
- -
千里丘東の完工年月(2013年8月)築の賃貸アパート ***号室の物件のお問い合わせ先・取り扱い店舗
クラスモ FCJR吹田駅前店
- アクセス
-
東海道本線(JR西日本)「吹田駅」徒歩2分
阪急千里線「吹田駅」徒歩13分
阪急千里線「豊津駅」徒歩23分
- 住所
- 〒564-0027 大阪府吹田市朝日町2番 さんくす2番館138号室
- 営業時間
- 10:00~19:00
- 定休日
- 水曜日
- 営業エリア
- 吹田市・摂津市・茨木市 ・東淀川区・淀川区・西淀川区・北区・福島区・中央区
- 取引態様
- 賃貸仲介業・物件売買業・FC店





































