ロンド荻窪 ***号室(2階/1LDK)の賃貸物件(賃貸アパート)
東京都杉並区にあるロンド荻窪 ***号室はバス・トイレ別、シャワー付洗面化粧台、バルコニー、最上階、駐輪場などが特徴です。最寄り駅の東京メトロ 丸ノ内線荻窪駅から徒歩17分です。ロンド荻窪 ***号室の詳細はハウスコム 荻窪店までお気軽にお問い合わせください!
情報更新日:
次回更新予定日:
※次回更新予定日について:お店側では順次空室確認を行っていますが、次回更新予定日までに空室確認が行えない場合には、この物件情報は自動的に削除されます。
ロンド荻窪 ***号室の賃貸物件部屋概要
家賃 |
14万円
初期費用を |
|---|---|
共益費 |
3,000円
入居可能時期 |
敷金/礼金 |
1ヶ月 / 2ヶ月 |
保証金/ |
- / - |
最寄駅 |
|
所在地 |
東京都杉並区本天沼 |
部屋番号 |
***号室 |
間取り |
1LDK(洋5・LDK11) |
専有面積 |
45.54㎡ |
築年数 |
2016年3月(築10年) |
階数 |
2階部分(地上2階建) |
方位・位置 |
南西 / 角部屋 |
物件種別 |
賃貸アパート |
構造 |
木造 |
駐車場 |
空無し |
小学校学区 |
沓掛小学校 |
中学校学区 |
天沼中学校 |
他の空き部屋 |
201号室 |
- 学区データについて
- ※学区データは必ずしも正確とは限りません。詳細に関しては最寄店舗または各自治体の教育委員会に必ずご確認ください。
ロンド荻窪 ***号室の特徴
-
一人暮らしに人気の設備

-
カップルに人気の設備

-
家族に人気の設備

-
夫婦に人気の設備

-
三世代で人気の設備

-
外で子どもと遊びたい

-
雨の日でも洗濯したい

-
洋室で暮らしたい

-
服やおしゃれが好き

-
ガーデニングが好き

契約条件
この物件は、2人入居もご契約できます。 また、ご契約時に保証人は不要です。
セキュリティ
来客時には居室内のテレビモニターにて訪問者の顔を確認することができます。
室内設備
システムキッチンには、2つ以上のガスコンロが備え付けられています。 お風呂とトイレは別です。お風呂には、追い焚き機能が備わっています。 トイレは、温水洗浄便座機能付きになります。 女性に嬉しい設備のシャワーの付いている洗面化粧台があります。 洗濯に便利な設備として、室内洗濯機置場があります。浴室乾燥機も設置されているので、梅雨時の生乾き臭も比較的防ぐことができます。
居室状況
お部屋の床は、フローリングとなっており、エアコンが設置されています。 収納スペースとして、通常よりも収納力の高いウォークインクローゼット、玄関にはシューズボックスがあります。
建物設備共用部分
居室外の専有スペースとして、洗濯物を干すなどの用途として利用できるバルコニーがあります。 駐輪場が利用できます。
周辺施設
この物件の学区は、沓掛小学校区・天沼中学校区です。
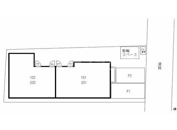
ロンド荻窪 ***号室の間取り
間取り:1LDK
間取詳細:1LDK(洋5・LDK11)
専有面積:45.54㎡
方位:南西
部屋位置:角部屋
ロンド荻窪 ***号室の設備
キッチン
システムキッチン
ガスコンロ
ガスコンロ二口以上
バス・トイレ
バス・トイレ別
追い焚き
浴室乾燥機
温水洗浄便座
独立洗面台
シャワー付洗面化粧台
玄関
TVモニタ付インターホン
収納
ウォークインクローゼット
シューズボックス
バルコニー
バルコニー
ルーフバルコニー
室内設備
エアコン
フローリング
室内洗濯機置場
位置・立地
2階以上
最上階
角部屋
インフラ
インターネット可
CATV
都市ガス
建物設備
駐輪場
入居条件
2人入居可
保証人不要
ライフステージ
一人暮らしに人気の設備
カップルに人気の設備
家族に人気の設備
夫婦に人気の設備
三世代で人気の設備
こだわり
外で子どもと遊びたい
雨の日でも洗濯したい
洋室で暮らしたい
趣味
服やおしゃれが好き
ガーデニングが好き
ロンド荻窪 ***号室の賃貸契約情報
毎月支払う |
家賃14万円/月共益費3,000円/月 |
|---|---|
初期費用 |
敷金1ヶ月 (14万円)礼金2ヶ月 (28万円)保証金-敷引き償却金- |
更新料 |
140,000円 |
鍵交換費用 |
27,500円 |
室内清掃費用 |
60,112円 |
駐車場料金 |
空無し |
損保・ |
借家賠付きの火災保険にご加入いただきます。 |
保証会社 |
加入要 保証会社:クレディセゾン 保証会社利用料:保証会社:イントラスト 初回保証料:月支払総額の60% 月額保証料:月支払総額の1% 更新料なし |
契約期間 |
2年 |
入居可能日 |
2026年03月上旬 |
フリーレント期間 |
- |
取引形態 |
一般媒介 |
備考 |
・3名まで入居可 ・民泊・石油系暖房器具不可 ・インターネット・CATVの工事費・使用料は借主実費負担 ・町内会費借主実費負担 ・駐輪場:有料 自転車1台まで駐輪可(原付・バイク不可) ・法人契約の場合、礼金1ヶ月積み増し ・スマートロック設置予定(設置できない場合もあります) 設置できない場合はシリンダー交換費用として27500円(入居時) |
ロンド荻窪 ***号室の建物情報
建物名称 |
ロンド荻窪 |
|---|---|
最寄駅 |
|
所在地 |
東京都杉並区本天沼 |
階層 |
2階部分(地上2階建) |
構造 |
木造 |
築年数 |
2016年3月(築10年) |
駐車場 |
空無し |
小学校学区 |
沓掛小学校 |
中学校学区 |
天沼中学校 |
- 学区データについて
- ※学区データは必ずしも正確とは限りません。詳細に関しては最寄店舗または各自治体の教育委員会に必ずご確認ください。
無料この物件に問い合わせ
- ロンド荻窪 ***号室

-
14万円
(共益費
3,000円)
- 敷
- 1ヶ月
- 礼
- 2ヶ月
- 保
- -
- 償
- -
ロンド荻窪 ***号室の物件のお問い合わせ先・取り扱い店舗
ハウスコム 荻窪店
- アクセス
-
中央本線(JR東日本)「荻窪駅」徒歩1分
- 住所
- 〒167-0051 東京都杉並区荻窪5-28-12 サカエビル8階
- 営業時間
- 10:00~18:00
- 定休日
- 水曜日
- 営業エリア
- 杉並区,中野区、練馬区、武蔵野市
- 取引態様
- 賃貸仲介業

























