S-FORT駒沢大学 102号室(1階/1LDK)の賃貸物件(賃貸マンション)
東京都世田谷区にあるS-FORT駒沢大学 102号室は浴室乾燥機、独立洗面台、シューズボックス、デザイナーズ、1階などが特徴です。最寄り駅の東急田園都市線駒沢大学駅から徒歩10分です。S-FORT駒沢大学 102号室の詳細はハウスコム 三軒茶屋店までお気軽にお問い合わせください!
情報更新日:
次回更新予定日:
※次回更新予定日について:お店側では順次空室確認を行っていますが、次回更新予定日までに空室確認が行えない場合には、この物件情報は自動的に削除されます。
S-FORT駒沢大学 102号室の賃貸物件部屋概要
家賃 |
15.7万円
初期費用を |
|---|---|
共益費 |
12,000円
入居可能時期 |
敷金/礼金 |
- / 1ヶ月 |
保証金/ |
- / - |
最寄駅 |
|
所在地 |
東京都世田谷区上馬 |
部屋番号 |
102号室 |
間取り |
1LDK(LDK11・洋6) |
専有面積 |
40.42㎡ |
築年数 |
2018年2月(築9年) |
階数 |
1階部分(地上4階建) |
方位・位置 |
南東 / 角部屋 |
物件種別 |
賃貸マンション |
構造 |
RC |
駐車場 |
- |
小学校学区 |
弦巻小学校 |
中学校学区 |
駒沢中学校 |
他の空き部屋 |
ー |
- 学区データについて
- ※学区データは必ずしも正確とは限りません。詳細に関しては最寄店舗または各自治体の教育委員会に必ずご確認ください。
S-FORT駒沢大学 102号室の特徴
契約条件
この物件は、2人入居もご契約できます。 敷金が無料なため、初期費用が比較的安くなる傾向にあります。
セキュリティ
この物件の建物には、オートロックや宅配ボックスが設置されており、来客時には居室内のテレビモニターにて訪問者の顔を確認することができます。
室内設備
システムキッチンには、IHコンロが備え付けられています。 トイレは、温水洗浄便座機能付きになります。 女性に嬉しい設備の独立した洗面化粧台があります。 洗濯に便利な設備として、室内洗濯機置場があります。浴室乾燥機も設置されているので、梅雨時の生乾き臭も比較的防ぐことができます。
居室状況
エアコンが設置されています。 照明器具が備え付けられており、入居後すぐ生活が始められます。 収納スペースとして、基本的な居室にクローゼットを設置、玄関にはシューズボックスがあります。
建物設備共用部分
建物の共用スペースに、急な外出や不在がちのご家庭の荷物受け取りに便利な宅配ボックスが設置されています。 駐輪場が利用できます。
周辺施設
この物件の学区は、弦巻小学校区・駒沢中学校区です。
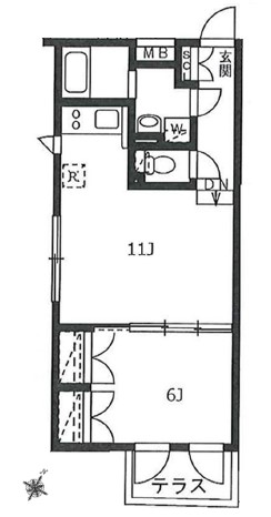
S-FORT駒沢大学 102号室の間取り
間取り:1LDK
間取詳細:1LDK(LDK11・洋6)
専有面積:40.42㎡
方位:南東
部屋位置:角部屋
S-FORT駒沢大学 102号室の設備
キッチン
システムキッチン
IHコンロ
バス・トイレ
バス・トイレ別
浴室乾燥機
温水洗浄便座
独立洗面台
玄関
TVモニタ付インターホン
オートロック
宅配ボックス
収納
クローゼット
シューズボックス
室内設備
エアコン
室内洗濯機置場
照明器具付
デザイナーズ
位置・立地
1階
角部屋
インフラ
インターネット可
都市ガス
建物設備
駐輪場
入居条件
2人入居可
ライフステージ
一人暮らしに人気の設備
カップルに人気の設備
家族に人気の設備
夫婦に人気の設備
三世代で人気の設備
こだわり
雨の日でも洗濯したい
S-FORT駒沢大学 102号室の賃貸契約情報
毎月支払う |
家賃15.7万円/月共益費12,000円/月 |
|---|---|
初期費用 |
敷金-礼金1ヶ月 (15.7万円)保証金-敷引き償却金- |
更新料 |
157,000円 |
鍵交換費用 |
22,000円 |
室内清掃費用 |
65,000円 |
駐車場料金 |
- |
損保・ |
借家賠付きの火災保険にご加入いただきます。 |
保証会社 |
加入要 保証会社利用料:初回保証料:総賃料の50% 12000円/年 口座振替手数料:330円 |
契約期間 |
2年 |
入居可能日 |
2026年03月 |
フリーレント期間 |
- |
取引形態 |
一般媒介 |
備考 |
- |
S-FORT駒沢大学 102号室の建物情報
建物名称 |
S-FORT駒沢大学 |
|---|---|
最寄駅 |
|
所在地 |
東京都世田谷区上馬 |
階層 |
1階部分(地上4階建) |
構造 |
RC |
築年数 |
2018年2月(築9年) |
駐車場 |
- |
小学校学区 |
弦巻小学校 |
中学校学区 |
駒沢中学校 |
- 学区データについて
- ※学区データは必ずしも正確とは限りません。詳細に関しては最寄店舗または各自治体の教育委員会に必ずご確認ください。
無料この物件に問い合わせ
- S-FORT駒沢大学 102号室

-
15.7万円
(共益費
12,000円)
- 敷
- -
- 礼
- 1ヶ月
- 保
- -
- 償
- -
S-FORT駒沢大学 102号室の物件のお問い合わせ先・取り扱い店舗
ハウスコム 三軒茶屋店
- アクセス
-
東急田園都市線「三軒茶屋駅」南口徒歩1分
- 住所
- 〒154-0024 東京都世田谷区三軒茶屋1丁目38−7 ワコーレ三軒茶屋 2階
- 営業時間
- 10:00~18:00
- 定休日
- なし
- 営業エリア
- 世田谷区・目黒区・渋谷区
- 取引態様
- 賃貸仲介業





























