読売ランド第一マンションズ 301号室(3階/3LDK)の賃貸物件(賃貸マンション)
神奈川県川崎市麻生区にある読売ランド第一マンションズ 301号室は室内洗濯機置場、和室あり、最上階、駐輪場、2人入居可などが特徴です。最寄り駅の小田急小田原線読売ランド前駅から徒歩20分です。読売ランド第一マンションズ 301号室の詳細はハウスコム 向ヶ丘遊園店までお気軽にお問い合わせください!
情報更新日:
次回更新予定日:
※次回更新予定日について:お店側では順次空室確認を行っていますが、次回更新予定日までに空室確認が行えない場合には、この物件情報は自動的に削除されます。
読売ランド第一マンションズ 301号室の賃貸物件部屋概要
家賃 |
11.3万円
初期費用を |
|---|---|
共益費 |
5,000円
入居可能時期 |
敷金/礼金 |
- / - |
保証金/ |
- / - |
最寄駅 |
|
所在地 |
神奈川県川崎市麻生区細山 |
部屋番号 |
301号室 |
間取り |
3LDK(和6・洋6・洋5.5・LDK20) |
専有面積 |
83.73㎡ |
築年数 |
1991年6月(築35年) |
階数 |
3階部分(地上3階建) |
方位・位置 |
西 / 角部屋 |
物件種別 |
賃貸マンション |
構造 |
RC |
駐車場 |
10,450円 |
小学校学区 |
西生田小学校 |
中学校学区 |
西生田中学校 |
他の空き部屋 |
206号室 |
- 学区データについて
- ※学区データは必ずしも正確とは限りません。詳細に関しては最寄店舗または各自治体の教育委員会に必ずご確認ください。
読売ランド第一マンションズ 301号室の特徴
-
一人暮らしに人気の設備

-
カップルに人気の設備

-
家族に人気の設備

-
夫婦に人気の設備

-
三世代で人気の設備

-
収納重視

-
外で子どもと遊びたい

-
雨の日でも洗濯したい

-
洋室で暮らしたい

-
持ち物をスッキリ隠す収納部屋

-
料理が好き

-
推し活グッズを飾りたい

-
ガーデニングが好き

契約条件
この物件は、2人入居もご契約できます。 また、ご契約時に保証人は不要です。 敷金と礼金が無料なため、初期費用が比較的安くなる傾向にあります。
セキュリティ
来客時には居室内のテレビモニターにて訪問者の顔を確認することができます。
室内設備
システムキッチンには、ガスコンロが備え付けられています。 お風呂とトイレは別です。お風呂には、追い焚き機能が備わっています。 女性に嬉しい設備の独立した洗面化粧台があります。 洗濯に便利な設備として、室内洗濯機置場があります。
居室状況
居室には、和室の居室もあり、子育てやリラックススペースとしての利用もできます。 お部屋の床は、フローリングとなっており、エアコンが設置されています。 インターネットも無料で入居後すぐ生活が始められます。 収納スペースとして、基本的な居室にクローゼットを設置、玄関にはシューズボックスがあります。
建物設備共用部分
居室外の専有スペースとして、洗濯物を干すなどの用途として利用できるバルコニーがあります。 駐輪場が利用できます。
周辺施設
この物件の学区は、西生田小学校区・西生田中学校区です。
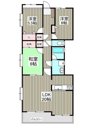
読売ランド第一マンションズ 301号室の間取り
間取り:3LDK
間取詳細:3LDK(和6・洋6・洋5.5・LDK20)
専有面積:83.73㎡
方位:西
部屋位置:角部屋
読売ランド第一マンションズ 301号室の設備
キッチン
システムキッチン
カウンターキッチン
ガスコンロ
バス・トイレ
バス・トイレ別
追い焚き
独立洗面台
玄関
TVモニタ付インターホン
収納
クローゼット
シューズボックス
全居室収納
バルコニー
バルコニー
ルーフバルコニー
室内設備
エアコン
フローリング
室内洗濯機置場
和室あり
位置・立地
2階以上
最上階
角部屋
インフラ
インターネット可
建物設備
駐輪場
入居条件
2人入居可
オンライン相談可
オンライン内見可
保証人不要
ライフステージ
一人暮らしに人気の設備
カップルに人気の設備
家族に人気の設備
夫婦に人気の設備
三世代で人気の設備
こだわり
収納重視
外で子どもと遊びたい
雨の日でも洗濯したい
洋室で暮らしたい
持ち物をスッキリ隠す収納部屋
趣味
料理が好き
推し活グッズを飾りたい
ガーデニングが好き
お得な条件
インターネット無料
読売ランド第一マンションズ 301号室の賃貸契約情報
毎月支払う |
家賃11.3万円/月共益費5,000円/月 |
|---|---|
初期費用 |
敷金-礼金-保証金-敷引き償却金- |
更新料 |
113,000円 |
鍵交換費用 |
27,500円 |
室内清掃費用 |
- |
24時間サポート |
16,500円 |
除菌 |
16,500円 |
駐車場料金 |
10,450円 |
損保・ |
借家賠付きの火災保険にご加入いただきます。 |
保証会社 |
加入要 保証会社利用料:初回保証料:総賃料60% 年間保証料10,000円 月次手数料:総賃料の1%~、 |
契約期間 |
2年 |
入居可能日 |
相談 |
フリーレント期間 |
- |
取引形態 |
一般媒介 |
備考 |
火災保険:20000円/2年 除菌費:16500円 安心トラブルサポート:16500円 鍵交換代:27500円~、 退去時クリーニング費用借主負担 短期解約違約金あり:2年未満 月額総賃料の1ヵ月分 、1年未満 月額総賃料の2ヵ月分 |
読売ランド第一マンションズ 301号室の建物情報
建物名称 |
読売ランド第一マンションズ |
|---|---|
最寄駅 |
|
所在地 |
神奈川県川崎市麻生区細山 |
階層 |
3階部分(地上3階建) |
構造 |
RC |
築年数 |
1991年6月(築35年) |
駐車場 |
10,450円 |
小学校学区 |
西生田小学校 |
中学校学区 |
西生田中学校 |
- 学区データについて
- ※学区データは必ずしも正確とは限りません。詳細に関しては最寄店舗または各自治体の教育委員会に必ずご確認ください。
無料この物件に問い合わせ
- 読売ランド第一マンションズ 301号室

-
11.3万円
(共益費
5,000円)
- 敷
- -
- 礼
- -
- 保
- -
- 償
- -
読売ランド第一マンションズ 301号室の物件のお問い合わせ先・取り扱い店舗
ハウスコム 向ヶ丘遊園店
- アクセス
-
小田急小田原線「向ヶ丘遊園駅」南口徒歩1分
- 住所
- 〒214-0014 神奈川県川崎市多摩区登戸2735 中和ビル 1階
- 営業時間
- 10:00~18:00
- 定休日
- なし
- 営業エリア
- 神奈川県川崎市多摩区,神奈川県川崎市高津区,神奈川県川崎市麻生区,東京都世田谷区,東京都狛江市,東京都調布市,東京都町田市,東京都稲城市
- 取引態様
- 賃貸仲介業



























