OLIO南阿佐ヶ谷 203号室(2階/1DK)の賃貸物件(賃貸マンション)
東京都杉並区にあるOLIO南阿佐ヶ谷 203号室はシステムキッチン、宅配ボックス、シューズボックス、防犯カメラ、分譲賃貸などが特徴です。最寄り駅の東京メトロ 丸ノ内線南阿佐ケ谷駅から徒歩5分です。OLIO南阿佐ヶ谷 203号室の詳細はハウスコム 荻窪店までお気軽にお問い合わせください!
情報更新日:
次回更新予定日:
※次回更新予定日について:お店側では順次空室確認を行っていますが、次回更新予定日までに空室確認が行えない場合には、この物件情報は自動的に削除されます。
OLIO南阿佐ヶ谷 203号室の賃貸物件部屋概要
家賃 |
10万円
初期費用を |
|---|---|
共益費 |
10,000円
入居可能時期 |
敷金/礼金 |
1ヶ月 / 1ヶ月 |
保証金/ |
- / 1ヶ月 |
最寄駅 |
|
所在地 |
東京都杉並区成田東 |
部屋番号 |
203号室 |
間取り |
1DK(洋0) |
専有面積 |
30.48㎡ |
築年数 |
1998年10月(築28年) |
階数 |
2階部分(地上8階建) |
方位・位置 |
南西 / 角部屋 |
物件種別 |
賃貸マンション |
構造 |
RC |
駐車場 |
- |
小学校学区 |
東田小学校 |
中学校学区 |
東田中学校 |
他の空き部屋 |
ー |
- 学区データについて
- ※学区データは必ずしも正確とは限りません。詳細に関しては最寄店舗または各自治体の教育委員会に必ずご確認ください。
OLIO南阿佐ヶ谷 203号室の特徴
-
一人暮らしに人気の設備

-
カップルに人気の設備

-
家族に人気の設備

-
夫婦に人気の設備

-
三世代で人気の設備

-
セキュリティ対策重視

-
外で子どもと遊びたい

-
雨の日でも洗濯したい

-
洋室で暮らしたい

-
推し活グッズを飾りたい

-
ガーデニングが好き

契約条件
ご契約時に保証人は不要です。
セキュリティ
この物件の建物には、オートロックや防犯カメラや宅配ボックスが設置されており、来客時には居室内のテレビモニターにて訪問者の顔を確認することができます。
室内設備
システムキッチンには、ガスコンロが備え付けられています。 トイレは、温水洗浄便座機能付きになります。 洗濯に便利な設備として、室内洗濯機置場があります。浴室乾燥機も設置されているので、梅雨時の生乾き臭も比較的防ぐことができます。
居室状況
お部屋の床は、フローリングとなっており、エアコンが設置されています。 収納スペースとして、基本的な居室にクローゼットを設置、玄関にはシューズボックスがあります。
建物設備共用部分
居室外の専有スペースとして、洗濯物を干すなどの用途として利用できるバルコニーがあります。 建物の共用スペースに、日々の出入に便利なエレベーターや、いざという時の防犯カメラや、急な外出や不在がちのご家庭の荷物受け取りに便利な宅配ボックスが設置されています。 駐輪場が利用できます。
周辺施設
この物件の学区は、東田小学校区・東田中学校区です。近くには、徒歩11分(880m)で阿佐ヶ谷駅があります。
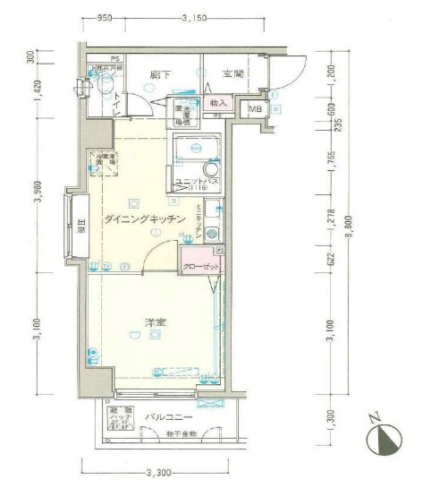
OLIO南阿佐ヶ谷 203号室の間取り
間取り:1DK
間取詳細:1DK(洋0)
専有面積:30.48㎡
方位:南西
部屋位置:角部屋
OLIO南阿佐ヶ谷 203号室の設備
キッチン
システムキッチン
ガスコンロ
バス・トイレ
バス・トイレ別
浴室乾燥機
温水洗浄便座
玄関
TVモニタ付インターホン
オートロック
宅配ボックス
収納
クローゼット
シューズボックス
バルコニー
バルコニー
ルーフバルコニー
室内設備
エアコン
フローリング
室内洗濯機置場
位置・立地
2階以上
角部屋
インフラ
インターネット可
都市ガス
建物設備
エレベーター
防犯カメラ
駐輪場
分譲賃貸
入居条件
オンライン相談可
オンライン内見可
保証人不要
ライフステージ
一人暮らしに人気の設備
カップルに人気の設備
家族に人気の設備
夫婦に人気の設備
三世代で人気の設備
こだわり
セキュリティ対策重視
外で子どもと遊びたい
雨の日でも洗濯したい
洋室で暮らしたい
趣味
推し活グッズを飾りたい
ガーデニングが好き
OLIO南阿佐ヶ谷 203号室の賃貸契約情報
毎月支払う |
家賃10万円/月共益費10,000円/月 |
|---|---|
初期費用 |
敷金1ヶ月 (10万円)礼金1ヶ月 (10万円)保証金-敷引き償却金1ヶ月 |
更新料 |
100,000円 |
鍵交換費用 |
33,000円 |
室内清掃費用 |
64,240円 |
駐車場料金 |
- |
損保・ |
借家賠付きの火災保険にご加入いただきます。 |
保証会社 |
加入要 保証会社利用料:初回保証料:月額総賃料50% |
契約期間 |
2年 |
入居可能日 |
2026年04月下旬 |
フリーレント期間 |
- |
取引形態 |
一般媒介 |
備考 |
更新事務手数料:新賃料0.55ヶ月分 MEIKOライフサポートPlus (見守りサービス) 4400円 / 月額 24時間安心サポート料 16500円/2年毎 |
OLIO南阿佐ヶ谷 203号室の建物情報
建物名称 |
OLIO南阿佐ヶ谷 |
|---|---|
最寄駅 |
|
所在地 |
東京都杉並区成田東 |
階層 |
2階部分(地上8階建) |
構造 |
RC |
築年数 |
1998年10月(築28年) |
駐車場 |
- |
小学校学区 |
東田小学校 |
中学校学区 |
東田中学校 |
- 学区データについて
- ※学区データは必ずしも正確とは限りません。詳細に関しては最寄店舗または各自治体の教育委員会に必ずご確認ください。
無料この物件に問い合わせ
- OLIO南阿佐ヶ谷 203号室

-
10万円
(共益費
10,000円)
- 敷
- 1ヶ月
- 礼
- 1ヶ月
- 保
- -
- 償
- 1ヶ月
OLIO南阿佐ヶ谷 203号室の物件のお問い合わせ先・取り扱い店舗
ハウスコム 荻窪店
- アクセス
-
中央本線(JR東日本)「荻窪駅」徒歩1分
- 住所
- 〒167-0051 東京都杉並区荻窪5-28-12 サカエビル8階
- 営業時間
- 10:00~18:00
- 定休日
- 水曜日
- 営業エリア
- 杉並区,中野区、練馬区、武蔵野市
- 取引態様
- 賃貸仲介業


















