パークテラス八王子 ***号室(4階/1K)の賃貸物件(賃貸マンション)
東京都八王子市にあるパークテラス八王子 ***号室はTVモニタ付インターホン、クローゼット、フローリング、防犯カメラ、学生限定・歓迎などが特徴です。最寄り駅の京王線京王八王子駅から徒歩6分です。パークテラス八王子 ***号室の詳細はハウスコム 八王子駅前店までお気軽にお問い合わせください!
情報更新日:
次回更新予定日:
※次回更新予定日について:お店側では順次空室確認を行っていますが、次回更新予定日までに空室確認が行えない場合には、この物件情報は自動的に削除されます。
パークテラス八王子 ***号室の賃貸物件部屋概要
家賃 |
4.9万円
初期費用を |
|---|---|
共益費 |
10,000円
入居可能時期 |
敷金/礼金 |
- / - |
保証金/ |
- / - |
最寄駅 |
|
所在地 |
東京都八王子市明神町 |
部屋番号 |
***号室 |
間取り |
1K(洋6.5・K2) |
専有面積 |
19.95㎡ |
築年数 |
1994年2月(築32年) |
階数 |
4階部分(地上5階建) |
方位・位置 |
南 / その他 |
物件種別 |
賃貸マンション |
構造 |
RC |
駐車場 |
16,500円 |
小学校学区 |
第四小学校 |
中学校学区 |
第五中学校 |
他の空き部屋 |
02080号室 ***号室 ***号室 0517号室 212号室 307号室 |
- 学区データについて
- ※学区データは必ずしも正確とは限りません。詳細に関しては最寄店舗または各自治体の教育委員会に必ずご確認ください。
パークテラス八王子 ***号室の特徴
-
一人暮らしに人気の設備

-
カップルに人気の設備

-
家族に人気の設備

-
夫婦に人気の設備

-
三世代で人気の設備

-
セキュリティ対策重視

-
収納重視

-
外で子どもと遊びたい

-
雨の日でも洗濯したい

-
洋室で暮らしたい

-
持ち物をスッキリ隠す収納部屋

-
ガーデニングが好き

契約条件
この物件は、入居者が学生限定もしくは歓迎で外国籍の方もご相談の上、ご契約できます。 また、ご契約時に保証人は不要です。 敷金と礼金が無料なため、初期費用が比較的安くなる傾向にあります。
セキュリティ
この物件の建物には、オートロックや防犯カメラが設置されており、来客時には居室内のテレビモニターにて訪問者の顔を確認することができます。
室内設備
システムキッチンには、IHコンロが設置されており、キッチン設備として冷蔵庫が備え付けられています。 洗濯に便利な設備として、室内洗濯機置場があります。
居室状況
お部屋の床は、フローリングとなっており、エアコンが設置されています。 照明器具が備え付けられており、インターネットも無料で入居後すぐ生活が始められます。 収納スペースとして、基本的な居室にクローゼットを設置、玄関にはシューズボックスがあります。
建物設備共用部分
居室外の専有スペースとして、洗濯物を干すなどの用途として利用できるバルコニーがあります。 建物の共用スペースに、日々の出入に便利なエレベーターや、いざという時の防犯カメラが設置されています。 駐輪場、バイク置き場が利用できます。
周辺施設
この物件の学区は、第四小学校区・第五中学校区です。近くには、徒歩2分(82m)でサンクス 八王子北野公園通店があります。
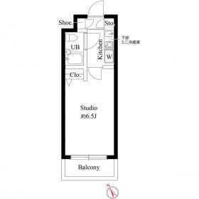
パークテラス八王子 ***号室の間取り
間取り:1K
間取詳細:1K(洋6.5・K2)
専有面積:19.95㎡
方位:南
部屋位置:その他
パークテラス八王子 ***号室の設備
キッチン
システムキッチン
IHコンロ
冷蔵庫付
玄関
TVモニタ付インターホン
オートロック
収納
クローゼット
シューズボックス
全居室収納
バルコニー
バルコニー
ルーフバルコニー
室内設備
エアコン
フローリング
室内洗濯機置場
照明器具付
位置・立地
2階以上
南向き
インフラ
インターネット可
CATV
CATV無料
都市ガス
建物設備
エレベーター
防犯カメラ
駐輪場
バイク置き場
入居条件
学生限定・歓迎
外国人可・相談
オンライン相談可
オンライン内見可
保証人不要
ライフステージ
一人暮らしに人気の設備
カップルに人気の設備
家族に人気の設備
夫婦に人気の設備
三世代で人気の設備
こだわり
セキュリティ対策重視
収納重視
外で子どもと遊びたい
雨の日でも洗濯したい
洋室で暮らしたい
持ち物をスッキリ隠す収納部屋
趣味
ガーデニングが好き
お得な条件
フリーレント
インターネット無料
パークテラス八王子 ***号室の賃貸契約情報
毎月支払う |
家賃4.9万円/月共益費10,000円/月 |
|---|---|
初期費用 |
敷金-礼金-保証金-敷引き償却金- |
更新料 |
49,000円 |
鍵交換費用 |
- |
室内清掃費用 |
- |
駐車場料金 |
16,500円 |
損保・ |
借家賠付きの火災保険にご加入いただきます。 |
保証会社 |
加入要 保証会社利用料:賃料総額55%・外国籍の方は賃料総額50% |
契約期間 |
2年 |
入居可能日 |
相談 |
フリーレント期間 |
1ヶ月 |
取引形態 |
一般媒介 |
備考 |
鍵交換代19800円 水道代・給湯代月額7700円 24Hサポート16500円 火災保険要 |
パークテラス八王子 ***号室の建物情報
建物名称 |
パークテラス八王子 |
|---|---|
最寄駅 |
|
所在地 |
東京都八王子市明神町 |
階層 |
4階部分(地上5階建) |
構造 |
RC |
築年数 |
1994年2月(築32年) |
駐車場 |
16,500円 |
小学校学区 |
第四小学校 |
中学校学区 |
第五中学校 |
- 学区データについて
- ※学区データは必ずしも正確とは限りません。詳細に関しては最寄店舗または各自治体の教育委員会に必ずご確認ください。
無料この物件に問い合わせ
- パークテラス八王子 ***号室

-
4.9万円
(共益費
10,000円)
- 敷
- -
- 礼
- -
- 保
- -
- 償
- -
パークテラス八王子 ***号室の物件のお問い合わせ先・取り扱い店舗
ハウスコム 八王子駅前店
- アクセス
-
中央本線(JR東日本)「八王子駅」北口徒歩1分
- 住所
- 〒192-0083 東京都八王子市旭町2-12 サンドラッグ八王子駅前ビル6階
- 営業時間
- 10:00~18:00
- 定休日
- なし
- 営業エリア
- 【八王子市】【日野市】【相模原市】【あきる野市】【昭島市】【福生市】【青梅市】【羽村市】【瑞穂町】【町田市】【多摩市】
- 取引態様
- 賃貸仲介業





























