浅草KBビル 402号室(4階/1K)の賃貸物件(賃貸マンション)
東京都台東区にある浅草KBビル 402号室はバルコニー、ルーフバルコニー、室内洗濯機置場、駐輪場、即入居可などが特徴です。最寄り駅の東京メトロ 銀座線浅草駅から徒歩10分です。浅草KBビル 402号室の詳細はハウスコム 事業戦略室までお気軽にお問い合わせください!
情報更新日:
次回更新予定日:
※次回更新予定日について:お店側では順次空室確認を行っていますが、次回更新予定日までに空室確認が行えない場合には、この物件情報は自動的に削除されます。
浅草KBビル 402号室の賃貸物件部屋概要
家賃 |
9万円
初期費用を |
|---|---|
共益費 |
5,000円
入居可能時期 |
敷金/礼金 |
1ヶ月 / 1ヶ月 |
保証金/ |
- / - |
最寄駅 |
|
所在地 |
東京都台東区浅草 |
部屋番号 |
402号室 |
間取り |
1K |
専有面積 |
27.68㎡ |
築年数 |
2019年11月(築7年) |
階数 |
4階部分(地上4階建) |
方位・位置 |
ー / 角部屋 |
物件種別 |
賃貸マンション |
構造 |
鉄骨造 |
駐車場 |
無 |
小学校学区 |
富士小学校 |
中学校学区 |
桜橋中学校 |
他の空き部屋 |
301号室 |
- 学区データについて
- ※学区データは必ずしも正確とは限りません。詳細に関しては最寄店舗または各自治体の教育委員会に必ずご確認ください。
浅草KBビル 402号室の特徴
セキュリティ
この物件の建物には、オートロックが設置されており、来客時には居室内のテレビモニターにて訪問者の顔を確認することができます。
室内設備
電気コンロが備え付けられています。 トイレは、温水洗浄便座機能付きになります。 女性に嬉しい設備の独立した洗面化粧台があります。 洗濯に便利な設備として、室内洗濯機置場があります。浴室乾燥機も設置されているので、梅雨時の生乾き臭も比較的防ぐことができます。
居室状況
収納スペースとして、玄関にはシューズボックスがあります。
建物設備共用部分
居室外の専有スペースとして、洗濯物を干すなどの用途として利用できるバルコニーがあります。 駐輪場が利用できます。
周辺施設
この物件の学区は、富士小学校区・桜橋中学校区です。
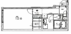
浅草KBビル 402号室の間取り
間取り:1K
間取詳細:1K
専有面積:27.68㎡
方位:ー
部屋位置:角部屋
浅草KBビル 402号室の設備
キッチン
電気コンロ
バス・トイレ
バス・トイレ別
浴室乾燥機
温水洗浄便座
独立洗面台
玄関
TVモニタ付インターホン
オートロック
収納
シューズボックス
バルコニー
バルコニー
ルーフバルコニー
室内設備
室内洗濯機置場
位置・立地
2階以上
最上階
角部屋
建物設備
駐輪場
入居条件
即入居可
ライフステージ
一人暮らしに人気の設備
カップルに人気の設備
家族に人気の設備
夫婦に人気の設備
三世代で人気の設備
こだわり
外で子どもと遊びたい
雨の日でも洗濯したい
趣味
ガーデニングが好き
浅草KBビル 402号室の賃貸契約情報
毎月支払う |
家賃9万円/月共益費5,000円/月 |
|---|---|
初期費用 |
敷金1ヶ月 (9万円)礼金1ヶ月 (9万円)保証金-敷引き償却金- |
更新料 |
90,000円 |
鍵交換費用 |
- |
室内清掃費用 |
- |
契約・更新時文書代 |
5,500円 |
鍵交換代(任意) |
55,000円 |
駐車場料金 |
無 |
損保・ |
借家賠付きの火災保険にご加入いただきます。 |
保証会社 |
加入要 保証会社利用料:日本セーフティー※詳細要確認 |
契約期間 |
2年 |
入居可能日 |
即入居可 |
フリーレント期間 |
- |
取引形態 |
一般媒介 |
備考 |
- |
浅草KBビル 402号室の建物情報
建物名称 |
浅草KBビル |
|---|---|
最寄駅 |
|
所在地 |
東京都台東区浅草 |
階層 |
4階部分(地上4階建) |
構造 |
鉄骨造 |
築年数 |
2019年11月(築7年) |
駐車場 |
無 |
小学校学区 |
富士小学校 |
中学校学区 |
桜橋中学校 |
- 学区データについて
- ※学区データは必ずしも正確とは限りません。詳細に関しては最寄店舗または各自治体の教育委員会に必ずご確認ください。
無料この物件に問い合わせ
- 浅草KBビル 402号室

-
9万円
(共益費
5,000円)
- 敷
- 1ヶ月
- 礼
- 1ヶ月
- 保
- -
- 償
- -
浅草KBビル 402号室の物件のお問い合わせ先・取り扱い店舗
ハウスコム 事業戦略室
- アクセス
-
山手線「品川駅」港南口徒歩3分
- 住所
- 〒108-0075 東京都港区港南2-16-1 品川イーストワンタワー9階
- 営業時間
- 10:00~17:00
- 定休日
- 土曜日・日曜日(祝日定休)
- 営業エリア
- 北区、荒川区、豊島区、文京区、台東区、中央区、新宿区、千代田区、渋谷区、港区、品川区
- 取引態様
- 賃貸仲介業























