パレットM・T ***号室(4階/1LDK)の賃貸物件(賃貸マンション)
愛知県名古屋市中村区にあるパレットM・T ***号室はTVモニタ付インターホン、シューズボックス、最上階、オンライン内見可、即入居可などが特徴です。最寄り駅の名古屋市営地下鉄 東山線本陣駅から徒歩7分です。パレットM・T ***号室の詳細はハウスコム 中村公園店までお気軽にお問い合わせください!
情報更新日:
次回更新予定日:
※次回更新予定日について:お店側では順次空室確認を行っていますが、次回更新予定日までに空室確認が行えない場合には、この物件情報は自動的に削除されます。
パレットM・T ***号室の賃貸物件部屋概要
家賃 |
6.6万円
初期費用を |
|---|---|
共益費 |
4,000円
入居可能時期 |
敷金/礼金 |
1ヶ月 / - |
保証金/ |
- / - |
最寄駅 |
|
所在地 |
愛知県名古屋市中村区高道町 |
部屋番号 |
***号室 |
間取り |
1LDK(洋5.6・LDK11.3) |
専有面積 |
40.34㎡ |
築年数 |
2004年6月(築22年) |
階数 |
4階部分(地上4階建) |
方位・位置 |
南 / 角部屋 |
物件種別 |
賃貸マンション |
構造 |
RC |
駐車場 |
無 |
小学校学区 |
日比津小学校 |
中学校学区 |
日比津中学校 |
他の空き部屋 |
ー |
- 学区データについて
- ※学区データは必ずしも正確とは限りません。詳細に関しては最寄店舗または各自治体の教育委員会に必ずご確認ください。
パレットM・T ***号室の特徴
契約条件
この物件は、2人入居もご契約できます。 礼金が無料なため、初期費用が比較的安くなる傾向にあります。
セキュリティ
この物件の建物には、オートロックが設置されており、来客時には居室内のテレビモニターにて訪問者の顔を確認することができます。
室内設備
女性に嬉しい設備のシャワーの付いている洗面化粧台があります。 洗濯に便利な設備として、室内洗濯機置場があります。
居室状況
居室には、ロフトが設置されており大規模な収納スペースやセパレートされた寝室として活用できます。 お部屋の床は、フローリングとなっており、エアコンが設置されています。 収納スペースとして、基本的な居室にクローゼットを設置、玄関にはシューズボックスがあります。
建物設備共用部分
居室外の専有スペースとして、洗濯物を干すなどの用途として利用できるバルコニーがあります。 駐輪場が利用できます。
周辺施設
この物件の学区は、日比津小学校区・日比津中学校区です。近くには、徒歩9分(652m)でサークルK 本陣通店があります。
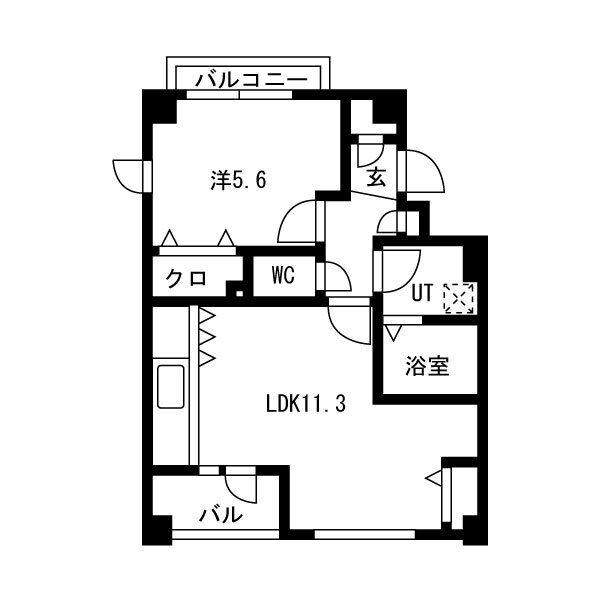
パレットM・T ***号室の間取り
間取り:1LDK
間取詳細:1LDK(洋5.6・LDK11.3)
専有面積:40.34㎡
方位:南
部屋位置:角部屋
パレットM・T ***号室の設備
バス・トイレ
バス・トイレ別
独立洗面台
シャワー付洗面化粧台
玄関
TVモニタ付インターホン
オートロック
収納
クローゼット
シューズボックス
バルコニー
バルコニー
ルーフバルコニー
室内設備
エアコン
フローリング
室内洗濯機置場
ロフト付
位置・立地
2階以上
最上階
角部屋
南向き
インフラ
インターネット可
CATV
BS
CS
都市ガス
建物設備
駐輪場
入居条件
2人入居可
オンライン相談可
オンライン内見可
即入居可
ライフステージ
一人暮らしに人気の設備
カップルに人気の設備
家族に人気の設備
夫婦に人気の設備
三世代で人気の設備
こだわり
日当たり重視
外で子どもと遊びたい
雨の日でも洗濯したい
洋室で暮らしたい
趣味
ガーデニングが好き
パレットM・T ***号室の賃貸契約情報
毎月支払う |
家賃6.6万円/月共益費4,000円/月 |
|---|---|
初期費用 |
敷金1ヶ月 (6.6万円)礼金-保証金-敷引き償却金- |
更新料 |
- |
鍵交換費用 |
11,000円 |
室内清掃費用 |
- |
駐車場料金 |
無 |
損保・ |
借家賠付きの火災保険にご加入いただきます。 |
保証会社 |
加入要 保証会社利用料:初回保証料:月額賃料の50%、月額保証料:月額700円 |
契約期間 |
2年 |
入居可能日 |
即入居可 |
フリーレント期間 |
- |
取引形態 |
一般媒介 |
備考 |
室内清掃費退去時44000円 |
パレットM・T ***号室の建物情報
建物名称 |
パレットM・T |
|---|---|
最寄駅 |
|
所在地 |
愛知県名古屋市中村区高道町 |
階層 |
4階部分(地上4階建) |
構造 |
RC |
築年数 |
2004年6月(築22年) |
駐車場 |
無 |
小学校学区 |
日比津小学校 |
中学校学区 |
日比津中学校 |
- 学区データについて
- ※学区データは必ずしも正確とは限りません。詳細に関しては最寄店舗または各自治体の教育委員会に必ずご確認ください。
無料この物件に問い合わせ
- パレットM・T ***号室

-
6.6万円
(共益費
4,000円)
- 敷
- 1ヶ月
- 礼
- -
- 保
- -
- 償
- -
パレットM・T ***号室の物件のお問い合わせ先・取り扱い店舗
ハウスコム 中村公園店
- アクセス
-
名古屋市営地下鉄 東山線「中村公園駅」徒歩1分
- 住所
- 〒453-0811 愛知県名古屋市中村区太閤通9丁目9 横田ビル 1階
- 営業時間
- 10:00~18:00
- 定休日
- なし(年末年始休業12月25日~1月3日)
- 営業エリア
- 中村区 中川区 西区 中区 港区 海部郡 あま市 清須市
- 取引態様
- 賃貸仲介業



















