グラフィアス西国分寺Ⅲ 201号室(2階/1K)の賃貸物件(賃貸アパート)
東京都国分寺市にあるグラフィアス西国分寺Ⅲ 201号室は追い焚き、浴室乾燥機、バルコニー、2階以上、最上階などが特徴です。最寄り駅の中央本線(JR東日本)西国分寺駅から徒歩2分です。グラフィアス西国分寺Ⅲ 201号室の詳細はハウスコム 武蔵小金井店までお気軽にお問い合わせください!
情報更新日:
次回更新予定日:
※次回更新予定日について:お店側では順次空室確認を行っていますが、次回更新予定日までに空室確認が行えない場合には、この物件情報は自動的に削除されます。
グラフィアス西国分寺Ⅲ 201号室の賃貸物件部屋概要
家賃 |
8万円
初期費用を |
|---|---|
共益費 |
8,000円
入居可能時期 |
敷金/礼金 |
- / - |
保証金/ |
1ヶ月 / 1ヶ月 |
最寄駅 |
|
所在地 |
東京都国分寺市西恋ヶ窪 |
部屋番号 |
201号室 |
間取り |
1K(洋6.3) |
専有面積 |
25.11㎡ |
築年数 |
2018年1月(築9年) |
階数 |
2階部分(地上2階建) |
方位・位置 |
南 / 角部屋 |
物件種別 |
賃貸アパート |
構造 |
木造 |
駐車場 |
無 |
小学校学区 |
第九小学校 |
中学校学区 |
第一中学校 |
他の空き部屋 |
ー |
- 学区データについて
- ※学区データは必ずしも正確とは限りません。詳細に関しては最寄店舗または各自治体の教育委員会に必ずご確認ください。
グラフィアス西国分寺Ⅲ 201号室の特徴
-
一人暮らしに人気の設備

-
カップルに人気の設備

-
家族に人気の設備

-
夫婦に人気の設備

-
三世代で人気の設備

-
日当たり重視

-
外で子どもと遊びたい

-
雨の日でも洗濯したい

-
洋室で暮らしたい

-
オークション・通販が好き

-
ガーデニングが好き

契約条件
この物件は、2人入居もご契約できます。 敷金と礼金が無料なため、初期費用が比較的安くなる傾向にあります。
セキュリティ
この物件の建物には、宅配ボックスが設置されており、来客時には居室内のテレビモニターにて訪問者の顔を確認することができます。
室内設備
システムキッチンには、IHコンロが備え付けられています。 お風呂とトイレは別です。お風呂には、追い焚き機能が備わっています。 トイレは、温水洗浄便座機能付きになります。 女性に嬉しい設備の独立した洗面化粧台があります。 洗濯に便利な設備として、室内洗濯機置場があります。浴室乾燥機も設置されているので、梅雨時の生乾き臭も比較的防ぐことができます。
居室状況
居室には、ロフトが設置されており大規模な収納スペースやセパレートされた寝室として活用できます。 お部屋の床は、フローリングとなっており、エアコンが設置されています。 インターネットも無料で入居後すぐ生活が始められます。 収納スペースとして、基本的な居室にクローゼットがあります。
建物設備共用部分
居室外の専有スペースとして、洗濯物を干すなどの用途として利用できるバルコニーがあります。 建物の共用スペースに、急な外出や不在がちのご家庭の荷物受け取りに便利な宅配ボックスが設置されています。
周辺施設
この物件の学区は、第九小学校区・第一中学校区です。
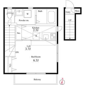
グラフィアス西国分寺Ⅲ 201号室の間取り
間取り:1K
間取詳細:1K(洋6.3)
専有面積:25.11㎡
方位:南
部屋位置:角部屋
グラフィアス西国分寺Ⅲ 201号室の設備
キッチン
システムキッチン
IHコンロ
バス・トイレ
バス・トイレ別
追い焚き
浴室乾燥機
温水洗浄便座
独立洗面台
玄関
TVモニタ付インターホン
宅配ボックス
収納
クローゼット
バルコニー
バルコニー
ルーフバルコニー
室内設備
エアコン
フローリング
室内洗濯機置場
ロフト付
位置・立地
2階以上
最上階
角部屋
南向き
インフラ
インターネット可
CATV
BS
CS
都市ガス
入居条件
2人入居可
ライフステージ
一人暮らしに人気の設備
カップルに人気の設備
家族に人気の設備
夫婦に人気の設備
三世代で人気の設備
こだわり
日当たり重視
外で子どもと遊びたい
雨の日でも洗濯したい
洋室で暮らしたい
趣味
オークション・通販が好き
ガーデニングが好き
お得な条件
インターネット無料
グラフィアス西国分寺Ⅲ 201号室の賃貸契約情報
毎月支払う |
家賃8万円/月共益費8,000円/月 |
|---|---|
初期費用 |
敷金-礼金-保証金1ヶ月敷引き償却金1ヶ月 |
更新料 |
120,000円 |
鍵交換費用 |
- |
室内清掃費用 |
- |
駐車場料金 |
無 |
損保・ |
借家賠付きの火災保険にご加入いただきます。 |
保証会社 |
加入要 保証会社利用料:エポスカード 第1指定:エポス 初回50% 年間一律2万円 第2指定:エムぞう君 初回55%~( |
契約期間 |
2年 |
入居可能日 |
2026年04月 |
フリーレント期間 |
- |
取引形態 |
一般媒介 |
備考 |
駅徒歩2分セコム導入済み |
グラフィアス西国分寺Ⅲ 201号室の建物情報
建物名称 |
グラフィアス西国分寺Ⅲ |
|---|---|
最寄駅 |
|
所在地 |
東京都国分寺市西恋ヶ窪 |
階層 |
2階部分(地上2階建) |
構造 |
木造 |
築年数 |
2018年1月(築9年) |
駐車場 |
無 |
小学校学区 |
第九小学校 |
中学校学区 |
第一中学校 |
- 学区データについて
- ※学区データは必ずしも正確とは限りません。詳細に関しては最寄店舗または各自治体の教育委員会に必ずご確認ください。
無料この物件に問い合わせ
- グラフィアス西国分寺Ⅲ 201号室

-
8万円
(共益費
8,000円)
- 敷
- -
- 礼
- -
- 保
- 1ヶ月
- 償
- 1ヶ月
グラフィアス西国分寺Ⅲ 201号室の物件のお問い合わせ先・取り扱い店舗
ハウスコム 武蔵小金井店
- アクセス
-
中央本線(JR東日本)「武蔵小金井駅」南口徒歩1分
- 住所
- 〒184-0004 東京都小金井市本町6丁目14−45 OSビル 1階
- 営業時間
- 10:00~18:00
- 定休日
- なし
- 営業エリア
- 小金井市、国分寺市、小平市、武蔵野市、三鷹市、府中市、西東京市、国立市
- 取引態様
- 賃貸仲介業















