ミリアレジデンス高円寺 201号室(2階/2LDK)の賃貸物件(賃貸マンション)
東京都杉並区にあるミリアレジデンス高円寺 201号室はシステムキッチン、バス・トイレ別、浴室乾燥機、TVモニタ付インターホン、オートロックなどが特徴です。最寄り駅の東京メトロ 丸ノ内線新高円寺駅から徒歩5分です。ミリアレジデンス高円寺 201号室の詳細はハウスコム 荻窪店までお気軽にお問い合わせください!
情報更新日:
次回更新予定日:
※次回更新予定日について:お店側では順次空室確認を行っていますが、次回更新予定日までに空室確認が行えない場合には、この物件情報は自動的に削除されます。
ミリアレジデンス高円寺 201号室の賃貸物件部屋概要
家賃 |
23.5万円
初期費用を |
|---|---|
共益費 |
20,000円
入居可能時期 |
敷金/礼金 |
- / - |
保証金/ |
- / - |
最寄駅 |
|
所在地 |
東京都杉並区高円寺南 |
部屋番号 |
201号室 |
間取り |
2LDK(LDK10.8・洋5.3・洋4.8) |
専有面積 |
49.80㎡ |
築年数 |
1992年9月(築34年) |
階数 |
2階部分(地上7階建) |
方位・位置 |
ー / 角部屋 |
物件種別 |
賃貸マンション |
構造 |
RC |
駐車場 |
- |
小学校学区 |
高円寺学園 |
中学校学区 |
高円寺中学校 |
他の空き部屋 |
ー |
- 学区データについて
- ※学区データは必ずしも正確とは限りません。詳細に関しては最寄店舗または各自治体の教育委員会に必ずご確認ください。
ミリアレジデンス高円寺 201号室の特徴
-
一人暮らしに人気の設備

-
カップルに人気の設備

-
家族に人気の設備

-
夫婦に人気の設備

-
三世代で人気の設備

-
外で子どもと遊びたい

-
雨の日でも洗濯したい

-
洋室で暮らしたい

-
自炊が多めなあなたに

-
ガーデニングが好き

契約条件
この物件は、2人入居もご契約できます。 ペットの飼育もご相談ください。 また、ご契約時に保証人は不要です。 敷金と礼金が無料なため、初期費用が比較的安くなる傾向にあります。
セキュリティ
この物件の建物には、オートロックや宅配ボックスが設置されており、来客時には居室内のテレビモニターにて訪問者の顔を確認することができます。
室内設備
システムキッチンには、ガスコンロが設置されており、キッチン設備として食洗機が備え付けられています。 お風呂とトイレは別です。お風呂には、追い焚き機能が備わっています。 トイレは、温水洗浄便座機能付きになります。 女性に嬉しい設備のシャワーの付いている洗面化粧台があります。 洗濯に便利な設備として、室内洗濯機置場があります。浴室乾燥機も設置されているので、梅雨時の生乾き臭も比較的防ぐことができます。
居室状況
お部屋の床は、フローリングとなっており、エアコンが設置されています。 収納スペースとして、基本的な居室にクローゼットを設置、玄関にはシューズボックスがあります。
建物設備共用部分
居室外の専有スペースとして、洗濯物を干すなどの用途として利用できるバルコニーがあります。 建物の共用スペースに、急な外出や不在がちのご家庭の荷物受け取りに便利な宅配ボックスが設置されています。
周辺施設
この物件の学区は、高円寺学園区・高円寺中学校区です。
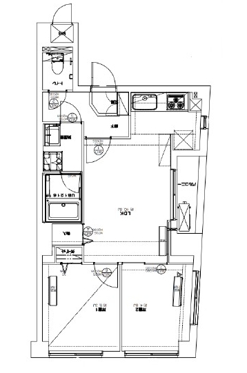
ミリアレジデンス高円寺 201号室の間取り
間取り:2LDK
間取詳細:2LDK(LDK10.8・洋5.3・洋4.8)
専有面積:49.80㎡
方位:ー
部屋位置:角部屋
ミリアレジデンス高円寺 201号室の設備
キッチン
システムキッチン
ガスコンロ
食洗機
バス・トイレ
バス・トイレ別
追い焚き
浴室乾燥機
温水洗浄便座
独立洗面台
シャワー付洗面化粧台
玄関
TVモニタ付インターホン
オートロック
宅配ボックス
収納
クローゼット
シューズボックス
バルコニー
バルコニー
ルーフバルコニー
室内設備
エアコン
フローリング
室内洗濯機置場
位置・立地
2階以上
角部屋
インフラ
インターネット可
都市ガス
入居条件
ペット可・相談
2人入居可
保証人不要
ライフステージ
一人暮らしに人気の設備
カップルに人気の設備
家族に人気の設備
夫婦に人気の設備
三世代で人気の設備
こだわり
外で子どもと遊びたい
雨の日でも洗濯したい
洋室で暮らしたい
自炊が多めなあなたに
趣味
ガーデニングが好き
ミリアレジデンス高円寺 201号室の賃貸契約情報
毎月支払う |
家賃23.5万円/月共益費20,000円/月 |
|---|---|
初期費用 |
敷金-礼金-保証金-敷引き償却金- |
更新料 |
235,000円 |
鍵交換費用 |
27,500円 |
室内清掃費用 |
- |
24時間入居サポート |
19,800円 |
駐車場料金 |
- |
損保・ |
借家賠付きの火災保険にご加入いただきます。 |
保証会社 |
加入要 保証会社利用料:初回保証料 賃料総額の40% |
契約期間 |
定期借家 3年 |
入居可能日 |
相談 |
フリーレント期間 |
- |
取引形態 |
一般媒介 |
備考 |
短期解約違約金あり |
ミリアレジデンス高円寺 201号室の建物情報
建物名称 |
ミリアレジデンス高円寺 |
|---|---|
最寄駅 |
|
所在地 |
東京都杉並区高円寺南 |
階層 |
2階部分(地上7階建) |
構造 |
RC |
築年数 |
1992年9月(築34年) |
駐車場 |
- |
小学校学区 |
高円寺学園 |
中学校学区 |
高円寺中学校 |
- 学区データについて
- ※学区データは必ずしも正確とは限りません。詳細に関しては最寄店舗または各自治体の教育委員会に必ずご確認ください。
無料この物件に問い合わせ
- ミリアレジデンス高円寺 201号室

-
23.5万円
(共益費
20,000円)
- 敷
- -
- 礼
- -
- 保
- -
- 償
- -
ミリアレジデンス高円寺 201号室の物件のお問い合わせ先・取り扱い店舗
ハウスコム 荻窪店
- アクセス
-
中央本線(JR東日本)「荻窪駅」徒歩1分
- 住所
- 〒167-0051 東京都杉並区荻窪5-28-12 サカエビル8階
- 営業時間
- 10:00~18:00
- 定休日
- 水曜日
- 営業エリア
- 杉並区,中野区、練馬区、武蔵野市
- 取引態様
- 賃貸仲介業















