リブリ・立花 ***号室(2階/1K)の賃貸物件(賃貸マンション)
埼玉県さいたま市浦和区にあるリブリ・立花 ***号室はバス・トイレ別、ルーフバルコニー、エアコン、インターネット可、保証人不要などが特徴です。最寄り駅の京浜東北・根岸線北浦和駅から徒歩2分です。リブリ・立花 ***号室の詳細はハウスコム 浦和店までお気軽にお問い合わせください!
情報更新日:
次回更新予定日:
※次回更新予定日について:お店側では順次空室確認を行っていますが、次回更新予定日までに空室確認が行えない場合には、この物件情報は自動的に削除されます。
リブリ・立花 ***号室の賃貸物件部屋概要
家賃 |
8.1万円
初期費用を |
|---|---|
共益費 |
4,000円
入居可能時期 |
敷金/礼金 |
- / 1.5ヶ月 |
保証金/ |
- / - |
最寄駅 |
|
所在地 |
埼玉県さいたま市浦和区常盤 |
部屋番号 |
***号室 |
間取り |
1K(洋7) |
専有面積 |
23.18㎡ |
築年数 |
2013年2月(築13年) |
階数 |
2階部分(地上3階建) |
方位・位置 |
南 / 角部屋 |
物件種別 |
賃貸マンション |
構造 |
鉄骨造 |
駐車場 |
無 |
小学校学区 |
常盤小学校 |
中学校学区 |
常盤中学校 |
他の空き部屋 |
ー |
- 学区データについて
- ※学区データは必ずしも正確とは限りません。詳細に関しては最寄店舗または各自治体の教育委員会に必ずご確認ください。
リブリ・立花 ***号室の特徴
-
一人暮らしに人気の設備

-
カップルに人気の設備

-
家族に人気の設備

-
夫婦に人気の設備

-
三世代で人気の設備

-
外で子どもと遊びたい

-
雨の日でも洗濯したい

-
洋室で暮らしたい

-
服やおしゃれが好き

-
ガーデニングが好き

契約条件
ご契約時に保証人は不要です。 敷金が無料なため、初期費用が比較的安くなる傾向にあります。
セキュリティ
来客時には居室内のテレビモニターにて訪問者の顔を確認することができます。
室内設備
システムキッチンには、2つ以上のガスコンロが備え付けられています。 トイレは、温水洗浄便座機能付きになります。 女性に嬉しい設備のシャワーの付いている洗面化粧台があります。 洗濯に便利な設備として、室内洗濯機置場があります。浴室乾燥機も設置されているので、梅雨時の生乾き臭も比較的防ぐことができます。
居室状況
お部屋の床は、フローリングとなっており、エアコンが設置されています。 照明器具が備え付けられており、インターネットも無料で入居後すぐ生活が始められます。 収納スペースとして、基本的な居室にクローゼットを設置、通常よりも収納力の高いウォークインクローゼット、玄関にはシューズボックスがあります。
建物設備共用部分
居室外の専有スペースとして、洗濯物を干すなどの用途として利用できるバルコニーがあります。 駐輪場が利用できます。
周辺施設
この物件の学区は、常盤小学校区・常盤中学校区です。
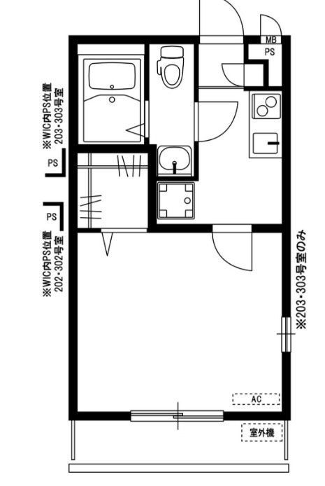
リブリ・立花 ***号室の間取り
間取り:1K
間取詳細:1K(洋7)
専有面積:23.18㎡
方位:南
部屋位置:角部屋
リブリ・立花 ***号室の設備
キッチン
システムキッチン
ガスコンロ
ガスコンロ二口以上
バス・トイレ
バス・トイレ別
浴室乾燥機
温水洗浄便座
独立洗面台
シャワー付洗面化粧台
玄関
TVモニタ付インターホン
収納
クローゼット
ウォークインクローゼット
シューズボックス
バルコニー
バルコニー
ルーフバルコニー
室内設備
エアコン
フローリング
室内洗濯機置場
照明器具付
位置・立地
2階以上
角部屋
南向き
インフラ
インターネット可
CATV
都市ガス
建物設備
駐輪場
入居条件
オンライン相談可
オンライン内見可
保証人不要
ライフステージ
一人暮らしに人気の設備
カップルに人気の設備
家族に人気の設備
夫婦に人気の設備
三世代で人気の設備
こだわり
外で子どもと遊びたい
雨の日でも洗濯したい
洋室で暮らしたい
趣味
服やおしゃれが好き
ガーデニングが好き
お得な条件
インターネット無料
リブリ・立花 ***号室の賃貸契約情報
毎月支払う |
家賃8.1万円/月共益費4,000円/月 |
|---|---|
初期費用 |
敷金-礼金1.5ヶ月 (12.15万円)保証金-敷引き償却金- |
更新料 |
- |
鍵交換費用 |
24,200円 |
室内清掃費用 |
36,300円 |
室内消毒 |
16,500円 |
リブリクラブ入会費 |
7,700円 |
駐車場料金 |
無 |
損保・ |
借家賠付きの火災保険にご加入いただきます。 |
保証会社 |
加入要 保証会社利用料:初回100%、月額1.1%、引落手数料330円 |
契約期間 |
定期借家 2年 |
入居可能日 |
2026年03月中旬 |
フリーレント期間 |
- |
取引形態 |
一般媒介 |
備考 |
再契約料:新賃料の1か月 1年未満解約の場合、賃料管理費1か月分が違約金 |
リブリ・立花 ***号室の建物情報
建物名称 |
リブリ・立花 |
|---|---|
最寄駅 |
|
所在地 |
埼玉県さいたま市浦和区常盤 |
階層 |
2階部分(地上3階建) |
構造 |
鉄骨造 |
築年数 |
2013年2月(築13年) |
駐車場 |
無 |
小学校学区 |
常盤小学校 |
中学校学区 |
常盤中学校 |
- 学区データについて
- ※学区データは必ずしも正確とは限りません。詳細に関しては最寄店舗または各自治体の教育委員会に必ずご確認ください。
無料この物件に問い合わせ
- リブリ・立花 ***号室

-
8.1万円
(共益費
4,000円)
- 敷
- -
- 礼
- 1.5ヶ月
- 保
- -
- 償
- -
リブリ・立花 ***号室の物件のお問い合わせ先・取り扱い店舗
ハウスコム 浦和店
- アクセス
-
京浜東北・根岸線「浦和駅」西口徒歩2分
- 住所
- 〒330-0062 埼玉県さいたま市浦和区仲町1丁目2−10
- 営業時間
- 10:00~18:00
- 定休日
- 水曜日
- 営業エリア
- さいたま市浦和区,さいたま市南区,さいたま市緑区,さいたま市中央区,さいたま市桜区,さいたま市大宮区,川口市
- 取引態様
- 賃貸仲介業
























