パルティール城西 1201号室(12階/1K)の賃貸物件(賃貸マンション)
愛知県名古屋市西区にあるパルティール城西 1201号室はシステムキッチン、独立洗面台、南向き、インターネット可、CATVなどが特徴です。最寄り駅の名古屋市営地下鉄 鶴舞線浄心駅から徒歩1分です。パルティール城西 1201号室の詳細はハウスコム 中村公園店までお気軽にお問い合わせください!
情報更新日:
次回更新予定日:
※次回更新予定日について:お店側では順次空室確認を行っていますが、次回更新予定日までに空室確認が行えない場合には、この物件情報は自動的に削除されます。
パルティール城西 1201号室の賃貸物件部屋概要
家賃 |
5.5万円
初期費用を |
|---|---|
共益費 |
5,000円
入居可能時期 |
敷金/礼金 |
- / - |
保証金/ |
- / - |
最寄駅 |
|
所在地 |
愛知県名古屋市西区花の木 |
部屋番号 |
1201号室 |
間取り |
1K |
専有面積 |
20.37㎡ |
築年数 |
2010年10月(築16年) |
階数 |
12階部分(地上12階建) |
方位・位置 |
南 / 角部屋 |
物件種別 |
賃貸マンション |
構造 |
RC |
駐車場 |
空無し |
小学校学区 |
城西小学校 |
中学校学区 |
浄心中学校 |
他の空き部屋 |
1102号室 1106号室 1206号室 701号室 805号室 |
- 学区データについて
- ※学区データは必ずしも正確とは限りません。詳細に関しては最寄店舗または各自治体の教育委員会に必ずご確認ください。
パルティール城西 1201号室の特徴
契約条件
敷金と礼金が無料なため、初期費用が比較的安くなる傾向にあります。
セキュリティ
この物件の建物には、オートロックや防犯カメラや宅配ボックスが設置されており、来客時には居室内のテレビモニターにて訪問者の顔を確認することができます。
室内設備
システムキッチンには、2つ以上のガスコンロが備え付けられています。 女性に嬉しい設備の独立した洗面化粧台があります。 洗濯に便利な設備として、室内洗濯機置場があります。
居室状況
エアコンが設置されています。 収納スペースとして、玄関にはシューズボックスがあります。
建物設備共用部分
建物の共用スペースに、日々の出入に便利なエレベーターや、いざという時の防犯カメラや、急な外出や不在がちのご家庭の荷物受け取りに便利な宅配ボックスが設置されています。 駐輪場が利用できます。
周辺施設
この物件の学区は、城西小学校区・浄心中学校区です。
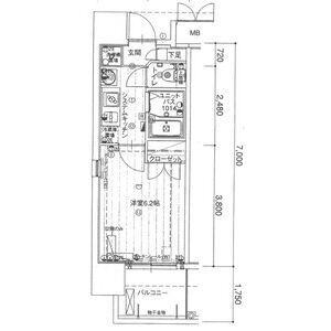
パルティール城西 1201号室の間取り
間取り:1K
間取詳細:1K
専有面積:20.37㎡
方位:南
部屋位置:角部屋
パルティール城西 1201号室の設備
キッチン
システムキッチン
ガスコンロ
ガスコンロ二口以上
バス・トイレ
バス・トイレ別
独立洗面台
玄関
TVモニタ付インターホン
オートロック
宅配ボックス
収納
シューズボックス
室内設備
エアコン
室内洗濯機置場
位置・立地
2階以上
最上階
角部屋
南向き
インフラ
インターネット可
CATV
建物設備
エレベーター
防犯カメラ
駐輪場
入居条件
即入居可
ライフステージ
一人暮らしに人気の設備
カップルに人気の設備
家族に人気の設備
夫婦に人気の設備
三世代で人気の設備
こだわり
日当たり重視
セキュリティ対策重視
雨の日でも洗濯したい
寝るためだけの部屋
パルティール城西 1201号室の賃貸契約情報
毎月支払う |
家賃5.5万円/月共益費5,000円/月 |
|---|---|
初期費用 |
敷金-礼金-保証金-敷引き償却金- |
更新料 |
55,000円 |
鍵交換費用 |
44,000円 |
室内清掃費用 |
- |
24時間安心サポート |
16,500円 |
基本クリーニング費 |
55,000円 |
エアコンクリーニング費用 |
16,500円 |
駐車場料金 |
空無し |
損保・ |
借家賠付きの火災保険にご加入いただきます。 |
保証会社 |
加入要 保証会社:エポスカード 保証会社利用料:初回総賃料50% 月額保証料1% |
契約期間 |
- |
入居可能日 |
即入居可 |
フリーレント期間 |
- |
取引形態 |
一般媒介 |
備考 |
- |
パルティール城西 1201号室の建物情報
建物名称 |
パルティール城西 |
|---|---|
最寄駅 |
|
所在地 |
愛知県名古屋市西区花の木 |
階層 |
12階部分(地上12階建) |
構造 |
RC |
築年数 |
2010年10月(築16年) |
駐車場 |
空無し |
小学校学区 |
城西小学校 |
中学校学区 |
浄心中学校 |
- 学区データについて
- ※学区データは必ずしも正確とは限りません。詳細に関しては最寄店舗または各自治体の教育委員会に必ずご確認ください。
無料この物件に問い合わせ
- パルティール城西 1201号室

-
5.5万円
(共益費
5,000円)
- 敷
- -
- 礼
- -
- 保
- -
- 償
- -
パルティール城西 1201号室の物件のお問い合わせ先・取り扱い店舗
ハウスコム 中村公園店
- アクセス
-
名古屋市営地下鉄 東山線「中村公園駅」徒歩1分
- 住所
- 〒453-0811 愛知県名古屋市中村区太閤通9丁目9 横田ビル 1階
- 営業時間
- 10:00~18:00
- 定休日
- なし
- 営業エリア
- 中村区 中川区 西区 中区 港区 海部郡 あま市 清須市
- 取引態様
- 賃貸仲介業










