杉本マンション 205号室(2階/1R)の賃貸物件(賃貸マンション)
東京都世田谷区にある杉本マンション 205号室はエアコン、照明器具付、角部屋、都市ガス、オンライン内見可などが特徴です。最寄り駅の東急田園都市線桜新町駅から徒歩19分です。杉本マンション 205号室の詳細はハウスコム 桜新町店までお気軽にお問い合わせください!
情報更新日:
次回更新予定日:
※次回更新予定日について:お店側では順次空室確認を行っていますが、次回更新予定日までに空室確認が行えない場合には、この物件情報は自動的に削除されます。
杉本マンション 205号室の賃貸物件部屋概要
家賃 |
5.7万円
初期費用を |
|---|---|
共益費 |
1,000円
入居可能時期 |
敷金/礼金 |
1ヶ月 / - |
保証金/ |
- / - |
最寄駅 |
|
所在地 |
東京都世田谷区世田谷 |
部屋番号 |
205号室 |
間取り |
1R(洋8) |
専有面積 |
19.00㎡ |
築年数 |
1985年4月(築41年) |
階数 |
2階部分(地上4階建) |
方位・位置 |
北 / 角部屋 |
物件種別 |
賃貸マンション |
構造 |
鉄骨造 |
駐車場 |
- |
小学校学区 |
桜小学校 |
中学校学区 |
桜木中学校 |
他の空き部屋 |
ー |
- 学区データについて
- ※学区データは必ずしも正確とは限りません。詳細に関しては最寄店舗または各自治体の教育委員会に必ずご確認ください。
杉本マンション 205号室の特徴
契約条件
礼金が無料なため、初期費用が比較的安くなる傾向にあります。
室内設備
キッチン設備として冷蔵庫が備え付けられています。
居室状況
お部屋の床は、フローリングとなっており、エアコンが設置されています。 照明器具が備え付けられており、入居後すぐ生活が始められます。
建物設備共用部分
居室外の専有スペースとして、洗濯物を干すなどの用途として利用できるバルコニーがあります。 駐輪場が利用できます。
周辺施設
この物件の学区は、桜小学校区・桜木中学校区です。
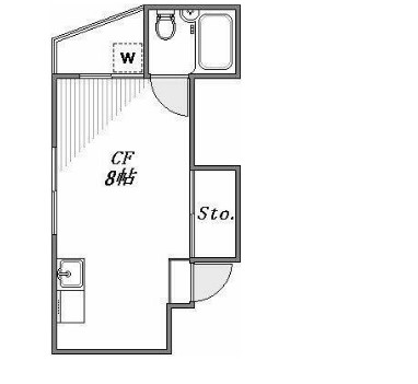
杉本マンション 205号室の間取り
間取り:1R
間取詳細:1R(洋8)
専有面積:19.00㎡
方位:北
部屋位置:角部屋
杉本マンション 205号室の設備
キッチン
冷蔵庫付
バルコニー
バルコニー
ルーフバルコニー
室内設備
エアコン
フローリング
照明器具付
位置・立地
2階以上
角部屋
インフラ
インターネット可
都市ガス
建物設備
駐輪場
入居条件
オンライン相談可
オンライン内見可
即入居可
ライフステージ
一人暮らしに人気の設備
家族に人気の設備
夫婦に人気の設備
三世代で人気の設備
こだわり
外で子どもと遊びたい
洋室で暮らしたい
趣味
ガーデニングが好き
杉本マンション 205号室の賃貸契約情報
毎月支払う |
家賃5.7万円/月共益費1,000円/月 |
|---|---|
初期費用 |
敷金1ヶ月 (5.7万円)礼金-保証金-敷引き償却金- |
更新料 |
57,000円 |
鍵交換費用 |
20,900円 |
室内清掃費用 |
- |
入居応援サポート |
16,500円 |
駐車場料金 |
- |
損保・ |
借家賠付きの火災保険にご加入いただきます。 |
保証会社 |
加入要 保証会社利用料:初回保証料:賃料総額の50% 年間更新料1万円 |
契約期間 |
2年 |
入居可能日 |
即入居可 |
フリーレント期間 |
- |
取引形態 |
一般媒介 |
備考 |
- |
杉本マンション 205号室の建物情報
建物名称 |
杉本マンション |
|---|---|
最寄駅 |
|
所在地 |
東京都世田谷区世田谷 |
階層 |
2階部分(地上4階建) |
構造 |
鉄骨造 |
築年数 |
1985年4月(築41年) |
駐車場 |
- |
小学校学区 |
桜小学校 |
中学校学区 |
桜木中学校 |
1/11 外観
- 学区データについて
- ※学区データは必ずしも正確とは限りません。詳細に関しては最寄店舗または各自治体の教育委員会に必ずご確認ください。
無料この物件に問い合わせ
- 杉本マンション 205号室

-
5.7万円
(共益費
1,000円)
- 敷
- 1ヶ月
- 礼
- -
- 保
- -
- 償
- -
杉本マンション 205号室の物件のお問い合わせ先・取り扱い店舗
ハウスコム 桜新町店
土日営業
- アクセス
-
東急田園都市線「桜新町駅」徒歩3分
- 住所
- 〒154-0015 東京都世田谷区桜新町1丁目17−13 GBJ桜新町ビル3階
- 営業時間
- 10:00~18:00
- 定休日
- 水曜日
- 営業エリア
- 世田谷区、目黒区、神奈川県
- 取引態様
- 賃貸仲介業
お問い合わせNo. HC1-592268-205-0016





























