ロゼフォレスト 202号室(2階/1R)の賃貸物件(賃貸アパート)
東京都足立区にあるロゼフォレスト 202号室は浴室乾燥機、独立洗面台、エアコン、2階以上、オンライン相談可などが特徴です。最寄り駅のつくばエクスプレス青井駅から徒歩9分です。ロゼフォレスト 202号室の詳細はハウスコム 綾瀬店までお気軽にお問い合わせください!
情報更新日:
次回更新予定日:
※次回更新予定日について:お店側では順次空室確認を行っていますが、次回更新予定日までに空室確認が行えない場合には、この物件情報は自動的に削除されます。
ロゼフォレスト 202号室の賃貸物件部屋概要
家賃 |
6.4万円
初期費用を |
|---|---|
共益費 |
4,000円
入居可能時期 |
敷金/礼金 |
- / 1ヶ月 |
保証金/ |
- / - |
最寄駅 |
|
所在地 |
東京都足立区青井 |
部屋番号 |
202号室 |
間取り |
1R |
専有面積 |
15.65㎡ |
築年数 |
新築 |
階数 |
2階部分(地上2階建) |
方位・位置 |
北 / その他 |
物件種別 |
賃貸アパート |
構造 |
木造 |
駐車場 |
無 |
小学校学区 |
ー |
中学校学区 |
ー |
他の空き部屋 |
101号室 102号室 103号室 201号室 203号室 |
- 学区データについて
- ※学区データは必ずしも正確とは限りません。詳細に関しては最寄店舗または各自治体の教育委員会に必ずご確認ください。
ロゼフォレスト 202号室の特徴
契約条件
ご契約時に保証人は不要です。 敷金が無料なため、初期費用が比較的安くなる傾向にあります。
セキュリティ
この物件の建物には、防犯カメラや宅配ボックスが設置されており、来客時には居室内のテレビモニターにて訪問者の顔を確認することができます。
室内設備
システムキッチンには、2つ以上のガスコンロが備え付けられています。 トイレは、温水洗浄便座機能付きになります。 女性に嬉しい設備のシャワーの付いている洗面化粧台があります。 洗濯に便利な設備として、室内洗濯機置場があります。浴室乾燥機も設置されているので、梅雨時の生乾き臭も比較的防ぐことができます。
居室状況
お部屋の床は、フローリングとなっており、エアコンが設置されています。 インターネットも無料で入居後すぐ生活が始められます。
建物設備共用部分
建物の共用スペースに、いざという時の防犯カメラや、急な外出や不在がちのご家庭の荷物受け取りに便利な宅配ボックスが設置されています。
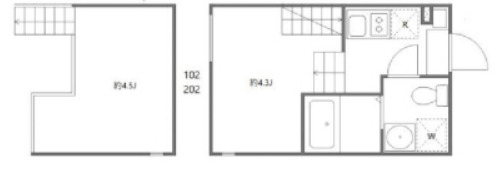
ロゼフォレスト 202号室の間取り
間取り:1R
間取詳細:1R
専有面積:15.65㎡
方位:北
部屋位置:その他
ロゼフォレスト 202号室の設備
キッチン
システムキッチン
ガスコンロ
ガスコンロ二口以上
バス・トイレ
バス・トイレ別
浴室乾燥機
温水洗浄便座
独立洗面台
シャワー付洗面化粧台
玄関
TVモニタ付インターホン
宅配ボックス
室内設備
エアコン
フローリング
室内洗濯機置場
デザイナーズ
位置・立地
2階以上
最上階
インフラ
インターネット可
プロパンガス
建物設備
防犯カメラ
入居条件
オンライン相談可
オンライン内見可
保証人不要
ライフステージ
一人暮らしに人気の設備
カップルに人気の設備
家族に人気の設備
夫婦に人気の設備
三世代で人気の設備
こだわり
雨の日でも洗濯したい
洋室で暮らしたい
趣味
オークション・通販が好き
お得な条件
インターネット無料
ロゼフォレスト 202号室の賃貸契約情報
毎月支払う |
家賃6.4万円/月共益費4,000円/月 |
|---|---|
初期費用 |
敷金-礼金1ヶ月 (6.4万円)保証金-敷引き償却金- |
更新料 |
96,000円 |
鍵交換費用 |
- |
室内清掃費用 |
60,500円 |
プレミアデスク |
22,000円 |
駐車場料金 |
無 |
損保・ |
借家賠付きの火災保険にご加入いただきます。 |
保証会社 |
加入要 保証会社利用料:初回保証料:50% 更新時:15000円/年 |
契約期間 |
2年 |
入居可能日 |
2026年03月上旬 |
フリーレント期間 |
- |
取引形態 |
一般媒介 |
備考 |
短期解約違約金有 |
ロゼフォレスト 202号室の建物情報
建物名称 |
ロゼフォレスト |
|---|---|
最寄駅 |
|
所在地 |
東京都足立区青井 |
階層 |
2階部分(地上2階建) |
構造 |
木造 |
築年数 |
新築 |
駐車場 |
無 |
小学校学区 |
ー |
中学校学区 |
ー |
- 学区データについて
- ※学区データは必ずしも正確とは限りません。詳細に関しては最寄店舗または各自治体の教育委員会に必ずご確認ください。
無料この物件に問い合わせ
- ロゼフォレスト 202号室

-
6.4万円
(共益費
4,000円)
- 敷
- -
- 礼
- 1ヶ月
- 保
- -
- 償
- -
ロゼフォレスト 202号室の物件のお問い合わせ先・取り扱い店舗
ハウスコム 綾瀬店
- アクセス
-
東京メトロ 千代田線「綾瀬駅」西口徒歩1分
常磐線各駅停車(千代田線直通)「綾瀬駅」西口徒歩1分
- 住所
- 〒120-0005 東京都足立区綾瀬4丁目7−5 石崎ビル 1階
- 営業時間
- 10:00~18:00
- 定休日
- 水曜日
- 営業エリア
- 足立区・葛飾区・八潮市・三郷市・松戸市
- 取引態様
- 賃貸仲介業













