テラス祖師ヶ谷大蔵 0102号室(1階/1R)の賃貸物件(賃貸アパート)
東京都世田谷区にあるテラス祖師ヶ谷大蔵 0102号室は宅配ボックス、フローリング、1階、インターネット可、プロパンガスなどが特徴です。最寄り駅の小田急小田原線祖師ヶ谷大蔵駅から徒歩10分です。テラス祖師ヶ谷大蔵 0102号室の詳細はハウスコム 登戸店までお気軽にお問い合わせください!
情報更新日:
次回更新予定日:
※次回更新予定日について:お店側では順次空室確認を行っていますが、次回更新予定日までに空室確認が行えない場合には、この物件情報は自動的に削除されます。
テラス祖師ヶ谷大蔵 0102号室の賃貸物件部屋概要
家賃 |
7.5万円
初期費用を |
|---|---|
共益費 |
4,000円
入居可能時期 |
敷金/礼金 |
- / 1ヶ月 |
保証金/ |
- / - |
最寄駅 |
|
所在地 |
東京都世田谷区祖師谷 |
部屋番号 |
0102号室 |
間取り |
1R(洋5.5・他3.4) |
専有面積 |
12.68㎡ |
築年数 |
新築 |
階数 |
1階部分(地上2階建) |
方位・位置 |
東 / その他 |
物件種別 |
賃貸アパート |
構造 |
木造 |
駐車場 |
- |
小学校学区 |
祖師谷小学校 |
中学校学区 |
千歳中学校 |
他の空き部屋 |
0101号室 0103号室 0105号室 0106号室 0201号室 0202号室 0203号室 0205号室 101号室 102号室 103号室 105号室 202号室 203号室 205号室 |
- 学区データについて
- ※学区データは必ずしも正確とは限りません。詳細に関しては最寄店舗または各自治体の教育委員会に必ずご確認ください。
テラス祖師ヶ谷大蔵 0102号室の特徴
契約条件
敷金が無料なため、初期費用が比較的安くなる傾向にあります。
セキュリティ
この物件の建物には、防犯カメラや宅配ボックスが設置されております。
室内設備
ガスコンロが備え付けられています。 女性に嬉しい設備の独立した洗面化粧台があります。 洗濯に便利な設備として、室内洗濯機置場があります。
居室状況
お部屋の床は、フローリングとなっており、エアコンが設置されています。 インターネットも無料で入居後すぐ生活が始められます。 収納スペースとして、玄関にはシューズボックスがあります。
建物設備共用部分
建物の共用スペースに、いざという時の防犯カメラや、急な外出や不在がちのご家庭の荷物受け取りに便利な宅配ボックスが設置されています。
周辺施設
この物件の学区は、祖師谷小学校区・千歳中学校区です。
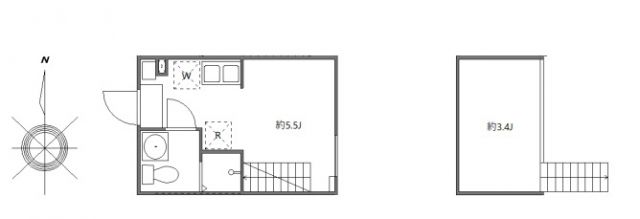
テラス祖師ヶ谷大蔵 0102号室の間取り
間取り:1R
間取詳細:1R(洋5.5・他3.4)
専有面積:12.68㎡
方位:東
部屋位置:その他
テラス祖師ヶ谷大蔵 0102号室の設備
キッチン
ガスコンロ
バス・トイレ
独立洗面台
玄関
宅配ボックス
収納
シューズボックス
室内設備
エアコン
フローリング
室内洗濯機置場
位置・立地
1階
インフラ
インターネット可
プロパンガス
建物設備
防犯カメラ
ライフステージ
一人暮らしに人気の設備
カップルに人気の設備
家族に人気の設備
夫婦に人気の設備
三世代で人気の設備
こだわり
雨の日でも洗濯したい
洋室で暮らしたい
趣味
オークション・通販が好き
お得な条件
インターネット無料
テラス祖師ヶ谷大蔵 0102号室の賃貸契約情報
毎月支払う |
家賃7.5万円/月共益費4,000円/月 |
|---|---|
初期費用 |
敷金-礼金1ヶ月 (7.5万円)保証金-敷引き償却金- |
更新料 |
112,500円 |
鍵交換費用 |
- |
室内清掃費用 |
- |
プレミアデスク(2年/税込) |
22,000円 |
契約時ルームクリーニング費用(税込) |
60,500円 |
町内会費/月額 |
300円 |
駐車場料金 |
- |
損保・ |
借家賠付きの火災保険にご加入いただきます。 |
保証会社 |
加入要 保証会社利用料:【シノケン】月額総賃料の50%~(最低保証料5万円)/次年度以降15000円~※引落とし手数料660円(税込)※別紙申込書有。弊社HP上の申込書タブより申込書をダウンロードし記入の上アップロード下 |
契約期間 |
2年 |
入居可能日 |
2026年03月 |
フリーレント期間 |
- |
取引形態 |
一般媒介 |
備考 |
- |
テラス祖師ヶ谷大蔵 0102号室の建物情報
建物名称 |
テラス祖師ヶ谷大蔵 |
|---|---|
最寄駅 |
|
所在地 |
東京都世田谷区祖師谷 |
階層 |
1階部分(地上2階建) |
構造 |
木造 |
築年数 |
新築 |
駐車場 |
- |
小学校学区 |
祖師谷小学校 |
中学校学区 |
千歳中学校 |
- 学区データについて
- ※学区データは必ずしも正確とは限りません。詳細に関しては最寄店舗または各自治体の教育委員会に必ずご確認ください。
無料この物件に問い合わせ
- テラス祖師ヶ谷大蔵 0102号室

-
7.5万円
(共益費
4,000円)
- 敷
- -
- 礼
- 1ヶ月
- 保
- -
- 償
- -
テラス祖師ヶ谷大蔵 0102号室の物件のお問い合わせ先・取り扱い店舗
ハウスコム 登戸店
- アクセス
-
小田急小田原線「登戸駅」徒歩2分
南武線「登戸駅」徒歩1分
- 住所
- 〒214-0014 神奈川県川崎市多摩区登戸3414-2 DESIRE登戸3階
- 営業時間
- 10:00~18:00
- 定休日
- 水曜日
- 営業エリア
- 神奈川県川崎市(多摩区・麻生区・高津区)、東京都狛江市・稲城市・調布市
- 取引態様
- 賃貸仲介業








