KEIAI RESIDENCE 西八王子Ⅲ 103号室(1階/1LDK)の賃貸物件(賃貸アパート)
東京都八王子市にあるKEIAI RESIDENCE 西八王子Ⅲ 103号室はカウンターキッチン、ガスコンロ、独立洗面台、角部屋、学生限定・歓迎などが特徴です。最寄り駅の中央本線(JR東日本)西八王子駅から徒歩8分です。KEIAI RESIDENCE 西八王子Ⅲ 103号室の詳細はハウスコム 八王子駅前店までお気軽にお問い合わせください!
情報更新日:
次回更新予定日:
※次回更新予定日について:お店側では順次空室確認を行っていますが、次回更新予定日までに空室確認が行えない場合には、この物件情報は自動的に削除されます。
KEIAI RESIDENCE 西八王子Ⅲ 103号室の賃貸物件部屋概要
家賃 |
8.4万円
初期費用を |
|---|---|
共益費 |
3,500円
入居可能時期 |
敷金/礼金 |
- / 1ヶ月 |
保証金/ |
- / - |
最寄駅 |
|
所在地 |
東京都八王子市千人町 |
部屋番号 |
103号室 |
間取り |
1LDK(洋4.9・LDK10.1) |
専有面積 |
36.38㎡ |
築年数 |
新築 |
階数 |
1階部分(地上3階建) |
方位・位置 |
北 / 角部屋 |
物件種別 |
賃貸アパート |
構造 |
木造 |
駐車場 |
無 |
小学校学区 |
ー |
中学校学区 |
ー |
他の空き部屋 |
101号室 102号室 201号室 202号室 203号室 301号室 302号室 303号室 |
- 学区データについて
- ※学区データは必ずしも正確とは限りません。詳細に関しては最寄店舗または各自治体の教育委員会に必ずご確認ください。
KEIAI RESIDENCE 西八王子Ⅲ 103号室の特徴
-
一人暮らしに人気の設備

-
カップルに人気の設備

-
家族に人気の設備

-
夫婦に人気の設備

-
三世代で人気の設備

-
収納重視

-
外で子どもと遊びたい

-
雨の日でも洗濯したい

-
洋室で暮らしたい

-
持ち物をスッキリ隠す収納部屋

-
推し活グッズを飾りたい

-
オークション・通販が好き

-
ガーデニングが好き

契約条件
この物件は、入居者が学生限定もしくは歓迎で2人入居もご契約できます。 また、ご契約時に保証人は不要です。 敷金が無料なため、初期費用が比較的安くなる傾向にあります。
セキュリティ
この物件の建物には、オートロックや防犯カメラや宅配ボックスが設置されており、来客時には居室内のテレビモニターにて訪問者の顔を確認することができます。
室内設備
システムキッチンには、2つ以上のガスコンロが備え付けられています。 トイレは、温水洗浄便座機能付きになります。 女性に嬉しい設備のシャワーの付いている洗面化粧台があります。 洗濯に便利な設備として、室内洗濯機置場があります。浴室乾燥機も設置されているので、梅雨時の生乾き臭も比較的防ぐことができます。
居室状況
お部屋の床は、フローリングとなっており、エアコンが設置されています。 照明器具が備え付けられており、インターネットも無料で入居後すぐ生活が始められます。 収納スペースとして、基本的な居室にクローゼットを設置、玄関にはシューズボックスがあります。
建物設備共用部分
居室外の専有スペースとして、洗濯物を干すなどの用途として利用できるバルコニーがあります。 建物の共用スペースに、いざという時の防犯カメラや、急な外出や不在がちのご家庭の荷物受け取りに便利な宅配ボックスが設置されています。 駐輪場が利用できます。
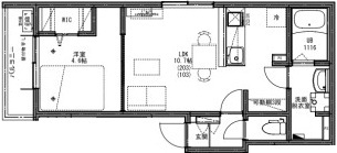
KEIAI RESIDENCE 西八王子Ⅲ 103号室の間取り
間取り:1LDK
間取詳細:1LDK(洋4.9・LDK10.1)
専有面積:36.38㎡
方位:北
部屋位置:角部屋
KEIAI RESIDENCE 西八王子Ⅲ 103号室の設備
キッチン
システムキッチン
カウンターキッチン
ガスコンロ
ガスコンロ二口以上
バス・トイレ
バス・トイレ別
浴室乾燥機
温水洗浄便座
独立洗面台
シャワー付洗面化粧台
玄関
TVモニタ付インターホン
オートロック
宅配ボックス
収納
クローゼット
シューズボックス
全居室収納
バルコニー
バルコニー
ルーフバルコニー
室内設備
エアコン
フローリング
室内洗濯機置場
照明器具付
位置・立地
1階
角部屋
インフラ
インターネット可
プロパンガス
建物設備
防犯カメラ
駐輪場
入居条件
2人入居可
学生限定・歓迎
オンライン相談可
オンライン内見可
保証人不要
ライフステージ
一人暮らしに人気の設備
カップルに人気の設備
家族に人気の設備
夫婦に人気の設備
三世代で人気の設備
こだわり
収納重視
外で子どもと遊びたい
雨の日でも洗濯したい
洋室で暮らしたい
持ち物をスッキリ隠す収納部屋
趣味
推し活グッズを飾りたい
オークション・通販が好き
ガーデニングが好き
お得な条件
インターネット無料
KEIAI RESIDENCE 西八王子Ⅲ 103号室の賃貸契約情報
毎月支払う |
家賃8.4万円/月共益費3,500円/月 |
|---|---|
初期費用 |
敷金-礼金1ヶ月 (8.4万円)保証金-敷引き償却金- |
更新料 |
84,000円 |
鍵交換費用 |
- |
室内清掃費用 |
- |
駐車場料金 |
無 |
損保・ |
借家賠付きの火災保険にご加入いただきます。 |
保証会社 |
加入要 保証会社利用料:初回保証料:家賃総額50% 月額保証料:900円/月 |
契約期間 |
- |
入居可能日 |
2026年04月 |
フリーレント期間 |
- |
取引形態 |
一般媒介 |
備考 |
KEIAI CLUB会費:2750円(税込)/月 半年以内短期違約金家賃等2カ月 1年以内短期違約金家賃等1か月 退去時清掃費用:55000円(税込)/契約時 鍵交発行手数料:27500円(税込)/契約時 契約事務手数料:16500円(税込)/契約時 |
KEIAI RESIDENCE 西八王子Ⅲ 103号室の建物情報
建物名称 |
KEIAI RESIDENCE 西八王子Ⅲ |
|---|---|
最寄駅 |
|
所在地 |
東京都八王子市千人町 |
階層 |
1階部分(地上3階建) |
構造 |
木造 |
築年数 |
新築 |
駐車場 |
無 |
小学校学区 |
ー |
中学校学区 |
ー |
- 学区データについて
- ※学区データは必ずしも正確とは限りません。詳細に関しては最寄店舗または各自治体の教育委員会に必ずご確認ください。
無料この物件に問い合わせ
- KEIAI RESIDENCE 西八王子Ⅲ 103号室

-
8.4万円
(共益費
3,500円)
- 敷
- -
- 礼
- 1ヶ月
- 保
- -
- 償
- -
KEIAI RESIDENCE 西八王子Ⅲ 103号室の物件のお問い合わせ先・取り扱い店舗
ハウスコム 八王子駅前店
- アクセス
-
中央本線(JR東日本)「八王子駅」北口徒歩1分
- 住所
- 〒192-0083 東京都八王子市旭町2-12 サンドラッグ八王子駅前ビル6階
- 営業時間
- 10:00~18:00
- 定休日
- なし
- 営業エリア
- 【八王子市】【日野市】【相模原市】【あきる野市】【昭島市】【福生市】【青梅市】【羽村市】【瑞穂町】【町田市】【多摩市】
- 取引態様
- 賃貸仲介業























