岡田邸 1号室(1階/3LDK)の賃貸物件(賃貸一戸建て)
東京都目黒区にある岡田邸 1号室はバス・トイレ別、追い焚き、TVモニタ付インターホン、クローゼット、オンライン相談可などが特徴です。最寄り駅の東急目黒線大岡山駅から徒歩9分です。岡田邸 1号室の詳細はハウスコム 大岡山店までお気軽にお問い合わせください!
情報更新日:
次回更新予定日:
※次回更新予定日について:お店側では順次空室確認を行っていますが、次回更新予定日までに空室確認が行えない場合には、この物件情報は自動的に削除されます。
岡田邸 1号室の賃貸物件部屋概要
家賃 |
22万円
初期費用を |
|---|---|
共益費 |
-
入居可能時期 |
敷金/礼金 |
1ヶ月 / 1ヶ月 |
保証金/ |
- / - |
最寄駅 |
|
所在地 |
東京都目黒区大岡山 |
部屋番号 |
1号室 |
間取り |
3LDK(洋5.5・洋5.5・洋4・LDK13.4) |
専有面積 |
67.00㎡ |
築年数 |
2014年3月(築12年) |
階数 |
1階部分(地上1階建) |
方位・位置 |
南 / 角部屋 |
物件種別 |
賃貸一戸建て |
構造 |
木造 |
駐車場 |
- |
小学校学区 |
ー |
中学校学区 |
ー |
他の空き部屋 |
ー |
- 学区データについて
- ※学区データは必ずしも正確とは限りません。詳細に関しては最寄店舗または各自治体の教育委員会に必ずご確認ください。
岡田邸 1号室の特徴
契約条件
この物件は、2人入居もご契約できます。
セキュリティ
来客時には居室内のテレビモニターにて訪問者の顔を確認することができます。
室内設備
お風呂とトイレは別です。お風呂には、追い焚き機能が備わっています。 女性に嬉しい設備のシャワーの付いている洗面化粧台があります。 洗濯に便利な設備として、室内洗濯機置場があります。
居室状況
お部屋の床は、フローリングとなっており、エアコンが設置されています。 収納スペースとして、基本的な居室にクローゼットを設置、玄関にはシューズボックス、また、床下収納といったあれば嬉しい用途別収納があります。
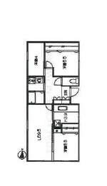
岡田邸 1号室の間取り
間取り:3LDK
間取詳細:3LDK(洋5.5・洋5.5・洋4・LDK13.4)
専有面積:67.00㎡
方位:南
部屋位置:角部屋
岡田邸 1号室の設備
バス・トイレ
バス・トイレ別
追い焚き
独立洗面台
シャワー付洗面化粧台
玄関
TVモニタ付インターホン
収納
クローゼット
シューズボックス
床下収納
室内設備
エアコン
フローリング
室内洗濯機置場
位置・立地
1階
最上階
角部屋
南向き
インフラ
インターネット可
都市ガス
入居条件
2人入居可
オンライン相談可
オンライン内見可
ライフステージ
一人暮らしに人気の設備
カップルに人気の設備
家族に人気の設備
夫婦に人気の設備
三世代で人気の設備
こだわり
日当たり重視
雨の日でも洗濯したい
洋室で暮らしたい
岡田邸 1号室の賃貸契約情報
毎月支払う |
家賃22万円/月共益費- |
|---|---|
初期費用 |
敷金1ヶ月 (22万円)礼金1ヶ月 (22万円)保証金-敷引き償却金- |
更新料 |
220,000円 |
鍵交換費用 |
- |
室内清掃費用 |
- |
駐車場料金 |
- |
損保・ |
借家賠付きの火災保険にご加入いただきます。 |
保証会社 |
加入要 保証会社利用料:初回50% 月々1.5% 年間1万円 |
契約期間 |
2年 |
入居可能日 |
2026年04月中旬 |
フリーレント期間 |
- |
取引形態 |
一般媒介 |
備考 |
- |
岡田邸 1号室の建物情報
建物名称 |
岡田邸 |
|---|---|
最寄駅 |
|
所在地 |
東京都目黒区大岡山 |
階層 |
1階部分(地上1階建) |
構造 |
木造 |
築年数 |
2014年3月(築12年) |
駐車場 |
- |
小学校学区 |
ー |
中学校学区 |
ー |
- 学区データについて
- ※学区データは必ずしも正確とは限りません。詳細に関しては最寄店舗または各自治体の教育委員会に必ずご確認ください。
無料この物件に問い合わせ
- 岡田邸 1号室

-
22万円
(共益費
-)
- 敷
- 1ヶ月
- 礼
- 1ヶ月
- 保
- -
- 償
- -
岡田邸 1号室の物件のお問い合わせ先・取り扱い店舗
ハウスコム 大岡山店
- アクセス
-
東急目黒線「大岡山駅」徒歩1分
- 住所
- 〒145-0062 東京都大田区北千束1丁目51−6 サンルミナスA 1階
- 営業時間
- 10:00~18:00
- 定休日
- なし
- 営業エリア
- 大田区,目黒区,品川区,世田谷区
- 取引態様
- 賃貸仲介業












