庄司田2丁目戸建 1号室(1階/3LDK)の賃貸物件(賃貸一戸建て)
愛知県岡崎市にある庄司田2丁目戸建 1号室はカウンターキッチン、バス・トイレ別、浴室乾燥機、都市ガス、駐車2台以上可などが特徴です。最寄り駅の東海道本線(JR東海)岡崎駅から徒歩21分です。庄司田2丁目戸建 1号室の詳細はハウスコム 岡崎店までお気軽にお問い合わせください!
情報更新日:
次回更新予定日:
※次回更新予定日について:お店側では順次空室確認を行っていますが、次回更新予定日までに空室確認が行えない場合には、この物件情報は自動的に削除されます。
庄司田2丁目戸建 1号室の賃貸物件部屋概要
家賃 |
13万円
初期費用を |
|---|---|
共益費 |
-
入居可能時期 |
敷金/礼金 |
2ヶ月 / 1ヶ月 |
保証金/ |
- / - |
最寄駅 |
|
所在地 |
愛知県岡崎市庄司田 |
部屋番号 |
1号室 |
間取り |
3LDK(LDK21.2・洋10.8・洋4.7・洋6.7) |
専有面積 |
112.72㎡ |
築年数 |
2017年6月(築9年) |
階数 |
1階部分(地上1階建) |
方位・位置 |
東 / その他 |
物件種別 |
賃貸一戸建て |
構造 |
軽量鉄骨 |
駐車場 |
空有 賃料に含む |
小学校学区 |
羽根小学校 |
中学校学区 |
翔南中学校 |
他の空き部屋 |
ー |
- 学区データについて
- ※学区データは必ずしも正確とは限りません。詳細に関しては最寄店舗または各自治体の教育委員会に必ずご確認ください。
庄司田2丁目戸建 1号室の特徴
-
一人暮らしに人気の設備

-
カップルに人気の設備

-
家族に人気の設備

-
夫婦に人気の設備

-
三世代で人気の設備

-
外で子どもと遊びたい

-
急な来客でも駐車したい

-
雨の日でも洗濯したい

-
洋室で暮らしたい

-
料理が好き

-
服やおしゃれが好き

-
推し活グッズを飾りたい

-
緑のある環境が好き

-
ガーデニングが好き

-
家庭菜園が好き

セキュリティ
来客時には居室内のテレビモニターにて訪問者の顔を確認することができます。
室内設備
システムキッチンには、ガスコンロが備え付けられています。 お風呂とトイレは別です。お風呂には、追い焚き機能が備わっています。 トイレは、温水洗浄便座機能付きになります。 女性に嬉しい設備のシャワーの付いている洗面化粧台があります。 洗濯に便利な設備として、室内洗濯機置場があります。浴室乾燥機も設置されているので、梅雨時の生乾き臭も比較的防ぐことができます。
居室状況
お部屋の床は、フローリングとなっており、エアコンが設置されています。 収納スペースとして、基本的な居室にクローゼットを設置、通常よりも収納力の高いウォークインクローゼット、玄関にはシューズボックスがあります。
建物設備共用部分
居室外の専有スペースとして、洗濯物を干すなどの用途として利用できるバルコニーがあります。 平面駐車場があり、無料で2台以上の車で利用することができます。
周辺施設
この物件の学区は、羽根小学校区・翔南中学校区です。
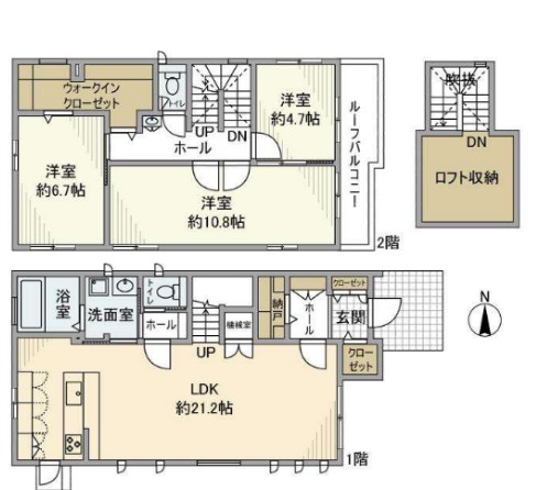
庄司田2丁目戸建 1号室の間取り
間取り:3LDK
間取詳細:3LDK(LDK21.2・洋10.8・洋4.7・洋6.7)
専有面積:112.72㎡
方位:東
部屋位置:その他
庄司田2丁目戸建 1号室の設備
キッチン
システムキッチン
カウンターキッチン
ガスコンロ
バス・トイレ
バス・トイレ別
追い焚き
浴室乾燥機
温水洗浄便座
独立洗面台
シャワー付洗面化粧台
玄関
TVモニタ付インターホン
収納
クローゼット
ウォークインクローゼット
シューズボックス
バルコニー
バルコニー
ルーフバルコニー
専用庭付
室内設備
エアコン
フローリング
室内洗濯機置場
位置・立地
1階
最上階
インフラ
都市ガス
建物設備
駐車場
平面駐車場
駐車2台以上可
入居条件
オンライン相談可
オンライン内見可
即入居可
ライフステージ
一人暮らしに人気の設備
カップルに人気の設備
家族に人気の設備
夫婦に人気の設備
三世代で人気の設備
こだわり
外で子どもと遊びたい
急な来客でも駐車したい
雨の日でも洗濯したい
洋室で暮らしたい
趣味
料理が好き
服やおしゃれが好き
推し活グッズを飾りたい
緑のある環境が好き
ガーデニングが好き
家庭菜園が好き
お得な条件
駐車場無料
庄司田2丁目戸建 1号室の賃貸契約情報
毎月支払う |
家賃13万円/月共益費- |
|---|---|
初期費用 |
敷金2ヶ月 (26万円)礼金1ヶ月 (13万円)保証金-敷引き償却金- |
更新料 |
- |
鍵交換費用 |
- |
室内清掃費用 |
- |
駐車場登録料 |
11,000円 |
除菌施工料 |
19,800円 |
駐車場料金 |
空有 賃料に含む |
損保・ |
借家賠付きの火災保険にご加入いただきます。 |
保証会社 |
加入要 保証会社利用料:初回 賃料総額100%+月額 賃料総額1%(最低1,000円) |
契約期間 |
定期借家 2年 |
入居可能日 |
即入居可 |
フリーレント期間 |
- |
取引形態 |
一般媒介 |
備考 |
- |
庄司田2丁目戸建 1号室の建物情報
建物名称 |
庄司田2丁目戸建 |
|---|---|
最寄駅 |
|
所在地 |
愛知県岡崎市庄司田 |
階層 |
1階部分(地上1階建) |
構造 |
軽量鉄骨 |
築年数 |
2017年6月(築9年) |
駐車場 |
空有 賃料に含む |
小学校学区 |
羽根小学校 |
中学校学区 |
翔南中学校 |
- 学区データについて
- ※学区データは必ずしも正確とは限りません。詳細に関しては最寄店舗または各自治体の教育委員会に必ずご確認ください。
無料この物件に問い合わせ
- 庄司田2丁目戸建 1号室

-
13万円
(共益費
-)
- 敷
- 2ヶ月
- 礼
- 1ヶ月
- 保
- -
- 償
- -
庄司田2丁目戸建 1号室の物件のお問い合わせ先・取り扱い店舗
ハウスコム 岡崎店
- アクセス
-
名鉄名古屋本線「東岡崎駅」北口徒歩8分
- 住所
- 〒444-0044 愛知県岡崎市康生通南2−32 Sビル 1階
- 営業時間
- 10:00~18:00
- 定休日
- なし
- 営業エリア
- 岡崎市、幸田町、豊川市、蒲郡市、安城市、西尾市
- 取引態様
- 賃貸仲介業








