CREATIF学芸大学 104号室(2LDK)の賃貸物件(賃貸マンション)
東京都目黒区にあるCREATIF学芸大学 104号室は温水洗浄便座、室内洗濯機置場、都市ガス、2人入居可、オンライン内見可などが特徴です。最寄り駅の東急東横線学芸大学駅から徒歩13分です。CREATIF学芸大学 104号室の詳細はハウスコム 五反田店までお気軽にお問い合わせください!
情報更新日:
次回更新予定日:
※次回更新予定日について:お店側では順次空室確認を行っていますが、次回更新予定日までに空室確認が行えない場合には、この物件情報は自動的に削除されます。
CREATIF学芸大学 104号室の賃貸物件部屋概要
家賃 |
31.5万円
初期費用を |
|---|---|
共益費 |
15,000円
入居可能時期 |
敷金/礼金 |
- / - |
保証金/ |
- / - |
最寄駅 |
|
所在地 |
東京都目黒区柿の木坂 |
部屋番号 |
104号室 |
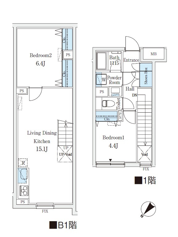
間取り |
2LDK(洋6.4・洋4.4・LDK15.1) |
専有面積 |
61.54㎡ |
築年数 |
新築 |
階数 |
地上4階地下1階建 |
方位・位置 |
北西 / その他 |
物件種別 |
賃貸マンション |
構造 |
RC |
駐車場 |
無 |
小学校学区 |
東根小学校 |
中学校学区 |
第十中学校 |
他の空き部屋 |
101号室 102号室 103号室 105号室 106号室 201号室 202号室 204号室 205号室 301号室 302号室 303号室 304号室 305号室 401号室 402号室 |
- 学区データについて
- ※学区データは必ずしも正確とは限りません。詳細に関しては最寄店舗または各自治体の教育委員会に必ずご確認ください。
CREATIF学芸大学 104号室の特徴
-
一人暮らしに人気の設備

-
カップルに人気の設備

-
家族に人気の設備

-
夫婦に人気の設備

-
三世代で人気の設備

-
収納重視

-
タイパ重視

-
外で子どもと遊びたい

-
雨の日でも洗濯したい

-
洋室で暮らしたい

-
持ち物をスッキリ隠す収納部屋

-
緑のある環境が好き

-
ガーデニングが好き

-
家庭菜園が好き

契約条件
この物件は、外国籍の方もご相談の上、2人入居もご契約できます。 ペットの飼育もご相談ください。 また、ご契約時に保証人は不要です。 敷金と礼金が無料なため、初期費用が比較的安くなる傾向にあります。
セキュリティ
この物件の建物には、オートロックや宅配ボックスが設置されており、来客時には居室内のテレビモニターにて訪問者の顔を確認することができます。
室内設備
システムキッチンには、IHコンロが備え付けられています。 お風呂とトイレは別です。お風呂には、追い焚き機能が備わっています。 トイレは、温水洗浄便座機能付きになります。 女性に嬉しい設備の独立した洗面化粧台があります。 洗濯に便利な設備として、室内洗濯機置場があります。浴室乾燥機も設置されているので、梅雨時の生乾き臭も比較的防ぐことができます。
居室状況
お部屋の床は、フローリングとなっており、エアコンが設置されています。 照明器具が備え付けられており、入居後すぐ生活が始められます。 収納スペースとして、基本的な居室にクローゼットを設置、玄関にはシューズボックスがあります。
建物設備共用部分
居室外の専有スペースとして、洗濯物を干すなどの用途として利用できるバルコニーがあります。 建物の共用スペースに、日々の出入に便利なエレベーターや、急な外出や不在がちのご家庭の荷物受け取りに便利な宅配ボックスや、居室内を常に清潔に保てる24時間利用可能なゴミ捨て置き場が設置されています。
周辺施設
この物件の学区は、東根小学校区・第十中学校区です。
CREATIF学芸大学 104号室の間取り
間取り:2LDK
間取詳細:2LDK(洋6.4・洋4.4・LDK15.1)
専有面積:61.54㎡
方位:北西
部屋位置:その他
CREATIF学芸大学 104号室の設備
キッチン
システムキッチン
IHコンロ
バス・トイレ
バス・トイレ別
追い焚き
浴室乾燥機
温水洗浄便座
独立洗面台
玄関
TVモニタ付インターホン
オートロック
宅配ボックス
収納
クローゼット
シューズボックス
全居室収納
バルコニー
バルコニー
ルーフバルコニー
専用庭付
室内設備
エアコン
フローリング
室内洗濯機置場
照明器具付
デザイナーズ
インフラ
インターネット可
都市ガス
建物設備
エレベーター
24時間ゴミ出しOK
メゾネット
入居条件
ペット可・相談
2人入居可
外国人可・相談
オンライン相談可
オンライン内見可
保証人不要
ライフステージ
一人暮らしに人気の設備
カップルに人気の設備
家族に人気の設備
夫婦に人気の設備
三世代で人気の設備
こだわり
収納重視
タイパ重視
外で子どもと遊びたい
雨の日でも洗濯したい
洋室で暮らしたい
持ち物をスッキリ隠す収納部屋
趣味
緑のある環境が好き
ガーデニングが好き
家庭菜園が好き
お得な条件
フリーレント
CREATIF学芸大学 104号室の賃貸契約情報
毎月支払う |
家賃31.5万円/月共益費15,000円/月 |
|---|---|
初期費用 |
敷金-礼金-保証金-敷引き償却金- |
更新料 |
315,000円 |
鍵交換費用 |
- |
室内清掃費用 |
94,771円 |
駐車場料金 |
無 |
損保・ |
借家賠付きの火災保険にご加入いただきます。 |
保証会社 |
加入要 保証会社利用料:賃料総額の50% 1年毎10000円 |
契約期間 |
2年 |
入居可能日 |
2026年04月 |
フリーレント期間 |
3ヶ月 |
取引形態 |
一般媒介 |
備考 |
ペット飼育時敷金積み増し料金(償却)有り |
CREATIF学芸大学 104号室の建物情報
建物名称 |
CREATIF学芸大学 |
|---|---|
最寄駅 |
|
所在地 |
東京都目黒区柿の木坂 |
階層 |
地上4階地下1階建 |
構造 |
RC |
築年数 |
新築 |
駐車場 |
無 |
小学校学区 |
東根小学校 |
中学校学区 |
第十中学校 |
- 学区データについて
- ※学区データは必ずしも正確とは限りません。詳細に関しては最寄店舗または各自治体の教育委員会に必ずご確認ください。
無料この物件に問い合わせ
- CREATIF学芸大学 104号室

-
31.5万円
(共益費
15,000円)
- 敷
- -
- 礼
- -
- 保
- -
- 償
- -
CREATIF学芸大学 104号室の物件のお問い合わせ先・取り扱い店舗
ハウスコム 五反田店
- アクセス
-
山手線「五反田駅」東口徒歩1分
都営浅草線「五反田駅」A6出口より徒歩1分
- 住所
- 〒141-0022 東京都品川区東五反田1丁目12−12 落合ビル 2F
- 営業時間
- 10:00~18:00
- 定休日
- 水曜日
- 営業エリア
- 品川区,大田区,港区,目黒区
- 取引態様
- 賃貸仲介業










