レオパレスBRISE関町東 204号室(2階/1K)の賃貸物件(賃貸マンション)
東京都練馬区にあるレオパレスBRISE関町東 204号室はバス・トイレ別、TVモニタ付インターホン、エアコン、室内洗濯機置場、2階以上などが特徴です。最寄り駅の西武新宿線武蔵関駅から徒歩13分です。レオパレスBRISE関町東 204号室の詳細はハウスコム 吉祥寺店までお気軽にお問い合わせください!
情報更新日:
次回更新予定日:
※次回更新予定日について:お店側では順次空室確認を行っていますが、次回更新予定日までに空室確認が行えない場合には、この物件情報は自動的に削除されます。
レオパレスBRISE関町東 204号室の賃貸物件部屋概要
家賃 |
6.9万円
初期費用を |
|---|---|
共益費 |
7,500円
入居可能時期 |
敷金/礼金 |
- / 69,000円 |
保証金/ |
- / - |
最寄駅 |
|
所在地 |
東京都練馬区関町東 |
部屋番号 |
204号室 |
間取り |
1K |
専有面積 |
19.87㎡ |
築年数 |
2010年2月(築17年) |
階数 |
2階部分(地上3階建) |
方位・位置 |
ー / その他 |
物件種別 |
賃貸マンション |
構造 |
鉄骨造 |
駐車場 |
無 |
小学校学区 |
石神井西小学校 |
中学校学区 |
石神井西中学校 |
他の空き部屋 |
201号室 |
- 学区データについて
- ※学区データは必ずしも正確とは限りません。詳細に関しては最寄店舗または各自治体の教育委員会に必ずご確認ください。
レオパレスBRISE関町東 204号室の特徴
契約条件
敷金が無料なため、初期費用が比較的安くなる傾向にあります。
セキュリティ
この物件の建物には、オートロックが設置されており、来客時には居室内のテレビモニターにて訪問者の顔を確認することができます。
室内設備
トイレは、温水洗浄便座機能付きになります。 洗濯に便利な設備として、室内洗濯機置場があります。
居室状況
エアコンが設置されています。
周辺施設
この物件の学区は、石神井西小学校区・石神井西中学校区です。
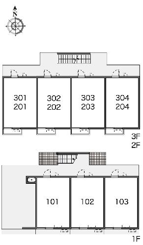
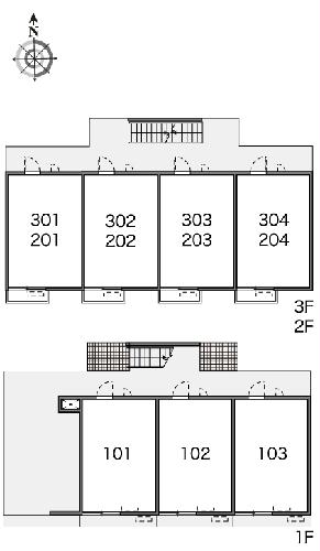
レオパレスBRISE関町東 204号室の間取り
間取り:1K
間取詳細:1K
専有面積:19.87㎡
方位:ー
部屋位置:その他
レオパレスBRISE関町東 204号室の設備
バス・トイレ
バス・トイレ別
温水洗浄便座
玄関
TVモニタ付インターホン
オートロック
室内設備
エアコン
室内洗濯機置場
位置・立地
2階以上
インフラ
インターネット可
ライフステージ
一人暮らしに人気の設備
カップルに人気の設備
家族に人気の設備
夫婦に人気の設備
三世代で人気の設備
こだわり
雨の日でも洗濯したい
寝るためだけの部屋
レオパレスBRISE関町東 204号室の賃貸契約情報
毎月支払う |
家賃6.9万円/月共益費7,500円/月 |
|---|---|
初期費用 |
敷金-礼金69,000円保証金-敷引き償却金- |
更新料 |
- |
鍵交換費用 |
16,500円 |
室内清掃費用 |
41,800円 |
抗菌施工(任意) |
23,760円 |
駐車場料金 |
無 |
損保・ |
借家賠付きの火災保険にご加入いただきます。 |
保証会社 |
加入要 保証会社利用料:保証料:92390円(契約内容により100~120%で変動有)※記載金額は120%の場合 |
契約期間 |
- |
入居可能日 |
2026年04月中旬 |
フリーレント期間 |
- |
取引形態 |
一般媒介 |
備考 |
- |
レオパレスBRISE関町東 204号室の建物情報
建物名称 |
レオパレスBRISE関町東 |
|---|---|
最寄駅 |
|
所在地 |
東京都練馬区関町東 |
階層 |
2階部分(地上3階建) |
構造 |
鉄骨造 |
築年数 |
2010年2月(築17年) |
駐車場 |
無 |
小学校学区 |
石神井西小学校 |
中学校学区 |
石神井西中学校 |
1/2 外観
- 学区データについて
- ※学区データは必ずしも正確とは限りません。詳細に関しては最寄店舗または各自治体の教育委員会に必ずご確認ください。
無料この物件に問い合わせ
- レオパレスBRISE関町東 204号室

-
6.9万円
(共益費
7,500円)
- 敷
- -
- 礼
- 69,000円
- 保
- -
- 償
- -
レオパレスBRISE関町東 204号室の物件のお問い合わせ先・取り扱い店舗
ハウスコム 吉祥寺店
水曜日営業
土日営業
年中無休(年末年始などを除く)
- アクセス
-
中央本線(JR東日本)「吉祥寺駅」公園口徒歩1分
- 住所
- 〒180-0003 東京都武蔵野市吉祥寺南町1丁目3−1 吉祥寺駅前井口ビル 2F
- 営業時間
- 10:00~18:00
- 定休日
- なし
- 営業エリア
- 武蔵野市・三鷹市・杉並区・練馬区・小金井市・調布市
- 取引態様
- 賃貸仲介業
お問い合わせNo. HC5-2808614-204-0056
















