エルファーロ駒沢公園Ⅰ 0302号室(3階/2LDK)の賃貸物件(賃貸マンション)
東京都世田谷区にあるエルファーロ駒沢公園Ⅰ 0302号室はオートロック、宅配ボックス、シューズボックス、角部屋、ペット可・相談などが特徴です。最寄り駅の東急田園都市線駒沢大学駅から徒歩13分です。エルファーロ駒沢公園Ⅰ 0302号室の詳細はハウスコム 自由が丘店までお気軽にお問い合わせください!
情報更新日:
次回更新予定日:
※次回更新予定日について:お店側では順次空室確認を行っていますが、次回更新予定日までに空室確認が行えない場合には、この物件情報は自動的に削除されます。
エルファーロ駒沢公園Ⅰ 0302号室の賃貸物件部屋概要
家賃 |
23.5万円
初期費用を |
|---|---|
共益費 |
15,000円
入居可能時期 |
敷金/礼金 |
- / - |
保証金/ |
- / - |
最寄駅 |
|
所在地 |
東京都世田谷区駒沢 |
部屋番号 |
0302号室 |
間取り |
2LDK(LDK10.6・洋5.9・洋4.4) |
専有面積 |
49.01㎡ |
築年数 |
2023年9月(築3年) |
階数 |
3階部分(地上5階建) |
方位・位置 |
東 / 角部屋 |
物件種別 |
賃貸マンション |
構造 |
RC |
駐車場 |
無 |
小学校学区 |
深沢小学校 |
中学校学区 |
深沢中学校 |
他の空き部屋 |
302号室 |
- 学区データについて
- ※学区データは必ずしも正確とは限りません。詳細に関しては最寄店舗または各自治体の教育委員会に必ずご確認ください。
エルファーロ駒沢公園Ⅰ 0302号室の特徴
-
一人暮らしに人気の設備

-
カップルに人気の設備

-
家族に人気の設備

-
夫婦に人気の設備

-
三世代で人気の設備

-
セキュリティ対策重視

-
雨の日でも洗濯したい

-
洋室で暮らしたい

-
推し活グッズを飾りたい

-
オークション・通販が好き

契約条件
この物件は、2人入居もご契約できます。 ペットの飼育もご相談ください。 また、ご契約時に保証人は不要です。 敷金と礼金が無料なため、初期費用が比較的安くなる傾向にあります。
セキュリティ
この物件の建物には、オートロックや防犯カメラや宅配ボックスが設置されており、来客時には居室内のテレビモニターにて訪問者の顔を確認することができます。
室内設備
システムキッチンには、ガスコンロが備え付けられています。 トイレは、温水洗浄便座機能付きになります。 女性に嬉しい設備の独立した洗面化粧台があります。 洗濯に便利な設備として、室内洗濯機置場があります。浴室乾燥機も設置されているので、梅雨時の生乾き臭も比較的防ぐことができます。
居室状況
お部屋の床は、フローリングとなっており、エアコンが設置されています。 照明器具が備え付けられており、インターネットも無料で入居後すぐ生活が始められます。 収納スペースとして、基本的な居室にクローゼットを設置、玄関にはシューズボックスがあります。
建物設備共用部分
建物の共用スペースに、いざという時の防犯カメラや、急な外出や不在がちのご家庭の荷物受け取りに便利な宅配ボックスが設置されています。
周辺施設
この物件の学区は、深沢小学校区・深沢中学校区です。
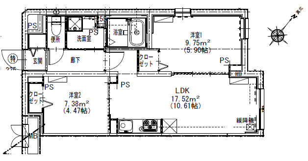
エルファーロ駒沢公園Ⅰ 0302号室の間取り
間取り:2LDK
間取詳細:2LDK(LDK10.6・洋5.9・洋4.4)
専有面積:49.01㎡
方位:東
部屋位置:角部屋
エルファーロ駒沢公園Ⅰ 0302号室の設備
キッチン
システムキッチン
ガスコンロ
バス・トイレ
バス・トイレ別
浴室乾燥機
温水洗浄便座
独立洗面台
玄関
TVモニタ付インターホン
オートロック
宅配ボックス
収納
クローゼット
シューズボックス
室内設備
エアコン
フローリング
室内洗濯機置場
照明器具付
位置・立地
2階以上
角部屋
インフラ
インターネット可
CATV
都市ガス
建物設備
防犯カメラ
入居条件
ペット可・相談
2人入居可
オンライン相談可
オンライン内見可
保証人不要
ライフステージ
一人暮らしに人気の設備
カップルに人気の設備
家族に人気の設備
夫婦に人気の設備
三世代で人気の設備
こだわり
セキュリティ対策重視
雨の日でも洗濯したい
洋室で暮らしたい
趣味
推し活グッズを飾りたい
オークション・通販が好き
お得な条件
インターネット無料
エルファーロ駒沢公園Ⅰ 0302号室の賃貸契約情報
毎月支払う |
家賃23.5万円/月共益費15,000円/月 |
|---|---|
初期費用 |
敷金-礼金-保証金-敷引き償却金- |
更新料 |
235,000円 |
鍵交換費用 |
38,500円 |
室内清掃費用 |
- |
プレミアデスク(2年/税込) |
22,000円 |
契約時ルームクリーニング費用(税込) |
143,000円 |
駐車場料金 |
無 |
損保・ |
借家賠付きの火災保険にご加入いただきます。 |
保証会社 |
加入要 保証会社:エポスカード 保証会社利用料:※エポス ルームIDからの審査になります。 【ルームID】月額総賃料の50%/月次保証料、月額総賃料の1.5%/1年毎10,000円 ●エポスグローバルプラン利用時:月額総賃料の100%,月額総賃 |
契約期間 |
2年 |
入居可能日 |
相談 |
フリーレント期間 |
- |
取引形態 |
一般媒介 |
備考 |
PET飼育時 1匹につき敷金1ヶ月プラス 解約時償却 |
エルファーロ駒沢公園Ⅰ 0302号室の建物情報
建物名称 |
エルファーロ駒沢公園Ⅰ |
|---|---|
最寄駅 |
|
所在地 |
東京都世田谷区駒沢 |
階層 |
3階部分(地上5階建) |
構造 |
RC |
築年数 |
2023年9月(築3年) |
駐車場 |
無 |
小学校学区 |
深沢小学校 |
中学校学区 |
深沢中学校 |
- 学区データについて
- ※学区データは必ずしも正確とは限りません。詳細に関しては最寄店舗または各自治体の教育委員会に必ずご確認ください。
無料この物件に問い合わせ
- エルファーロ駒沢公園Ⅰ 0302号室

-
23.5万円
(共益費
15,000円)
- 敷
- -
- 礼
- -
- 保
- -
- 償
- -
エルファーロ駒沢公園Ⅰ 0302号室の物件のお問い合わせ先・取り扱い店舗
ハウスコム 自由が丘店
- アクセス
-
東急東横線「自由が丘駅」徒歩3分
東急大井町線「自由が丘駅」徒歩3分
- 住所
- 〒152-0035 東京都目黒区自由が丘1丁目14ー14 原田ビル1階
- 営業時間
- 10:00~18:00
- 定休日
- なし
- 営業エリア
- 世田谷区,大田区,目黒区
- 取引態様
- 賃貸仲介業





















