吉本ビル ***号室(1階/2DK)の賃貸物件(賃貸マンション)
埼玉県さいたま市南区にある吉本ビル ***号室は独立洗面台、バルコニー、1階、CATV、駐輪場などが特徴です。最寄り駅の埼京線武蔵浦和駅から徒歩15分です。吉本ビル ***号室の詳細はハウスコム 南浦和店までお気軽にお問い合わせください!
情報更新日:
次回更新予定日:
※次回更新予定日について:お店側では順次空室確認を行っていますが、次回更新予定日までに空室確認が行えない場合には、この物件情報は自動的に削除されます。
吉本ビル ***号室の賃貸物件部屋概要
家賃 |
10.3万円
初期費用を |
|---|---|
共益費 |
5,000円
入居可能時期 |
敷金/礼金 |
- / - |
保証金/ |
- / - |
最寄駅 |
|
所在地 |
埼玉県さいたま市南区白幡 |
部屋番号 |
***号室 |
間取り |
2DK(和6・洋6・DK7.2) |
専有面積 |
62.98㎡ |
築年数 |
1987年1月(築40年) |
階数 |
1階部分(地上3階建) |
方位・位置 |
南東 / 角部屋 |
物件種別 |
賃貸マンション |
構造 |
RC |
駐車場 |
- |
小学校学区 |
辻小学校 |
中学校学区 |
内谷中学校 |
他の空き部屋 |
102号室 |
- 学区データについて
- ※学区データは必ずしも正確とは限りません。詳細に関しては最寄店舗または各自治体の教育委員会に必ずご確認ください。
吉本ビル ***号室の特徴
契約条件
この物件は、2人入居もご契約できます。 ペットの飼育もご相談ください。 敷金と礼金が無料なため、初期費用が比較的安くなる傾向にあります。
室内設備
女性に嬉しい設備の独立した洗面化粧台があります。 洗濯に便利な設備として、室内洗濯機置場があります。
居室状況
居室には、和室の居室もあり、子育てやリラックススペースとしての利用もできます。 お部屋の床は、フローリングとなっており、エアコンが設置されています。 インターネットも無料で入居後すぐ生活が始められます。 収納スペースとして、基本的な居室にクローゼットがあります。
建物設備共用部分
居室外の専有スペースとして、洗濯物を干すなどの用途として利用できるバルコニーがあります。 駐輪場が利用できます。
周辺施設
この物件の学区は、辻小学校区・内谷中学校区です。近くには、徒歩13分(1000m)で武蔵浦和があります。
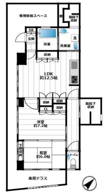
吉本ビル ***号室の間取り
間取り:2DK
間取詳細:2DK(和6・洋6・DK7.2)
専有面積:62.98㎡
方位:南東
部屋位置:角部屋
吉本ビル ***号室の設備
バス・トイレ
バス・トイレ別
独立洗面台
収納
クローゼット
バルコニー
バルコニー
ルーフバルコニー
室内設備
エアコン
フローリング
室内洗濯機置場
和室あり
位置・立地
1階
角部屋
インフラ
インターネット可
CATV
都市ガス
建物設備
駐輪場
入居条件
ペット可・相談
2人入居可
オンライン相談可
オンライン内見可
ライフステージ
一人暮らしに人気の設備
カップルに人気の設備
家族に人気の設備
夫婦に人気の設備
三世代で人気の設備
こだわり
外で子どもと遊びたい
雨の日でも洗濯したい
洋室で暮らしたい
趣味
ガーデニングが好き
お得な条件
インターネット無料
吉本ビル ***号室の賃貸契約情報
毎月支払う |
家賃10.3万円/月共益費5,000円/月 |
|---|---|
初期費用 |
敷金-礼金-保証金-敷引き償却金- |
更新料 |
- |
鍵交換費用 |
27,500円 |
室内清掃費用 |
- |
くらしーど24 |
16,500円 |
駐車場料金 |
- |
損保・ |
借家賠付きの火災保険にご加入いただきます。 |
保証会社 |
加入要 保証会社利用料:契約時:総賃料の50% 月額1% |
契約期間 |
2年 |
入居可能日 |
2026年04月下旬 |
フリーレント期間 |
- |
取引形態 |
一般媒介 |
備考 |
鍵交換代 27500円 月額:水道料 4000円 初期:くらしーど24 16500円 保証会社利用必須 契約時:総賃料の50% 月額1% |
吉本ビル ***号室の建物情報
建物名称 |
吉本ビル |
|---|---|
最寄駅 |
|
所在地 |
埼玉県さいたま市南区白幡 |
階層 |
1階部分(地上3階建) |
構造 |
RC |
築年数 |
1987年1月(築40年) |
駐車場 |
- |
小学校学区 |
辻小学校 |
中学校学区 |
内谷中学校 |
- 学区データについて
- ※学区データは必ずしも正確とは限りません。詳細に関しては最寄店舗または各自治体の教育委員会に必ずご確認ください。
無料この物件に問い合わせ
- 吉本ビル ***号室

-
10.3万円
(共益費
5,000円)
- 敷
- -
- 礼
- -
- 保
- -
- 償
- -
吉本ビル ***号室の物件のお問い合わせ先・取り扱い店舗
ハウスコム 南浦和店
- アクセス
-
京浜東北・根岸線「南浦和駅」東口徒歩1分
- 住所
- 〒336-0017 埼玉県さいたま市南区南浦和2丁目36−15 サウスハセービル 2階
- 営業時間
- 10:00~18:00
- 定休日
- なし
- 営業エリア
- さいたま市全域、川口市全域、蕨市、戸田市、越谷市、朝霞市
- 取引態様
- 賃貸仲介業


















