アジールコート板橋本町 0201号室(2階/1LDK)の賃貸物件(賃貸マンション)
東京都板橋区にあるアジールコート板橋本町 0201号室はガスコンロ二口以上、温水洗浄便座、宅配ボックス、エアコン、2階以上などが特徴です。最寄り駅の都営三田線板橋本町駅から徒歩4分です。アジールコート板橋本町 0201号室の詳細はハウスコム 赤羽店までお気軽にお問い合わせください!
情報更新日:
次回更新予定日:
※次回更新予定日について:お店側では順次空室確認を行っていますが、次回更新予定日までに空室確認が行えない場合には、この物件情報は自動的に削除されます。
アジールコート板橋本町 0201号室の賃貸物件部屋概要
家賃 |
14.7万円
初期費用を |
|---|---|
共益費 |
12,000円
入居可能時期 |
敷金/礼金 |
1ヶ月 / 1ヶ月 |
保証金/ |
- / - |
最寄駅 |
|
所在地 |
東京都板橋区本町 |
部屋番号 |
0201号室 |
間取り |
1LDK(DK9・洋4.9) |
専有面積 |
35.76㎡ |
築年数 |
2024年2月(築3年) |
階数 |
2階部分(地上9階建) |
方位・位置 |
南 / 角部屋 |
物件種別 |
賃貸マンション |
構造 |
RC |
駐車場 |
- |
小学校学区 |
加賀小学校 |
中学校学区 |
加賀中学校 |
他の空き部屋 |
0401号室 0503号室 0605号室 0705号室 0804号室 201号室 804号室 |
- 学区データについて
- ※学区データは必ずしも正確とは限りません。詳細に関しては最寄店舗または各自治体の教育委員会に必ずご確認ください。
アジールコート板橋本町 0201号室の特徴
契約条件
ペットの飼育もご相談ください。
セキュリティ
この物件の建物には、オートロックや宅配ボックスが設置されております。
室内設備
システムキッチンには、2つ以上のガスコンロが備え付けられています。 トイレは、温水洗浄便座機能付きになります。 女性に嬉しい設備の独立した洗面化粧台があります。 洗濯に便利な設備として、室内洗濯機置場があります。浴室乾燥機も設置されているので、梅雨時の生乾き臭も比較的防ぐことができます。
居室状況
お部屋の床は、フローリングとなっており、エアコンが設置されています。 インターネットも無料で入居後すぐ生活が始められます。 収納スペースとして、基本的な居室にクローゼットを設置、玄関にはシューズボックスがあります。
建物設備共用部分
建物の共用スペースに、日々の出入に便利なエレベーターや、急な外出や不在がちのご家庭の荷物受け取りに便利な宅配ボックスが設置されています。 駐輪場、バイク置き場が利用できます。
周辺施設
この物件の学区は、加賀小学校区・加賀中学校区です。
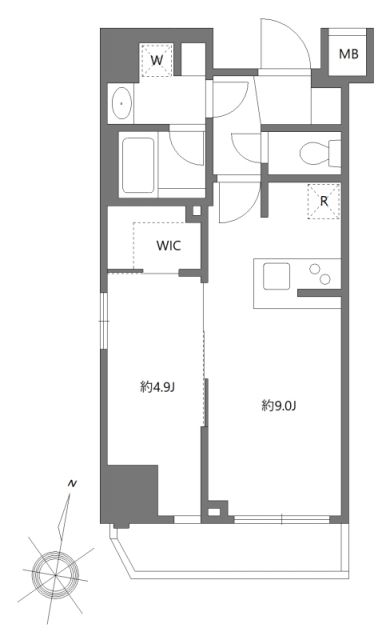
アジールコート板橋本町 0201号室の間取り
間取り:1LDK
間取詳細:1LDK(DK9・洋4.9)
専有面積:35.76㎡
方位:南
部屋位置:角部屋
アジールコート板橋本町 0201号室の設備
キッチン
システムキッチン
ガスコンロ
ガスコンロ二口以上
バス・トイレ
バス・トイレ別
浴室乾燥機
温水洗浄便座
独立洗面台
玄関
オートロック
宅配ボックス
収納
クローゼット
シューズボックス
室内設備
エアコン
フローリング
室内洗濯機置場
位置・立地
2階以上
角部屋
南向き
インフラ
インターネット可
CATV
BS
CS
都市ガス
建物設備
エレベーター
駐輪場
バイク置き場
入居条件
ペット可・相談
ライフステージ
一人暮らしに人気の設備
カップルに人気の設備
家族に人気の設備
夫婦に人気の設備
三世代で人気の設備
こだわり
雨の日でも洗濯したい
洋室で暮らしたい
趣味
オークション・通販が好き
お得な条件
インターネット無料
アジールコート板橋本町 0201号室の賃貸契約情報
毎月支払う |
家賃14.7万円/月共益費12,000円/月 |
|---|---|
初期費用 |
敷金1ヶ月 (14.7万円)礼金1ヶ月 (14.7万円)保証金-敷引き償却金- |
更新料 |
147,000円 |
鍵交換費用 |
38,500円 |
室内清掃費用 |
- |
プレミアデスク(2年/税込) |
22,000円 |
駐車場料金 |
- |
損保・ |
借家賠付きの火災保険にご加入いただきます。 |
保証会社 |
加入要 保証会社:エポスカード 保証会社利用料:※エポス ルームIDからの審査になります。 【ルームID】月額総賃料の50%/月次保証料、月額総賃料の1.5%/1年毎10,000円 【オリコフォレントインシュア】→月額総賃料の50%~ /年間 |
契約期間 |
2年 |
入居可能日 |
相談 |
フリーレント期間 |
- |
取引形態 |
一般媒介 |
備考 |
- |
アジールコート板橋本町 0201号室の建物情報
建物名称 |
アジールコート板橋本町 |
|---|---|
最寄駅 |
|
所在地 |
東京都板橋区本町 |
階層 |
2階部分(地上9階建) |
構造 |
RC |
築年数 |
2024年2月(築3年) |
駐車場 |
- |
小学校学区 |
加賀小学校 |
中学校学区 |
加賀中学校 |
- 学区データについて
- ※学区データは必ずしも正確とは限りません。詳細に関しては最寄店舗または各自治体の教育委員会に必ずご確認ください。
無料この物件に問い合わせ
- アジールコート板橋本町 0201号室

-
14.7万円
(共益費
12,000円)
- 敷
- 1ヶ月
- 礼
- 1ヶ月
- 保
- -
- 償
- -
アジールコート板橋本町 0201号室の物件のお問い合わせ先・取り扱い店舗
ハウスコム 赤羽店
- アクセス
-
京浜東北・根岸線「赤羽駅」南口徒歩1分
- 住所
- 〒115-0044 東京都北区赤羽南1丁目7−3 厚生堂ビル1階
- 営業時間
- 10:00~18:00
- 定休日
- なし
- 営業エリア
- 北区,板橋区,足立区,川口市,戸田市
- 取引態様
- 賃貸仲介業





































