グランシャルール武蔵境 501号室(5階/2LDK)の賃貸物件(賃貸マンション)
東京都武蔵野市にあるグランシャルール武蔵境 501号室はバス・トイレ別、追い焚き、全居室収納、BS、防犯カメラなどが特徴です。最寄り駅の中央本線(JR東日本)武蔵境駅から徒歩2分です。グランシャルール武蔵境 501号室の詳細はハウスコム 武蔵境店までお気軽にお問い合わせください!
情報更新日:
次回更新予定日:
※次回更新予定日について:お店側では順次空室確認を行っていますが、次回更新予定日までに空室確認が行えない場合には、この物件情報は自動的に削除されます。
グランシャルール武蔵境 501号室の賃貸物件部屋概要
家賃 |
24.8万円
初期費用を |
|---|---|
共益費 |
9,000円
入居可能時期 |
敷金/礼金 |
1ヶ月 / 2ヶ月 |
保証金/ |
- / - |
最寄駅 |
|
所在地 |
東京都武蔵野市境 |
部屋番号 |
501号室 |
間取り |
2LDK(洋6.7・洋5.7・LDK16) |
専有面積 |
66.96㎡ |
築年数 |
2020年2月(築7年) |
階数 |
5階部分(地上12階地下1階建) |
方位・位置 |
東 / 角部屋 |
物件種別 |
賃貸マンション |
構造 |
RC |
駐車場 |
18,150円 |
小学校学区 |
第二小学校 |
中学校学区 |
第六中学校 |
他の空き部屋 |
901号室 |
- 学区データについて
- ※学区データは必ずしも正確とは限りません。詳細に関しては最寄店舗または各自治体の教育委員会に必ずご確認ください。
グランシャルール武蔵境 501号室の特徴
-
一人暮らしに人気の設備

-
カップルに人気の設備

-
家族に人気の設備

-
夫婦に人気の設備

-
三世代で人気の設備

-
セキュリティ対策重視

-
収納重視

-
外で子どもと遊びたい

-
雨の日でも洗濯したい

-
洋室で暮らしたい

-
持ち物をスッキリ隠す収納部屋

-
料理が好き

-
服やおしゃれが好き

-
推し活グッズを飾りたい

-
ガーデニングが好き

契約条件
この物件は、外国籍の方もご相談の上、ご契約できます。
セキュリティ
この物件の建物には、オートロックや防犯カメラや宅配ボックスが設置されており、来客時には居室内のテレビモニターにて訪問者の顔を確認することができます。
室内設備
システムキッチンには、ガスコンロが備え付けられています。 お風呂とトイレは別です。お風呂には、追い焚き機能が備わっています。 トイレは、温水洗浄便座機能付きになります。 女性に嬉しい設備の独立した洗面化粧台があります。 洗濯に便利な設備として、室内洗濯機置場があります。浴室乾燥機も設置されているので、梅雨時の生乾き臭も比較的防ぐことができます。
居室状況
お部屋の床は、フローリングとなっており、エアコンが設置されています。 収納スペースとして、基本的な居室にクローゼットを設置、通常よりも収納力の高いウォークインクローゼット、玄関にはシューズボックスがあります。
建物設備共用部分
居室外の専有スペースとして、洗濯物を干すなどの用途として利用できるバルコニーがあります。 建物の共用スペースに、日々の出入に便利なエレベーターや、いざという時の防犯カメラや、急な外出や不在がちのご家庭の荷物受け取りに便利な宅配ボックスが設置されています。 駐輪場が利用できます。
周辺施設
この物件の学区は、第二小学校区・第六中学校区です。
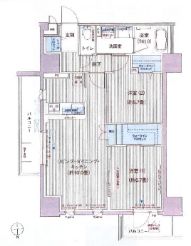
グランシャルール武蔵境 501号室の間取り
間取り:2LDK
間取詳細:2LDK(洋6.7・洋5.7・LDK16)
専有面積:66.96㎡
方位:東
部屋位置:角部屋
グランシャルール武蔵境 501号室の設備
キッチン
システムキッチン
カウンターキッチン
ガスコンロ
バス・トイレ
バス・トイレ別
追い焚き
浴室乾燥機
温水洗浄便座
独立洗面台
玄関
TVモニタ付インターホン
オートロック
宅配ボックス
収納
クローゼット
ウォークインクローゼット
シューズボックス
全居室収納
バルコニー
バルコニー
ルーフバルコニー
室内設備
エアコン
フローリング
室内洗濯機置場
位置・立地
2階以上
角部屋
インフラ
インターネット可
BS
CS
建物設備
エレベーター
防犯カメラ
駐輪場
入居条件
外国人可・相談
ライフステージ
一人暮らしに人気の設備
カップルに人気の設備
家族に人気の設備
夫婦に人気の設備
三世代で人気の設備
こだわり
セキュリティ対策重視
収納重視
外で子どもと遊びたい
雨の日でも洗濯したい
洋室で暮らしたい
持ち物をスッキリ隠す収納部屋
趣味
料理が好き
服やおしゃれが好き
推し活グッズを飾りたい
ガーデニングが好き
グランシャルール武蔵境 501号室の賃貸契約情報
毎月支払う |
家賃24.8万円/月共益費9,000円/月 |
|---|---|
初期費用 |
敷金1ヶ月 (24.8万円)礼金2ヶ月 (49.6万円)保証金-敷引き償却金- |
更新料 |
- |
鍵交換費用 |
27,500円 |
室内清掃費用 |
- |
駐車場料金 |
18,150円 |
損保・ |
借家賠付きの火災保険にご加入いただきます。 |
保証会社 |
加入要 保証会社利用料:初回保証料総賃料の40% 月額保証料総賃料の1% 2年後更新料の1% |
契約期間 |
- |
入居可能日 |
2026年04月下旬 |
フリーレント期間 |
- |
取引形態 |
一般媒介 |
備考 |
鍵交換代 27500円 保証会社利用必須 初回保証料総賃料の40% 月額保証料総賃料の1% 2年後更新料の1% |
グランシャルール武蔵境 501号室の建物情報
建物名称 |
グランシャルール武蔵境 |
|---|---|
最寄駅 |
|
所在地 |
東京都武蔵野市境 |
階層 |
5階部分(地上12階地下1階建) |
構造 |
RC |
築年数 |
2020年2月(築7年) |
駐車場 |
18,150円 |
小学校学区 |
第二小学校 |
中学校学区 |
第六中学校 |
- 学区データについて
- ※学区データは必ずしも正確とは限りません。詳細に関しては最寄店舗または各自治体の教育委員会に必ずご確認ください。
無料この物件に問い合わせ
- グランシャルール武蔵境 501号室

-
24.8万円
(共益費
9,000円)
- 敷
- 1ヶ月
- 礼
- 2ヶ月
- 保
- -
- 償
- -
グランシャルール武蔵境 501号室の物件のお問い合わせ先・取り扱い店舗
ハウスコム 武蔵境店
- アクセス
-
中央本線(JR東日本)「武蔵境駅」徒歩1分
- 住所
- 〒180-0022 東京都武蔵野市境2丁目2−3 渡辺ビル 1階
- 営業時間
- 10:00~18:00
- 定休日
- 水曜日
- 営業エリア
- 武蔵野市・三鷹市・小金井市・国分寺市・西東京市・小平市・練馬区・杉並区・府中市・調布市・国立市・立川市
- 取引態様
- 賃貸仲介業









