CoCo(ココ) 205号室(2階/2LDK)の賃貸物件(賃貸マンション)
静岡県浜松市中央区にあるCoCo(ココ) 205号室は独立洗面台、ルーフバルコニー、角部屋、インターネット可、プロパンガスなどが特徴です。最寄り駅の東海道本線(JR東海)浜松駅から徒歩20分です。CoCo(ココ) 205号室の詳細はハウスコム 浜松駅前店までお気軽にお問い合わせください!
情報更新日:
次回更新予定日:
※次回更新予定日について:お店側では順次空室確認を行っていますが、次回更新予定日までに空室確認が行えない場合には、この物件情報は自動的に削除されます。
CoCo(ココ) 205号室の賃貸物件部屋概要
家賃 |
8.2万円
初期費用を |
|---|---|
共益費 |
5,000円
入居可能時期 |
敷金/礼金 |
- / 1ヶ月 |
保証金/ |
- / - |
最寄駅 |
|
所在地 |
静岡県浜松市中央区西浅田 |
部屋番号 |
205号室 |
間取り |
2LDK(LDK12.7・洋7.3・洋5.9) |
専有面積 |
60.13㎡ |
築年数 |
2024年1月(築3年) |
階数 |
2階部分(地上5階建) |
方位・位置 |
南 / 角部屋 |
物件種別 |
賃貸マンション |
構造 |
RC |
駐車場 |
8,800円 |
小学校学区 |
ー |
中学校学区 |
ー |
他の空き部屋 |
ー |
- 学区データについて
- ※学区データは必ずしも正確とは限りません。詳細に関しては最寄店舗または各自治体の教育委員会に必ずご確認ください。
CoCo(ココ) 205号室の特徴
-
一人暮らしに人気の設備

-
カップルに人気の設備

-
家族に人気の設備

-
夫婦に人気の設備

-
三世代で人気の設備

-
外で子どもと遊びたい

-
急な来客でも駐車したい

-
雨の日でも洗濯したい

-
洋室で暮らしたい

-
持ち物をスッキリ隠す収納部屋

-
料理が好き

-
服やおしゃれが好き

-
推し活グッズを飾りたい

-
ガーデニングが好き

契約条件
敷金が無料なため、初期費用が比較的安くなる傾向にあります。
セキュリティ
この物件の建物には、オートロックが設置されており、来客時には居室内のテレビモニターにて訪問者の顔を確認することができます。
室内設備
システムキッチンが備え付けられています。 お風呂とトイレは別です。お風呂には、追い焚き機能が備わっています。 トイレは、温水洗浄便座機能付きになります。 女性に嬉しい設備のシャワーの付いている洗面化粧台があります。 洗濯に便利な設備として、室内洗濯機置場があります。
居室状況
お部屋の床は、フローリングとなっており、エアコンが設置されています。 インターネットも無料で入居後すぐ生活が始められます。 収納スペースとして、通常よりも収納力の高いウォークインクローゼット、玄関にはシューズボックスがあります。
建物設備共用部分
居室外の専有スペースとして、洗濯物を干すなどの用途として利用できるバルコニーがあります。 建物の共用スペースに、日々の出入に便利なエレベーターが設置されています。 平面駐車場があり2台以上の車で利用することができます。駐輪場が利用できます。
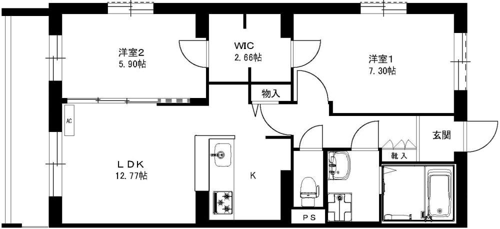
CoCo(ココ) 205号室の間取り
間取り:2LDK
間取詳細:2LDK(LDK12.7・洋7.3・洋5.9)
専有面積:60.13㎡
方位:南
部屋位置:角部屋
CoCo(ココ) 205号室の設備
キッチン
システムキッチン
カウンターキッチン
バス・トイレ
バス・トイレ別
追い焚き
温水洗浄便座
独立洗面台
シャワー付洗面化粧台
玄関
TVモニタ付インターホン
オートロック
収納
ウォークインクローゼット
シューズボックス
全居室収納
バルコニー
バルコニー
ルーフバルコニー
室内設備
エアコン
フローリング
室内洗濯機置場
位置・立地
2階以上
角部屋
南向き
インフラ
インターネット可
BS
CS
プロパンガス
建物設備
エレベーター
駐車場
平面駐車場
駐車2台以上可
駐輪場
入居条件
オンライン相談可
ライフステージ
一人暮らしに人気の設備
カップルに人気の設備
家族に人気の設備
夫婦に人気の設備
三世代で人気の設備
こだわり
外で子どもと遊びたい
急な来客でも駐車したい
雨の日でも洗濯したい
洋室で暮らしたい
持ち物をスッキリ隠す収納部屋
趣味
料理が好き
服やおしゃれが好き
推し活グッズを飾りたい
ガーデニングが好き
お得な条件
インターネット無料
CoCo(ココ) 205号室の賃貸契約情報
毎月支払う |
家賃8.2万円/月共益費5,000円/月 |
|---|---|
初期費用 |
敷金-礼金1ヶ月 (8.2万円)保証金-敷引き償却金- |
更新料 |
30,000円 |
鍵交換費用 |
- |
室内清掃費用 |
- |
契約一時金 |
130,000円 |
駐車場料金 |
8,800円 |
損保・ |
借家賠付きの火災保険にご加入いただきます。 |
保証会社 |
加入要 保証会社利用料:ジャックス 初回保証料:30000円 月額利用料:毎月の総月額賃料の2% ※更新料なし |
契約期間 |
2年 |
入居可能日 |
2026年05月上旬 |
フリーレント期間 |
- |
取引形態 |
一般媒介 |
備考 |
(契約時)契約一時金130000円 火災保険料22000円/2年 自治会関連費月額600円 緊急サポート月額1100円(税込)1年未満解約の場合は家賃1ヶ月分の短期解約違約金有り 更新料30000円/2年 駐車場8800円縦列2台 |
CoCo(ココ) 205号室の建物情報
建物名称 |
CoCo(ココ) |
|---|---|
最寄駅 |
|
所在地 |
静岡県浜松市中央区西浅田 |
階層 |
2階部分(地上5階建) |
構造 |
RC |
築年数 |
2024年1月(築3年) |
駐車場 |
8,800円 |
小学校学区 |
ー |
中学校学区 |
ー |
- 学区データについて
- ※学区データは必ずしも正確とは限りません。詳細に関しては最寄店舗または各自治体の教育委員会に必ずご確認ください。
無料この物件に問い合わせ
- CoCo(ココ) 205号室

-
8.2万円
(共益費
5,000円)
- 敷
- -
- 礼
- 1ヶ月
- 保
- -
- 償
- -
CoCo(ココ) 205号室の物件のお問い合わせ先・取り扱い店舗
ハウスコム 浜松駅前店
- アクセス
-
東海道本線(JR東海)「浜松駅」徒歩2分
- 住所
- 〒430-0927 静岡県浜松市中央区旭町10-8 浜松駅前ビル1階
- 営業時間
- 10:00~18:00
- 定休日
- 水曜日(隔週で火・水曜日)
- 営業エリア
- 浜松市中央区、浜名区、天竜区 湖西市
- 取引態様
- 賃貸仲介業





























