ベラーノ溝の口 302号室(3階/1LDK)の賃貸物件(賃貸マンション)
神奈川県川崎市高津区にあるベラーノ溝の口 302号室はシューズボックス、バルコニー、フローリング、平面駐車場、オンライン相談可などが特徴です。最寄り駅の東急田園都市線溝の口駅から徒歩15分です。ベラーノ溝の口 302号室の詳細はハウスコム 溝の口店までお気軽にお問い合わせください!
情報更新日:
次回更新予定日:
※次回更新予定日について:お店側では順次空室確認を行っていますが、次回更新予定日までに空室確認が行えない場合には、この物件情報は自動的に削除されます。
ベラーノ溝の口 302号室の賃貸物件部屋概要
家賃 |
12.7万円
初期費用を |
|---|---|
共益費 |
4,500円
入居可能時期 |
敷金/礼金 |
1ヶ月 / 2ヶ月 |
保証金/ |
- / - |
最寄駅 |
|
所在地 |
神奈川県川崎市高津区下作延 |
部屋番号 |
302号室 |
間取り |
1LDK(洋6・LDK13.9) |
専有面積 |
45.04㎡ |
築年数 |
2016年3月(築10年) |
階数 |
3階部分(地上3階建) |
方位・位置 |
南 / 角部屋 |
物件種別 |
賃貸マンション |
構造 |
鉄骨造 |
駐車場 |
15,400円 |
小学校学区 |
下作延小学校 |
中学校学区 |
西高津中学校 |
他の空き部屋 |
302号室 |
- 学区データについて
- ※学区データは必ずしも正確とは限りません。詳細に関しては最寄店舗または各自治体の教育委員会に必ずご確認ください。
ベラーノ溝の口 302号室の特徴
-
一人暮らしに人気の設備

-
カップルに人気の設備

-
家族に人気の設備

-
夫婦に人気の設備

-
三世代で人気の設備

-
日当たり重視

-
収納重視

-
外で子どもと遊びたい

-
雨の日でも洗濯したい

-
洋室で暮らしたい

-
持ち物をスッキリ隠す収納部屋

-
料理が好き

-
服やおしゃれが好き

-
推し活グッズを飾りたい

-
ガーデニングが好き

契約条件
この物件は、2人入居もご契約できます。 また、ご契約時に保証人は不要です。
セキュリティ
この物件の建物には、オートロックが設置されており、来客時には居室内のテレビモニターにて訪問者の顔を確認することができます。
室内設備
システムキッチンには、IHコンロが備え付けられています。 お風呂とトイレは別です。お風呂には、追い焚き機能が備わっています。 トイレは、温水洗浄便座機能付きになります。 女性に嬉しい設備のシャワーの付いている洗面化粧台があります。 洗濯に便利な設備として、室内洗濯機置場があります。浴室乾燥機も設置されているので、梅雨時の生乾き臭も比較的防ぐことができます。
居室状況
お部屋の床は、フローリングとなっており、エアコンが設置されています。 インターネットも無料で入居後すぐ生活が始められます。 収納スペースとして、基本的な居室にクローゼットを設置、通常よりも収納力の高いウォークインクローゼット、玄関にはシューズボックスがあります。
建物設備共用部分
居室外の専有スペースとして、洗濯物を干すなどの用途として利用できるバルコニーがあります。 平面駐車場があります。駐輪場、バイク置き場が利用できます。
周辺施設
この物件の学区は、下作延小学校区・西高津中学校区です。
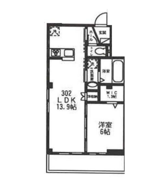
ベラーノ溝の口 302号室の間取り
間取り:1LDK
間取詳細:1LDK(洋6・LDK13.9)
専有面積:45.04㎡
方位:南
部屋位置:角部屋
ベラーノ溝の口 302号室の設備
キッチン
システムキッチン
カウンターキッチン
IHコンロ
バス・トイレ
バス・トイレ別
追い焚き
浴室乾燥機
温水洗浄便座
独立洗面台
シャワー付洗面化粧台
玄関
TVモニタ付インターホン
オートロック
収納
クローゼット
ウォークインクローゼット
シューズボックス
全居室収納
バルコニー
バルコニー
ルーフバルコニー
室内設備
エアコン
フローリング
室内洗濯機置場
位置・立地
2階以上
最上階
角部屋
南向き
インフラ
インターネット可
都市ガス
建物設備
駐車場
平面駐車場
駐輪場
バイク置き場
入居条件
2人入居可
オンライン相談可
オンライン内見可
保証人不要
ライフステージ
一人暮らしに人気の設備
カップルに人気の設備
家族に人気の設備
夫婦に人気の設備
三世代で人気の設備
こだわり
日当たり重視
収納重視
外で子どもと遊びたい
雨の日でも洗濯したい
洋室で暮らしたい
持ち物をスッキリ隠す収納部屋
趣味
料理が好き
服やおしゃれが好き
推し活グッズを飾りたい
ガーデニングが好き
お得な条件
インターネット無料
ベラーノ溝の口 302号室の賃貸契約情報
毎月支払う |
家賃12.7万円/月共益費4,500円/月 |
|---|---|
初期費用 |
敷金1ヶ月 (12.7万円)礼金2ヶ月 (25.4万円)保証金-敷引き償却金- |
更新料 |
127,000円 |
鍵交換費用 |
27,500円 |
室内清掃費用 |
- |
害虫防除費用 |
16,500円 |
駐車場料金 |
15,400円 |
損保・ |
借家賠付きの火災保険にご加入いただきます。 |
保証会社 |
加入要 保証会社利用料:初回保証料:賃料等総額の50% 月額事務手数料:賃料等総額2% |
契約期間 |
2年 |
入居可能日 |
相談 |
フリーレント期間 |
- |
取引形態 |
一般媒介 |
備考 |
保証会社利用必須 火災保険:17900円/2年 退去時精算:ルームクリーニング費用 63800円・エアコンクリーニング費用13200円/台 |
ベラーノ溝の口 302号室の建物情報
建物名称 |
ベラーノ溝の口 |
|---|---|
最寄駅 |
|
所在地 |
神奈川県川崎市高津区下作延 |
階層 |
3階部分(地上3階建) |
構造 |
鉄骨造 |
築年数 |
2016年3月(築10年) |
駐車場 |
15,400円 |
小学校学区 |
下作延小学校 |
中学校学区 |
西高津中学校 |
- 学区データについて
- ※学区データは必ずしも正確とは限りません。詳細に関しては最寄店舗または各自治体の教育委員会に必ずご確認ください。
無料この物件に問い合わせ
- ベラーノ溝の口 302号室

-
12.7万円
(共益費
4,500円)
- 敷
- 1ヶ月
- 礼
- 2ヶ月
- 保
- -
- 償
- -
ベラーノ溝の口 302号室の物件のお問い合わせ先・取り扱い店舗
ハウスコム 溝の口店
- アクセス
-
東急田園都市線「溝の口駅」北口徒歩2分
- 住所
- 〒213-0001 神奈川県川崎市高津区溝口1丁目8−1 溝ノ口丸広ビル1階
- 営業時間
- 10:00~18:00
- 定休日
- なし
- 営業エリア
- 川崎市中原区,川崎市多摩区,川崎市宮前区,川崎市高津区,稲城市
- 取引態様
- 賃貸仲介業





























