シャトーライフ相模原Ⅵ 101号室(1階/1LDK)の賃貸物件(賃貸マンション)
神奈川県相模原市中央区にあるシャトーライフ相模原Ⅵ 101号室はシステムキッチン、バス・トイレ別、追い焚き、浴室乾燥機、バルコニーなどが特徴です。最寄り駅の横浜線相模原駅から徒歩8分です。シャトーライフ相模原Ⅵ 101号室の詳細はハウスコム 相模原店までお気軽にお問い合わせください!
情報更新日:
次回更新予定日:
※次回更新予定日について:お店側では順次空室確認を行っていますが、次回更新予定日までに空室確認が行えない場合には、この物件情報は自動的に削除されます。
シャトーライフ相模原Ⅵ 101号室の賃貸物件部屋概要
家賃 |
8.1万円
初期費用を |
|---|---|
共益費 |
8,000円
入居可能時期 |
敷金/礼金 |
1ヶ月 / 1ヶ月 |
保証金/ |
- / - |
最寄駅 |
|
所在地 |
神奈川県相模原市中央区相模原 |
部屋番号 |
101号室 |
間取り |
1LDK |
専有面積 |
30.05㎡ |
築年数 |
新築 |
階数 |
1階部分(地上5階建) |
方位・位置 |
北西 / 角部屋 |
物件種別 |
賃貸マンション |
構造 |
RC |
駐車場 |
- |
小学校学区 |
中央小学校 |
中学校学区 |
中央中学校 |
他の空き部屋 |
103号室 201号室 205号室 501号室 502号室 503号室 505号室 |
- 学区データについて
- ※学区データは必ずしも正確とは限りません。詳細に関しては最寄店舗または各自治体の教育委員会に必ずご確認ください。
シャトーライフ相模原Ⅵ 101号室の特徴
契約条件
この物件は、2人入居もご契約できます。 ペットの飼育もご相談ください。
セキュリティ
この物件の建物には、オートロックや防犯カメラが設置されております。
室内設備
システムキッチンが備え付けられています。 お風呂とトイレは別です。お風呂には、追い焚き機能が備わっています。 トイレは、温水洗浄便座機能付きになります。 女性に嬉しい設備の独立した洗面化粧台があります。 洗濯に便利な設備として、室内洗濯機置場があります。浴室乾燥機も設置されているので、梅雨時の生乾き臭も比較的防ぐことができます。
居室状況
お部屋の床は、フローリングとなっており、エアコンが設置されています。 収納スペースとして、基本的な居室にクローゼットを設置、玄関にはシューズボックスがあります。
建物設備共用部分
居室外の専有スペースとして、洗濯物を干すなどの用途として利用できるバルコニーがあります。 建物の共用スペースに、いざという時の防犯カメラが設置されています。
周辺施設
この物件の学区は、中央小学校区・中央中学校区です。
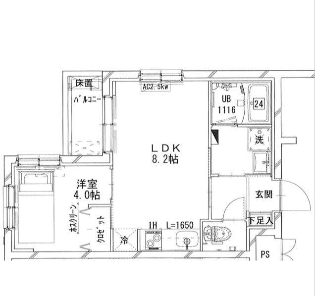
シャトーライフ相模原Ⅵ 101号室の間取り
間取り:1LDK
間取詳細:1LDK
専有面積:30.05㎡
方位:北西
部屋位置:角部屋
シャトーライフ相模原Ⅵ 101号室の設備
キッチン
システムキッチン
バス・トイレ
バス・トイレ別
追い焚き
浴室乾燥機
温水洗浄便座
独立洗面台
玄関
オートロック
収納
クローゼット
シューズボックス
バルコニー
バルコニー
ルーフバルコニー
室内設備
エアコン
フローリング
室内洗濯機置場
位置・立地
1階
角部屋
インフラ
都市ガス
建物設備
防犯カメラ
入居条件
ペット可・相談
2人入居可
ライフステージ
一人暮らしに人気の設備
カップルに人気の設備
家族に人気の設備
夫婦に人気の設備
三世代で人気の設備
こだわり
外で子どもと遊びたい
雨の日でも洗濯したい
洋室で暮らしたい
趣味
ガーデニングが好き
シャトーライフ相模原Ⅵ 101号室の賃貸契約情報
毎月支払う |
家賃8.1万円/月共益費8,000円/月 |
|---|---|
初期費用 |
敷金1ヶ月 (8.1万円)礼金1ヶ月 (8.1万円)保証金-敷引き償却金- |
更新料 |
81,000円 |
鍵交換費用 |
- |
室内清掃費用 |
- |
駐車場料金 |
- |
損保・ |
借家賠付きの火災保険にご加入いただきます。 |
保証会社 |
加入要 保証会社:全保連 保証会社利用料:賃貸保証:加入要 総賃料の40% 月額:1990円 |
契約期間 |
2年 |
入居可能日 |
2026年06月上旬 |
フリーレント期間 |
- |
取引形態 |
一般媒介 |
備考 |
保証会社利用必須 賃貸保証:加入要 総賃料の40% 月額:1990円 ペット飼育時敷金積み増し料金(償却)有り |
シャトーライフ相模原Ⅵ 101号室の建物情報
建物名称 |
シャトーライフ相模原Ⅵ |
|---|---|
最寄駅 |
|
所在地 |
神奈川県相模原市中央区相模原 |
階層 |
1階部分(地上5階建) |
構造 |
RC |
築年数 |
新築 |
駐車場 |
- |
小学校学区 |
中央小学校 |
中学校学区 |
中央中学校 |
- 学区データについて
- ※学区データは必ずしも正確とは限りません。詳細に関しては最寄店舗または各自治体の教育委員会に必ずご確認ください。
無料この物件に問い合わせ
- シャトーライフ相模原Ⅵ 101号室

-
8.1万円
(共益費
8,000円)
- 敷
- 1ヶ月
- 礼
- 1ヶ月
- 保
- -
- 償
- -
シャトーライフ相模原Ⅵ 101号室の物件のお問い合わせ先・取り扱い店舗
ハウスコム 相模原店
- アクセス
-
横浜線「相模原駅」徒歩1分
- 住所
- 〒252-0231 神奈川県相模原市中央区相模原2丁目1−7 樋口ビル 1F
- 営業時間
- 10:00~18:00
- 定休日
- なし
- 営業エリア
- 相模原市中央区、相模原市緑区、相模原市南区、町田市、八王子市・愛川町・厚木市
- 取引態様
- 賃貸仲介業










